

作品包括:
Word版说明书一份,共47页,约15000字
外文翻译一份
实习报告一份
CAD版本图纸,共10张
摘 要
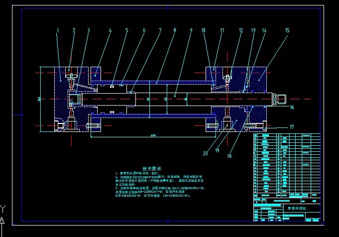
本文设计的关节型机械手采用圆柱坐标式,能完成上料、翻转等功能。此机械手主要由手爪、手腕、手臂和机身等部分组成,具有手腕回转、手臂伸缩、手臂升降和手臂回转4个自由度,能够满足一般的工业要求。
该机械手由电位器定位,实行点位控制,控制系统采用PLC可编程控制,具有良好的通用性和灵活性。
该机械手为液压驱动,4个自由度和手爪的夹紧都由液压缸驱动,在油路的布置和规划中结合机械制造的基础,不断使油路符合制造的可行性,而且将油路布置成空间结构,使机械手的结构更加简洁和紧凑。
关键字:关节型机械手 圆柱坐标 液压缸 可编程控制
目 录
摘要 …………………………………………………………………………………i
Abstract ……………………………………………………………………………ii
1 绪论 ……………………………………………………………………… 1
1.1 研究目的及意义 ………………………………………………………… 1
1.2 机械手的国内外发展状况…………………………………………2
1.3 工业机械手的技术发展方向…………………………………… 6
1.4 本课题研究内容……………………………………………………………7
2 机械手的总体设计 ……………………………………………………… 8
2.1 工业机械手的组成 ……………………………………………………… 8
2.1.1 执行机构 ………………………………………………………… 8
2.1.2 驱动机构 …………………………………………………………10
2.1.3 控制系统 …………………………………………………………10
2.2 关节型机械手的主要技术参数 ……………………………………… 11
2.3 圆柱坐标式机械手运动简图……………………………………………12
3 关节型机械手机械系统设计 ……………………………………………13
3.1 手部 ………………………………………………………………………13
3.1.1 夹紧力的计算 ……………………………………………………13
3.1.2 夹紧缸驱动力计算 ………………………………………………14
3.1.3 两支点回转型手指的夹持误差分析与计算 ……………………15
3.1.4 夹紧缸的计算 ……………………………………………………17
3.2 腕部 ………………………………………………………………………19
3.2.1 腕部设计的基本要求 ……………………………………………19
3.2.2 腕部回转力矩的计算 ……………………………………………21
3.2.3 手腕回转缸的设计计算 …………………………………………23
3.3 臂部 ………………………………………………………………………24
3.3.1 手臂伸缩液压缸 …………………………………………………24
3.3.2 手臂回转液压缸 …………………………………………………33
4 机械手的液压驱动系统 …………………………………………………37
4.1 程序控制机械手的液压系统 ……………………………………………37
4.2 液压系统 …………………………………………………………………37
4.2.1 各液压缸的换压回路 ……………………………………………37
4.2.2 调速方案 …………………………………………………………38
4.2.3 减速缓冲回路 ……………………………………………………39
4.3 液压系统的合成 …………………………………………………………40
5 机械手的可编程控制 ……………………………………………………42
5.1 输入输出触点的分配 ……………………………………………………42
5.1.1 行程开关的分配 …………………………………………………42
5.1.2 手动按钮的分配 …………………………………………………43
5.1.3 输入输出继电器的分配 …………………………………………43
5.2 外部接线图 ………………………………………………………………44
5.3 控制面板设计 ……………………………………………………………45
5.4 状态控制图 ………………………………………………………………45
5.5 梯形图 ……………………………………………………………………47
结论 …………………………………………………………………………………48
致谢 …………………………………………………………………………………49
参考文献 ……………………………………………………………………………50
温馨提示:
1、题目前面的备注【字母数字编号】为本站整理分类的编号,与课题内容无关,请选题时忽视;
2、若题目上备注三维,则表示文件里包含三维源文件,由于三维组成零件数量较多,为保证预览截图的简洁性,本站将三维文件夹进行了打包。三维及CAD预览截图,均为本站电脑打开软件进行截图的,保证能够打开,下载原件超高清,下载后解压即可;
3、本站所有资源如无特殊说明,都需要本地电脑安装Office2007。图纸软件为AutoCAD,PROE,UG,SolidWorks,CATIA等;
4、本站所有图文资料仅供用户学习参考,不作为任何商用或其他用途;
5、本站不保证下载资源的准确性、安全性和完整性, 不包修改,不支持退换,同时也不承担用户因使用这些下载资源对自己和他人造成任何形式的伤害或损失;
6、 下载文件中如有侵权或不适当内容,请与我们联系,我们立即纠正。