

作品包括:
Word版说明书一份,共42页,约14000字
外文翻译一份
CAD版本图纸,共3张
摘要
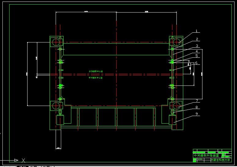
中间包小车是用来支承、调整、运输、更换中间包的设备。
本设计课题大方坯连铸机中间包小车,驱动型式采用交流电动机驱动,转速可调,,结构型式为门型。其主要参数:中间包车的开进工作速度2-20m/min;起升结构用丝杠螺母结构,电动机驱动,起升高度为470mm,行走行程为16400mm,,对中行程为150mm,最大承载能力为50t。
本文包括绪论、设计计算、结论三部分。绪论部分概述了中间包小车的各主要部分的特性。设计计算部分主要爱是对设计参数选择及强度校核。结论部分主要是对设计过程进行小结。
关键词:交流电机驱动;电动提升;门形;设计计算。
目录
摘要 I
第一章引言 1
1.1概要 1
1.1.1中间包小车设计的技术要求 1
1.1.2中间包小车的形式 2
1.2中间包小车的结构及特性 2
1.3中间包小车的问题与改进措施 6
第二章 行走传动装置的设计计算 8
2.1轮压计算 8
2.1.1车轮的计算及其校核 9
2.2运行阻力计算 10
2.2.1运行时的摩擦阻力计算 11
2.2.2轨道梁弯曲变形引起的附加阻力 11
2.2.3电缆拖链的阻力 12
2.2.4启动惯性力阻力 12
2.2.5运行阻力 12
2.3行走机构传动功率计算 13
2.3.1运行静功率的计算 13
2.3.2启动功率 13
2.4电机的确定 14
2.5传动机构速比确定 15
2.6减速器,联轴器的选择 15
第三章升降装置计算 16
3.1电动机功率的确定选择 16
3.1.1提升机构负荷的计算 16
3.1.2电机功率的确定 17
3.1.3丝杠轴向力的计算 18
3.2杠的选择与计算 18
3.2.1滚珠丝杠的选择 18
3.2.2滚珠丝杠的主要几何尺寸的计算 19
3.2.3丝杠滚珠螺母的主要尺寸计算 21
3.2.4丝杠力矩计算及校核 22
3.3升降装置电机选择 24
3.3.1每台电机功率计算 24
3.3.2电机的选择 25
3.4蜗轮蜗杆的设计计算 25
3.4.1蜗轮蜗杆的尺寸计算 25
3.4.2蜗轮蜗杆的强度校核 28
3.4.3同步轴的校核 31
3.5联轴器的选择 32
第四章技术经济分析 33
第五章 总结 36
第六章 参考文献 37
第七章 附录 38
温馨提示:
1、题目前面的备注【字母数字编号】为本站整理分类的编号,与课题内容无关,请选题时忽视;
2、若题目上备注三维,则表示文件里包含三维源文件,由于三维组成零件数量较多,为保证预览截图的简洁性,本站将三维文件夹进行了打包。三维及CAD预览截图,均为本站电脑打开软件进行截图的,保证能够打开,下载原件超高清,下载后解压即可;
3、本站所有资源如无特殊说明,都需要本地电脑安装Office2007。图纸软件为AutoCAD,PROE,UG,SolidWorks,CATIA等;
4、本站所有图文资料仅供用户学习参考,不作为任何商用或其他用途;
5、本站不保证下载资源的准确性、安全性和完整性, 不包修改,不支持退换,同时也不承担用户因使用这些下载资源对自己和他人造成任何形式的伤害或损失;
6、 下载文件中如有侵权或不适当内容,请与我们联系,我们立即纠正。