

作品包括:
说明书1份,共42页,约15000字左右
CAD版本图纸,共5张
摘 要
工业机器人是集机械、电子、控制、传动、自动化等多学科先进技术于一体的现代制造业重要的自动化装备。本文以工业机器人产业化为背景,通过对国内外工业机器人的发展历史和现状的调查和分析,报告了当前国内外工业机器人产业的发展水平和方向以及存在的问题。
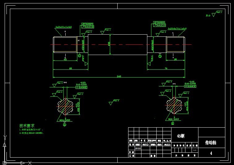
本次设计主要完成了M40型工业机器人小车传动装置的结构设计,通过机器人的运动原理和相关技术要求的分析和计算,得出小车的相关技术要求和参数,完成了小车传动装置主要零部件:齿轮、传动轴、输出轴等的设计。并且完成了关键零件的强度校核,保证了小车传动装置工作的可靠性。
关键词:工业机器人;传动装置;传动轴;齿轮
目录
第一章 绪论 1
1.1工业机器人及其发展历史、现状分析 1
1.1.1 工业机器人 1
1.1.2 国外机器人发展情况 2
1.1.3 我国的工业机器人 3
1.1.4 工业机器人发展趋势 4
1.2工业机器人的组成和设计方案 5
1.2.1 工业机器人的组成 5
1.2.1 自由度和坐标系的选择 7
1.2.3 机器人驱动装置和传动装置 9
1.2.4 机器人的控制系统 9
第二章 M40型工业机器人总体设计 10
2.1机器人的总体结构 10
2.1.1 M40型工业机器人的总体结构 10
2.1.2 M40型工业机器人运动分析 12
2.1.3 机器人驱动方式的选择 13
2.2机器人的操作机构 16
2.2.1 操作机的整体结构 16
2.2.2 操作机的各部分的运动 17
第三章 小车传动装置的设计 20
3.1总体方案的确定 20
3.1.1 传动方式的确定 20
3.2传动方案的确定 21
3.2.1 传动比的确定 21
3.2.2减速器相关数据的计算 22
3.3减速器齿轮传动的设计计算 23
3.3.1 高速轴齿轮的设计计算 23
3.3.2 低速轴齿轮的设计计算 27
3.4传动轴的设计计算 31
3.4.1 传动轴Ⅰ的设计 31
3.4.2 传动轴Ⅱ的设计 35
第四章 总结 39
参 考 文 献 40
致 谢 41
温馨提示:
1、题目前面的备注【字母数字编号】为本站整理分类的编号,与课题内容无关,请选题时忽视;
2、若题目上备注三维,则表示文件里包含三维源文件,由于三维组成零件数量较多,为保证预览截图的简洁性,本站将三维文件夹进行了打包。三维及CAD预览截图,均为本站电脑打开软件进行截图的,保证能够打开,下载原件超高清,下载后解压即可;
3、本站所有资源如无特殊说明,都需要本地电脑安装Office2007。图纸软件为AutoCAD,PROE,UG,SolidWorks,CATIA等;
4、本站所有图文资料仅供用户学习参考,不作为任何商用或其他用途;
5、本站不保证下载资源的准确性、安全性和完整性, 不包修改,不支持退换,同时也不承担用户因使用这些下载资源对自己和他人造成任何形式的伤害或损失;
6、 下载文件中如有侵权或不适当内容,请与我们联系,我们立即纠正。