

作品包括:
Word版说明书一份,共47页,约14000字
CAD版本图纸,共23张
调速器盖的压铸模结构设计
摘要
压铸技术的日趋完善,使得铝合金铸件得到广泛发展和应用。
该设计主要的内容是铝合金壳体压铸模的结构设计。根据零件的特点本次设计主要针对模具的整体机构以及装配关系、导向元件及其装配关系、浇注系统、推出机构以及压铸机的选择等做了系统的分析、计算,参照了大量的设计实例最终提出了一套比较合理,可靠的设计方案。此外通过查阅资料,对压铸机生产过程中容易出现的缺陷进行了分析。
为提高经济效益和产品的合格率,本次设计可在机械性能方面满足零件的使用性能,而且在尺寸和精度上要求更精确。为了延长模具的使用寿命,尽量避免正面冲击型芯和型腔,对浇注系统做了圆形逆时针注入的设计。为了减少铸造过程的劳动强度,螺钉和定位销等的链接尽量采取标准件。
关键词:压铸模 模具设计 铝合金
目录
1 绪论 2
2 调速器盖工艺性分析 6
2.1 壁厚 6
2.2 铸造圆角 6
2.3 脱模斜度 6
2.4 铸孔 6
2.5 调速器盖零件的尺寸精度要求 6
2.6 表面粗糙度 6
2.7 加工余量 6
3 压铸模分型面的选择 7
4 压铸机的选择 8
4.1 确定比压 8
4.2 初计算锁模力F锁 8
5 压铸模浇注系统与溢流排气系统的设计 10
5.1 内浇口 10
5.2 直浇道 11
5.3 横浇道 12
5.4 溢流槽 12
6 压铸模成型零件尺寸的确定 15
6.1 压铸件的收缩率 15
6.2 型腔尺寸 15
6.3 型芯尺寸 16
6.4 中心距离及位置尺寸 17
7 模具结构尺寸的确定 19
7.1 镶块 19
7.2 定模套板 19
7.3 动模套板 21
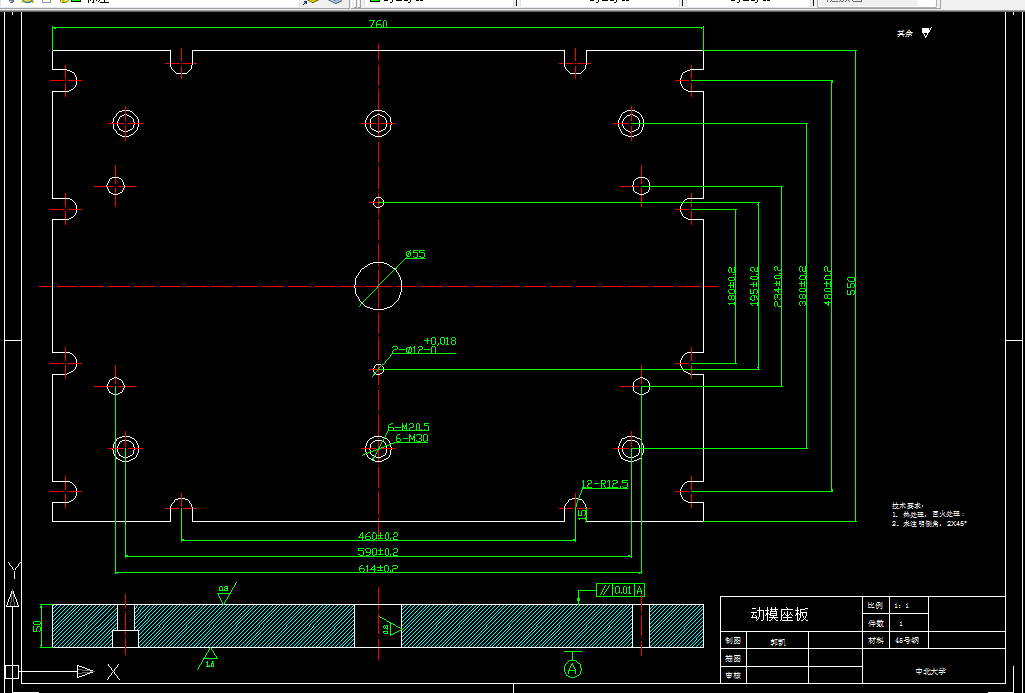
7.4 定模座板 22
7.5 支承板 24
7.6 导柱导套 25
7.7 推杆固定板 29
7.8 垫块 30
7.9 推板导柱,导套的设计 31
7.10 模架具体尺寸的确定 32
8 推出机构 35
8.1 推杆的设计 35
8.2 推杆的稳定性 36
8.3 推出机构的复位与导向 36
8.4 复位杆的设计 37
8.5 限位钉的设计 37
9 压铸模具设计的校核 38
9.1 压铸模具的校核 38
9.1.1 模具厚度校核 38
9.1.2 动模座板行程核算 38
10 结 论 40
参考文献 41
致 谢 43
温馨提示:
1、题目前面的备注【字母数字编号】为本站整理分类的编号,与课题内容无关,请选题时忽视;
2、若题目上备注三维,则表示文件里包含三维源文件,由于三维组成零件数量较多,为保证预览截图的简洁性,本站将三维文件夹进行了打包。三维及CAD预览截图,均为本站电脑打开软件进行截图的,保证能够打开,下载原件超高清,下载后解压即可;
3、本站所有资源如无特殊说明,都需要本地电脑安装Office2007。图纸软件为AutoCAD,PROE,UG,SolidWorks,CATIA等;
4、本站所有图文资料仅供用户学习参考,不作为任何商用或其他用途;
5、本站不保证下载资源的准确性、安全性和完整性, 不包修改,不支持退换,同时也不承担用户因使用这些下载资源对自己和他人造成任何形式的伤害或损失;
6、 下载文件中如有侵权或不适当内容,请与我们联系,我们立即纠正。