

作品包括:
word版设计说明书一份,44页,约21000字
任务书一份
CAD版本图纸,共9张
毕业设计任务书
1按照给定焦化厂设计规模计算煤气处理量,并根据焦化设计规范的要求,对焦化厂煤气脱硫工段进行工艺论证;
2确定脱硫工艺流程,进行物料衡算,计算和设计煤气脱硫塔和再生塔,根据计算进行主要设备的选型,绘制一张非标准设备图;
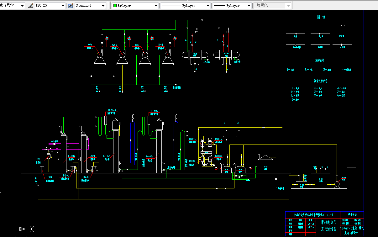
3进行脱硫工段的设备和工艺管道布置,绘制煤气脱硫工段的工艺流程图、总平面布置图和设备与工艺管道平面图和立面图;
4根据目前脱硫工段的生产要求,对脱硫工段设计的非工艺部分提出要求,根据岗位设置和岗位操作编制岗位人员;
5进行脱硫工段的投资估算和煤气脱硫生产成本和技术经济分析;
6编制设计说明书
摘 要
在设计过程中,参考了徐州环宇焦化厂的焦炉煤气净化工艺,对130万t/a焦化厂煤气脱硫工段进行了设计,并在其基础上进行了改造。
设计的主要内容为按照给定焦化厂设计规模计算煤气处理量并根据焦化设计规范的要求,对焦化厂煤气脱硫工段进行工艺论证;确定脱硫工艺流程,进行物料平衡、热量衡算,计算和设计煤气脱硫塔和再生塔,根据计算进行主要设备的选型,绘制一张非标设备图;进行脱硫工段的设备和工艺管道布置,绘制煤气脱硫工段的工艺流程图、总平面布置图、和设备与工艺管道平面图和立面图;根据煤气脱硫工段的生产要求,对脱硫工段设计的非工艺技术部分提出要求,根据岗位设置与岗位操作编制岗位人员编制;以及进行脱硫工段的投资估算和煤气脱硫生产成本的技术经济分析;最后编制出设计说明书。
设计采用改良A.D.A法设计了焦化厂的脱硫工段,分为工艺部分和非工艺部分,工艺部分包括煤气净化、脱硫液再生及硫磺的回收,净化装置采用了脱硫塔,再生部分采用了再生塔以及其他一些辅助设备。非工艺部分包括土建、供气、供电、设备维修、仪表及检验项目、安全、劳保、防水、防炸等,最后还对其进行了经济核算。
关键词:脱硫;改良A.D.A.法;脱硫液再生;煤气净化
目 录
1 总论 5
1.1设计要求及任务 5
1.2 厂址选择 5
1.2.1 地理位置 5
1.2.2 气象条件 6
1.2.3 动力来源 6
2 工艺流程的确定及说明 6
2.1脱硫方法的概述 6
2.1.1干法脱硫 6
2.1.2湿法脱硫 7
2.2生产工艺流程的选择 13
3 改良A.D.A脱硫的生产原理及操作制度 14
3.1改良A.D.A的生产原理、原料及产品 15
3.1.1生产原理 15
3.1.2原料和产品 15
3.2工艺流程和操作制度 15
3.2.1工艺流程 15
3.2.2流程说明 16
3.3操作制度和工艺要点 16
3.3.1 操作制度 16
3.3.2 工艺要点 16
4 主要设备的选型与计算 16
4.1 主要设备的选型及计算 16
4.1.1主要设计计算定额 16
4.1.2原材料的消耗量 17
4.1.3主要设计参数 17
4.1.4物料衡算 17
4.2脱硫塔的计算 18
4.2.1参数 18
4.2.2计算过程 18
4.2.3 塔顶喷淋装置 19
4.3再生塔的计算 20
4.3.1 再生塔计算要求 20
4.3.2 再生塔计算 20
4.3.3反应槽的计算 21
4.3.4 事故槽的计算 21
4.3.5 换热器的计算 22
4.3.6循环泵的计算 23
4.4硫泡沫槽的计算 26
4.4.1 硫泡沫槽的计算 26
4.4.2 加热蒸发量的计算 26
4.5通风机的计算 27
4.6戈尔膜的计算 27
5 工段布置及总平面布局图 27
5.1工艺布置 27
5.1.1布置说明 28
5.1.2布置要求 28
5.2其它要求 28
6 非工艺部分说明 26
6.1公用工程 26
6.1.1供水 29
6.1.2供电 29
6.1.3蒸汽与压缩空气 29
6.1.4采暖与通风 30
6.1.5土建 30
6.1.6环保 30
6.2仪表自动化 30
7.1脱硫塔 32
7.2再生塔 32
7.3循环泵 32
8 生产操作和劳动定员 33
8.1生产操作 33
8.1.1泵工正常操作 33
8.1.2 泵工职责 34
8.1.3 泡沫工正常操作 34
8.1.4熔硫工正常操作(本设计用了戈尔膜代替熔硫釜,故设有此工种) 34
8.1.5各岗位人员的共同职责 35
8.2劳动定员 35
9 投资概算与生产成本分析 33
9.1编制说明 33
9.1.1 材料及设备 33
9.2投资概算 33
9.2.1 土建部分 36
9.2.2 设备部分 36
9.2.3 工具费 37
9.2.4 设备施工管理费 37
9.2.5化验设备费 38
9.2.6工艺管道和阀门 39
9.2.7仪表费和电气费 39
9.2.8设计费 39
9.2.9不可预见费 39
9.3生产成本分析 39
9.3.1原料费 39
9.3.2动力消耗 40
9.3.3工资及附加费 40
9.3.4工段运费 40
9.4核算 40
附录 42
1、设备一览表 42
2、图纸说明 43
参考文献 44
致 谢 45
温馨提示:
1、题目前面的备注【字母数字编号】为本站整理分类的编号,与课题内容无关,请选题时忽视;
2、若题目上备注三维,则表示文件里包含三维源文件,由于三维组成零件数量较多,为保证预览截图的简洁性,本站将三维文件夹进行了打包。三维及CAD预览截图,均为本站电脑打开软件进行截图的,保证能够打开,下载原件超高清,下载后解压即可;
3、本站所有资源如无特殊说明,都需要本地电脑安装Office2007。图纸软件为AutoCAD,PROE,UG,SolidWorks,CATIA等;
4、本站所有图文资料仅供用户学习参考,不作为任何商用或其他用途;
5、本站不保证下载资源的准确性、安全性和完整性, 不包修改,不支持退换,同时也不承担用户因使用这些下载资源对自己和他人造成任何形式的伤害或损失;
6、 下载文件中如有侵权或不适当内容,请与我们联系,我们立即纠正。