

作品包括:
Word版说明书1份,共29页,约11000字
CAD版本图纸,共5张
毕业设计(论文)中文摘要
四轴卧式钻孔专用机床液压及控制系统设计
摘 要:四轴卧式钻孔专用机床适合成批生产或大量生产,且能钻削具有圆柱形外表面的工件。它特别适合于加工深度直径比大于30,立式加工困难的高粗糙度的小孔径深孔。广泛用于阀门、法兰、轴承座、汽车配件、工程机械配件等生产钻孔加工。在设计过程中,通过各阀之间的联合运作来控制液压缸的运动,并且利用电气开关来控制液压系统,最后通过所设计的液压回路完成液压缸在快进、工进、快退之间的转换。而各阀之间的连接是通过集成块的孔道来实现的,液压泵与集成块连接,使油液通过各集成块里的管道最终到达液压缸。使用集成块可以节约阀的安装空间,减少管件连接,从而降低由于管道接头引起的泄漏问题,而且集成块价格便宜。由此可以看出集成块的设计对于液压系统设计尤为重要。
关键词:四轴卧式钻孔机床;液压系统;集成块
目 录
1 绪论………………………………………………………………………………1
1.1 课题研究的意义………………………………………………………………1
1.2 国内外研究现状及水平………………………………………………………1
2 液压系统原理图的确定…………………………………………………………2
2.1 设计的要求与参数…………………………………………………………2
2.2 液压系统基本回路……………………………………………………………2
2.3基本回路的选择……………………………………………………………3
2.4 将各回路综合成液压系统回路………………………………………………5
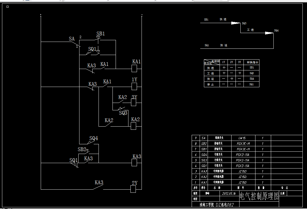
2.5 液压系统电磁铁动作顺序表……………………………………………………6
3 液压系统计算及液压元件选择…………………………………………………7
3.1 分析负载……………………………………………………………7
3.2 确定执行元件主要参数………………………………………………………8
3.3 液压泵的选择……………………………………………………………10
3.4 电动机的选择…………………………………………………………………11
3.5 液压元件、辅助元件以及液压油的选型……………………………………11
3.6 管道尺寸的确定………………………………………………………………13
4 液压集成块的设计………………………………………………………………14
4.1 Pro/e软件简介…………………………………………………………14
4.2 集成块1的设计……………………………………………………………14
4.3 集成块2的设计……………………………………………………………16
5 电气控制线路图…………………………………………………………………18
6 油箱的设计…………………………………………………………………20
6.1 油箱的功用和要求……………………………………………………20
6.2 油箱有效容积的确定……………………………………………………20
6.3 油箱外形尺寸的确定…………………………………………………21
6.4 油箱的分类和结构…………………………………………………………21
7 液压系统的验算…………………………………………………………………22
7.1 液压系统压力损失的验算……………………………………………………22
7.2 液压系统发热温升的验算……………………………………………………22
结论 …………………………………………………………………………………23
致谢 …………………………………………………………………………………24
参考文献……………………………………………………………………………25
温馨提示:
1、题目前面的备注【字母数字编号】为本站整理分类的编号,与课题内容无关,请选题时忽视;
2、若题目上备注三维,则表示文件里包含三维源文件,由于三维组成零件数量较多,为保证预览截图的简洁性,本站将三维文件夹进行了打包。三维及CAD预览截图,均为本站电脑打开软件进行截图的,保证能够打开,下载原件超高清,下载后解压即可;
3、本站所有资源如无特殊说明,都需要本地电脑安装Office2007。图纸软件为AutoCAD,PROE,UG,SolidWorks,CATIA等;
4、本站所有图文资料仅供用户学习参考,不作为任何商用或其他用途;
5、本站不保证下载资源的准确性、安全性和完整性, 不包修改,不支持退换,同时也不承担用户因使用这些下载资源对自己和他人造成任何形式的伤害或损失;
6、 下载文件中如有侵权或不适当内容,请与我们联系,我们立即纠正。