

作品包括:
WORD版设计说明书1份,共48页,约15000字
外文翻译一份
CAD版本图纸,共3张
一维数控工作平台的设计
摘 要
随着计算机技术的迅猛发展和广泛应用,光机电一体化技术也得到了前所未有的发展,成为了一门多学科交叉的系统技术。而数控工作台正是这一技术的典型应用。本文以一维数控工作台的设计为例,清晰阐述了此类工作台的一般设计方法。
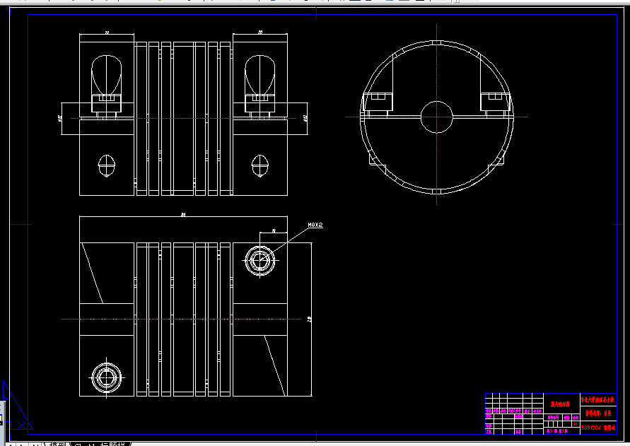
首先介绍了数控工作台的发展及目前的产业化应用现状。其次根据设计要求对工作台总体方案进行设计,包括物理模型方案和驱动控制方案的比较设计。再次,依据设计初始条件及各主要部件的参数样本,对滚珠丝杠、滚动导轨、伺服电机等主要部件进行了性能特点的比较,然后根据设计要求及相应部件的选型计算流程对各个参数进行了计算进行了计算选型,同时对其各项指标进行了校核。最后运用Pro\Engineer三维造型软件完成了模型的建立及装配,并对进给系统进行了加减速运动仿真,完成了部分零件图及工作台装配图的二维图设计。
通过机构干涉检查及运动仿真证明本设计个参数符合设计条件,精度及可靠性均达到要求,为下一步进行更精确的精度分析奠定了基础。
关键词:数控工作平台,滚珠丝杠,直线导轨,伺服电机
目 录
1绪论 1
1.1数控工作平台概述 1
1.1.1数控工作台发展及其产业化现状 1
1.2一维数控工作台设计的意义及设计内容 3
2工作台总体方案设计 4
2.1工作台基本原理 4
2.1.1滚珠丝杠进给系统伺服控制方式 4
2.2工作台总体设计 5
2.2.1工作台物理模型初步设计 5
2.2.2工作台控制结构初步设计 6
3滚珠丝杠单元设计计算选型 7
3.1滚珠丝杠副特点及其结构 7
3.2滚珠丝杠副计算选型 11
3.2.1滚珠丝杠副选型依据及计算项目 11
3.2.2滚珠丝杠副选型计算 13
4导轨单元设计计算及选型 24
4.1直线导轨概述 24
4.1.1直线导轨的特点 25
4.1.2滚动式导轨与滑动式导轨的性能比较 26
4.2直线导轨副计算选型 27
4.2.1直线导轨选型主要性能指标 27
4.2.2直线导轨选型计算 28
5伺服电机及其他部件计算选用 34
5.1伺服电机计算选型 34
5.1.1伺服电机性能特点 34
5.1.2伺服电机选型原则和方法 35
5.1.3伺服电机选型计算 36
5.2其他部件设计选用 39
结 论 41
致 谢 42
参考文献 43
附 录 44
附录A 44
温馨提示:
1、题目前面的备注【字母数字编号】为本站整理分类的编号,与课题内容无关,请选题时忽视;
2、若题目上备注三维,则表示文件里包含三维源文件,由于三维组成零件数量较多,为保证预览截图的简洁性,本站将三维文件夹进行了打包。三维及CAD预览截图,均为本站电脑打开软件进行截图的,保证能够打开,下载原件超高清,下载后解压即可;
3、本站所有资源如无特殊说明,都需要本地电脑安装Office2007。图纸软件为AutoCAD,PROE,UG,SolidWorks,CATIA等;
4、本站所有图文资料仅供用户学习参考,不作为任何商用或其他用途;
5、本站不保证下载资源的准确性、安全性和完整性, 不包修改,不支持退换,同时也不承担用户因使用这些下载资源对自己和他人造成任何形式的伤害或损失;
6、 下载文件中如有侵权或不适当内容,请与我们联系,我们立即纠正。