欢迎来到龙图网在线图文分享平台-CAD图纸,设计说明书,工业设计3D模型,三维软件下载!   客服QQ:2363701252
热搜:

工艺夹具 模具设计 数控编程 土木工程 3D模型

X041-拨叉零件的加工工艺及钻φ26孔夹具设计 下载积分:50 资料编号: X041

1.打开支付宝或者微信扫描二维码。
2.填写金额:50 
3.添加备注,填写资料编号:
资料编号: X041
4.支付成功后,请发资料编号到邮箱:jxsj168@qq.com
会有专人在15分钟内把资料发到您邮箱
备注:如果付款忘记填写资料编号,则发邮件时附带您的交易明细截图即可。
请耐心等待,如超过30分钟还没收到,请联系客服QQ:2363701252
点击分享:

作品描述

作品包括:

说明书1份,共22页,约10000字

CAD版本图纸,共4张

工序卡一张

过程卡一张

   

摘 要

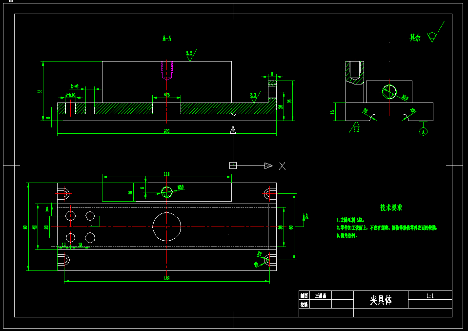
这次设计的是拨叉零件,包括零件图、毛坯图、夹具装配图、夹具零件图各一张,机械加工工艺过程卡片和与工序卡片各一张。首先我们要熟悉零件和了解其作用,该拨叉应用在某拖拉机变速箱的换挡机构中,主要起换档作用。然后,根据零件的性质和零件图上各端面的粗糙度确定毛坯的尺寸和械加工余量。最后拟定拨叉的工艺路线图,制定该工件的夹紧方案,画出夹具装配图。

在这次的课程设计过程中,我认真阅读《课程设计指导书》,并按书中的设计过程边学习边设计,了解并认识一般机器零件的生产工艺过程,巩固和加深了已学过的技术基础课和专业课的知识,理论联系实际,刻苦钻研,从中锻炼自己分析问题、解决问题的能力,为毕业设计打下了一个良好的基础,更加为以后的工作奠定了基础。


目 录

1.零件的工艺分析及生产类型的确定 1

1.1零件的用途 1

1.2分析零件的技术要求 1

1.3审查拨叉的工艺性 2

1.3.1以φ8为中心的加工表面 2

1.3.2以φ26为中心的加工表面 2

1.4确定拨叉的生产类型 3

2.确定毛坯 4

2.1确定毛坯的种类和制造方法 4

2.2确定毛坯的尺寸公差和机械加工余量 4

3.工艺规程设计 5

3.1.1精基准的选择 5

3.1.2粗基准的选择 5

3.2制定工艺路线 5

3.2.2.工艺路线方案二 6

3.3确定各工序的加工余量、计算工序尺寸及公差 7

3.3.1粗铣拨叉头的上下表面的加工余量及公差 7

3.3.2钻φ8的孔加工余量及公差 8

3.3.3铣φ26的上下端面的加工余量及公差 8

3.3.4钻φ26的叉口的内圆面的加工余量及公差 8

3.3.5钻、攻螺纹φ5孔的加工余量及公差 9

3.3.6切断φ26的叉口 9

3.4切削用量的计算 9

3.4.1工序Ⅰ:粗铣拨叉头的上下表面 9

3.4.2工序Ⅱ:钻、粗铰、精铰Φ8孔 10

3.4.3工序Ⅲ:粗铣、半精铣、精铣φ26的上下端面 11

3.4.4.工序Ⅳ:钻、扩孔钻、粗铰、精铰φ26的叉口 12

3.4.5工序Ⅴ:钻、攻螺纹φ5的孔 14

3.4.6工序Ⅵ:切断φ26的叉口 15

3.4.7.工序Ⅶ:检验 15

3.5时间定额的计算 15

3.5.1基本时间 15

3.5.2辅助时间 16

3.5.3其他时间 16

3.5.4单件时间 16

4.夹具设计 18

4.1问题的提出 18

4.2夹具设计 18

4.2.1定位方案 18

4.2.2夹紧机构 18

4.2.3夹具与机床联接元件 18

4.2.4定位误差分析 19

4.2.5切削力与夹紧力的计算 19

5.体会与展望 21

6.参考文献 22

温馨提示:

1、题目前面的备注【字母数字编号】为本站整理分类的编号,与课题内容无关,请选题时忽视;

2、若题目上备注三维,则表示文件里包含三维源文件,由于三维组成零件数量较多,为保证预览截图的简洁性,本站将三维文件夹进行了打包。三维及CAD预览截图,均为本站电脑打开软件进行截图的,保证能够打开,下载原件超高清,下载后解压即可;

3、本站所有资源如无特殊说明,都需要本地电脑安装Office2007。图纸软件为AutoCAD,PROE,UG,SolidWorks,CATIA等;

4、本站所有图文资料仅供用户学习参考,不作为任何商用或其他用途;
5、本站不保证下载资源的准确性、安全性和完整性, 不包修改,不支持退换,同时也不承担用户因使用这些下载资源对自己和他人造成任何形式的伤害或损失;

6、 下载文件中如有侵权或不适当内容,请与我们联系,我们立即纠正。


线