

作品包括:
说明书一份,共22页,约3900字
任务书一份
开题报告一份
CAD版本图纸,共13张
目 录
1、设计任务………………………………………………………………1
2、传动方案…………………………………………………………2
3、设计内容…………………………………………………………3
4、切纸机压纸器传动设计……………………………………………4
4.1电机选择…………………………………………………………4
4.2计算传动装置的运动和动力参数…………………………………5
5、蜗杆蜗轮设计………………………………………………6
6、螺杆螺母传动设计………………………………………………11
7、设计小结…………………………………………………………16
参考文献…………………………………………………………17
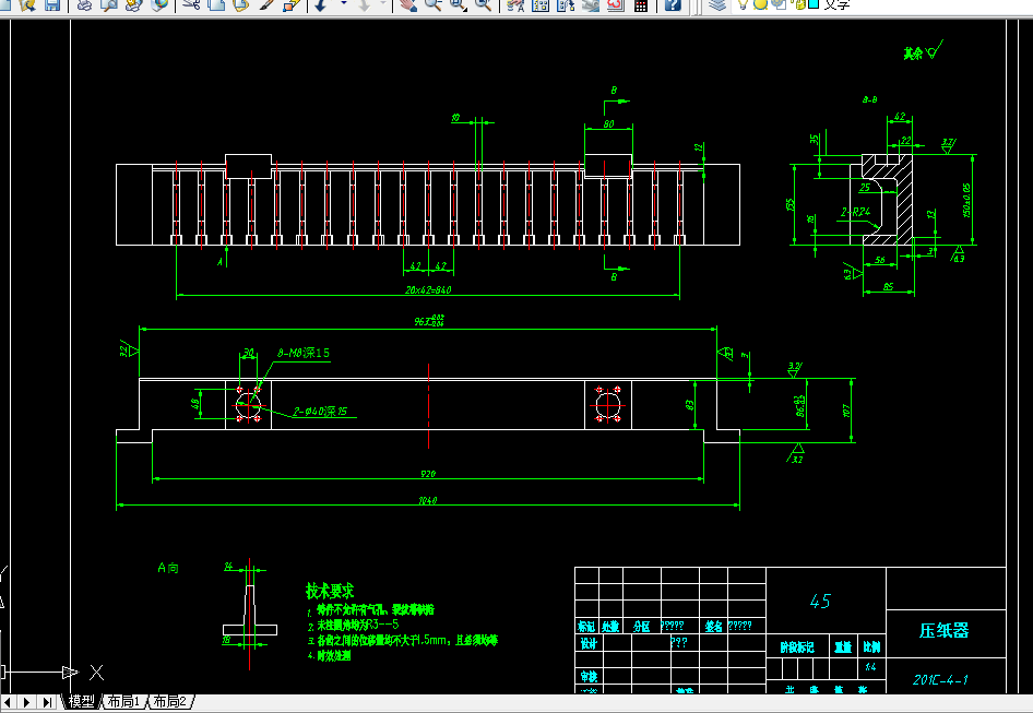
切纸机压纸器的设计
摘要:压纸器的工作原理是由电机驱动,经减速传动系统蜗杆蜗轮,带动螺母,再将动力传给螺杆,由螺杆直接带动压纸器松开或紧压纸张。 力太大,则会压破纸张;力太小,则会使力不够,而引起裁切达不到要求。
根据任务要求,进行压纸器机械系统总体方案设计,确定减速传动系统、执行系统的组成; 根据设计参数和设计要求,使执行系统具有较好的传力性能;选择电动机型号,分配减速传动系统中各级传动的传动比,并进行传动机构的工作能力设计计算; 对压纸系统进行结构设计,用CAD绘制装配图及关键零件工作图。参考机械设计手册及网上查询法,设计压纸器及其构件。蜗轮箱体、连接零件及传动机构需要的图纸(采用电脑设计立体图、平面图)。
关键词:蜗轮蜗杆; 螺母; 螺杆; 蜗杆轴
温馨提示:
1、题目前面的备注【字母数字编号】为本站整理分类的编号,与课题内容无关,请选题时忽视;
2、若题目上备注三维,则表示文件里包含三维源文件,由于三维组成零件数量较多,为保证预览截图的简洁性,本站将三维文件夹进行了打包。三维及CAD预览截图,均为本站电脑打开软件进行截图的,保证能够打开,下载原件超高清,下载后解压即可;
3、本站所有资源如无特殊说明,都需要本地电脑安装Office2007。图纸软件为AutoCAD,PROE,UG,SolidWorks,CATIA等;
4、本站所有图文资料仅供用户学习参考,不作为任何商用或其他用途;
5、本站不保证下载资源的准确性、安全性和完整性, 不包修改,不支持退换,同时也不承担用户因使用这些下载资源对自己和他人造成任何形式的伤害或损失;
6、 下载文件中如有侵权或不适当内容,请与我们联系,我们立即纠正。