

作品包括:
说明书一份,共30页,约16000字
CAD版本图纸,共9张
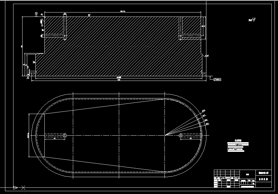
箱体落料、拉深复合模设计
摘 要:针对水田耕种机箱体零件的冲裁工艺性和拉深工艺性,分析比较了成形过程的三种不同冲压工艺(单工序、复合工序和连续工序),确定用一副复合模完成落料、拉深的工序过程。简要分析了坯料形状、尺寸,排样、裁板方案,拉深次数,冲压工序性质、数目和顺序的确定。进行了工艺力、压力中心、模具工作部分尺寸及公差的计算,并设计出模具。该模具生产成本低,使用寿命长,操作安全、方便,便于搬运、安装、紧固到冲床上并且方便、可靠,外形美观,各部分比例协调,能保证规定的生产率和冲压件的质量,对设计同类产品具有参考价值。
关键词: 箱体;模具;复合模
目 录
1 前言 2
2 分析零件的工艺性 3
2.1 冲裁工艺性 3
2.2 拉深工艺性 3
3 分析计算确定工艺方案 4
3.1 计算毛坯尺寸 4
3.2 确定是否需要压边圈 5
3.3 计算拉深次数 5
3.4 确定工艺方案 6
4 主要工艺参数的计算 6
4.1 确定排样、裁板方案 6
4.2 计算工艺力、初选设备 8
4.2.1 计算工艺力 8
4.2.2 拉深功的计算 10
4.2.3 初选压力机 11
4.2.4 计算压力中心 11
4.2.5 计算凸、凹模刃口尺寸及公差 12
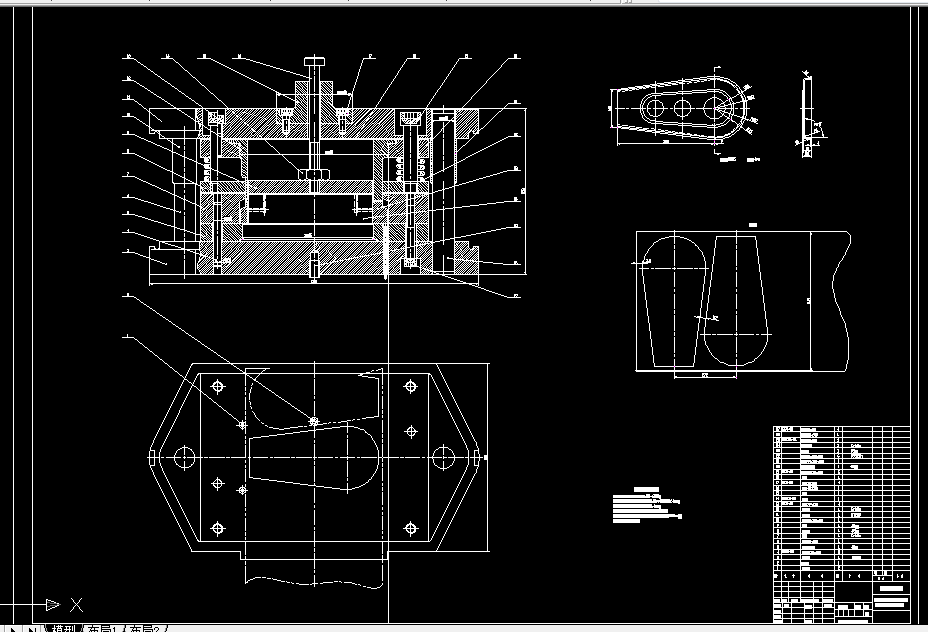
5 模具的结构设计 14
5.1 模具结构形式的选择 14
5.2 模具工作部分尺寸计算 15
5.2.1 落料凹模 15
5.2.2 拉深凸模 15
5.2.3 凸凹模 16
6 模具的主要零部件结构设计 16
6.1 定位零件 16
6.1.1 挡料销 16
6.1.2 导料销 16
6.2 卸料装置 17
6.3 模架及其零件 17
6.3.1 模架 17
6.3.2 导向零件 17
6.3.3 模座 18
6.4 其他支承与固定零件 18
6.4.1 模柄 18
6.4.2 凸模固定板 18
6.4.3 垫板 18
6.5 紧固件 19
6.6 模具总体设计 20
7 确定冲压设备 21
8 模具的装配 22
8.1 复合模的装配 22
8.2 凸、凹模间隙的调整 22
9 重要零件的加工工艺过程编制 23
结束语 25
参考文献 26
致 谢 27
温馨提示:
1、题目前面的备注【字母数字编号】为本站整理分类的编号,与课题内容无关,请选题时忽视;
2、若题目上备注三维,则表示文件里包含三维源文件,由于三维组成零件数量较多,为保证预览截图的简洁性,本站将三维文件夹进行了打包。三维及CAD预览截图,均为本站电脑打开软件进行截图的,保证能够打开,下载原件超高清,下载后解压即可;
3、本站所有资源如无特殊说明,都需要本地电脑安装Office2007。图纸软件为AutoCAD,PROE,UG,SolidWorks,CATIA等;
4、本站所有图文资料仅供用户学习参考,不作为任何商用或其他用途;
5、本站不保证下载资源的准确性、安全性和完整性, 不包修改,不支持退换,同时也不承担用户因使用这些下载资源对自己和他人造成任何形式的伤害或损失;
6、 下载文件中如有侵权或不适当内容,请与我们联系,我们立即纠正。