

作品包括:
word说明书一份,共21页,约7200字
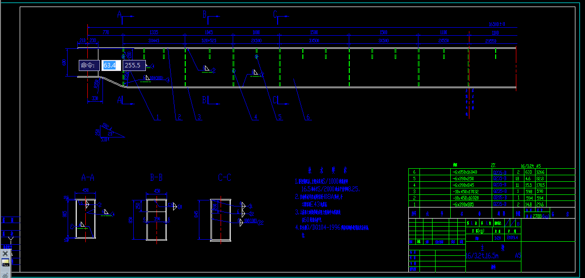
CAD版本图纸,共6张
摘要
起重机是减轻人们笨重劳动体力劳动,提高作业效率,实现安全生产的起重运输设备。在国民物资生产中和物资运输中起到关键的基础作用或辅助作用。本文是为了更好的节省成本,提高材料的利用率,提高起重机的性价比,而设计完成的。
本文主要介绍了QD型16/3.2T,A5级电动桥式双梁起重机的机械设计过程及制造加工图纸。
关键词:双梁起重机,QD型16/3.2T,电动桥式。
1. 绪论 1
1.1 选题的意义: 1
1.2 起重机的发展概况: 1
2. 16/3.2T 电动桥式起重机主起升机构的设计 2
2.1 钢丝绳的选择 2
2.1.1 钢丝绳受到静拉力的计算 2
2.1.2 钢丝绳型号选择 2
2.1.3 滑轮组选择 3
2.2 卷筒的选择 3
2.2.1 卷筒直径选择 3
2.2.2 卷筒长度 3
2.2.3 卷筒的转速计算 3
2.3 选择电动机 4
2.3.1 电动机静功率的计算 4
2.3.2 电动机功率 4
2.3.3 电动机过载能力校验 4
2.4 减速器的选择 4
2.4.1 传动比的计算 4
2.4.2 标准减速器的选择 4
2.4.3. 验算减速器 5
2.5 选择制动器 5
2.6 选择轴及联轴器 5
2.6.1 轴的选择: 5
2.6.2 联轴器的的选择 6
2.7 起动及制动时间验算 6
2.7.1 起动时间和起动加速度验算 6
2.7.2 制动时间和制动平均加速度验算 7
3. 16/3.2T 电动桥式起重机副起升机构的设计 7
4 电动小车运行机构的设计 8
4.1 运行阻力的计算 8
4.1.1 摩擦力Fm的计算 8
4.1.2坡道力Fp的计算 8
4.1.3 运行风阻力Fw 8
4.2 电动机的选择 8
4.2.1 电动机的静功率的计算 8
4.2.2 电动机的初选 9
4.3 起动时间与起动平均加速度的验算。 10
4.4 标准减速器的选择 10
4.5 制动器的选择 11
4.6 传动轴和联轴器的选择 11
4.7 运行打滑验算 12
5 大车运行机构的设计 12
6 双梁小车式桥式起重机金属结构设计 13
6.1 载荷的计算 13
计算得: 所以轮压分布如图4所示; 13
6.2 主梁的结构及尺寸选择 14
6.2.1 按梁的强度条件确定梁高hs 14
6.3 主梁设计计算。 15
6.3.2 主梁的刚度计算 16
结束语 17
致谢 17
主要参考文献与资料 18
温馨提示:
1、题目前面的备注【字母数字编号】为本站整理分类的编号,与课题内容无关,请选题时忽视;
2、若题目上备注三维,则表示文件里包含三维源文件,由于三维组成零件数量较多,为保证预览截图的简洁性,本站将三维文件夹进行了打包。三维及CAD预览截图,均为本站电脑打开软件进行截图的,保证能够打开,下载原件超高清,下载后解压即可;
3、本站所有资源如无特殊说明,都需要本地电脑安装Office2007。图纸软件为AutoCAD,PROE,UG,SolidWorks,CATIA等;
4、本站所有图文资料仅供用户学习参考,不作为任何商用或其他用途;
5、本站不保证下载资源的准确性、安全性和完整性, 不包修改,不支持退换,同时也不承担用户因使用这些下载资源对自己和他人造成任何形式的伤害或损失;
6、 下载文件中如有侵权或不适当内容,请与我们联系,我们立即纠正。