

作品包括:
word说明书一份,共22页,约10000字
SolidWorks三维版本图纸,一套
毕业论文(设计)任务书、
题目名称:1.5电葫芦提升系统设计(控制系统及跑车结构设计)
一、论文(设计)主要内容及主要技术指标
(1)主要内容
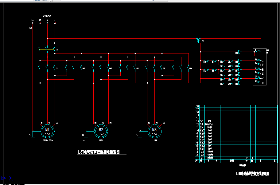
1.5T电葫芦的控制系统工作原理分析,跑车结构设计。
(2)主要技术指标
最大提升高度:6.9m 提升速度:8m/min
运行速度:20m/min
二、毕业论文(设计)的基本要求
1、毕业设计报告:有400字左右的中文摘要,正文后有20篇左右的才能考文献,正文要引用5篇以上文献,并注明文献出处。
2、有不少于2000汉字的与本课题有关的外文翻译资料。
3、毕业设计字数在20000字以上。
4、三维模型,相关图纸。
摘 要
小车上机构的布置及同一机构中各零件间的配合要求适当。起升机构和小车运行机构二者之间的距离不应太小,否则维修不便,或造成小车架难以设计;但也不应太大,否则小车就不紧凑,小车车轮的轮压分布要求均匀。且要求获得最小的车轮、轴及轴承箱的尺寸,并且使起重机桥架主梁上受到均匀的载荷。一般最大轮压不应超过平均轮压的20%。小车架上的机构与小车架配合要恰当。在设计原则上,要以机构为主,尽量用小车去配合机构;同时机构的布置也要尽量使钢结构的设计制造方便。因为小车架是为了安置与支承起升机构和小车运行机构的,所以小车架要按照起升和运行机构的要求设计,但在不影响机构工作的前提下,机构的布置也应配合小车架的设计,使其构造简单、合理和便于制造。
关键词:电动葫芦,起重机,控制系统,减速器,行走小车
目 录
1 研究电动葫芦的背景,目的和意义 1
2 电动葫芦的概念和工作原理 1
2.1 重型钢丝绳电动葫芦存在的不足 3
2.2 国内钢丝绳电动葫芦发展方向 4
3 电动葫芦的控制线路 5
4 电动葫芦跑车结构的设计 5
4.1行走小车简介 5
4.2 小车的设计计算 6
4.2.1 选择电动机的容量 6
4.2.2 计算电动机所需功率P0 7
4.2.3 确定电动机的额定功率Pm 7
4.2.4 确定传动装置总传动比计算及各级传动比的分配 7
4.3 减速器齿轮的选择计算 8
4.3.1高速级齿轮 8
4.3.2 小车一级开式齿轮的齿数选择计算 11
4.5 小车结构各轴的设计 13
4.5.1 选择各轴的直径 13
4.6 轴承的校核 14
4.7 轴的校核 14
5 设计总图 14
6 设计总结 15
致谢 17
参考文献 18
温馨提示:
1、题目前面的备注【字母数字编号】为本站整理分类的编号,与课题内容无关,请选题时忽视;
2、若题目上备注三维,则表示文件里包含三维源文件,由于三维组成零件数量较多,为保证预览截图的简洁性,本站将三维文件夹进行了打包。三维及CAD预览截图,均为本站电脑打开软件进行截图的,保证能够打开,下载原件超高清,下载后解压即可;
3、本站所有资源如无特殊说明,都需要本地电脑安装Office2007。图纸软件为AutoCAD,PROE,UG,SolidWorks,CATIA等;
4、本站所有图文资料仅供用户学习参考,不作为任何商用或其他用途;
5、本站不保证下载资源的准确性、安全性和完整性, 不包修改,不支持退换,同时也不承担用户因使用这些下载资源对自己和他人造成任何形式的伤害或损失;
6、 下载文件中如有侵权或不适当内容,请与我们联系,我们立即纠正。