欢迎来到龙图网在线图文分享平台-CAD图纸,设计说明书,工业设计3D模型,三维软件下载!   客服QQ:2363701252
热搜:

工艺夹具 模具设计 数控编程 土木工程 3D模型

Z244-蓄电池外壳热封口机设计 下载积分:50 资料编号: Z244

1.打开支付宝或者微信扫描二维码。
2.填写金额:50 
3.添加备注,填写资料编号:
资料编号: Z244
4.支付成功后,请发资料编号到邮箱:jxsj168@qq.com
会有专人在15分钟内把资料发到您邮箱
备注:如果付款忘记填写资料编号,则发邮件时附带您的交易明细截图即可。
请耐心等待,如超过30分钟还没收到,请联系客服QQ:2363701252
点击分享:

作品描述

作品包括:

word说明书一份,共46页,约22000字

任务书一份

开题报告一份

外文翻译一份

CAD版本图纸,共11张


摘  要

封口机是一种包装机械,目前在我国非常落后,特别是火工产品包装设备,基本为手工和半自动包装。本设计为设计一台全自动塑料盒封口机,用于蓄电池的包装。通过对封口机的使用条件、功能及设计参数的分析,将机器的总功能分为功能元,提出各功能元的最优方案;根据最优方案进行结构设计、具体零部件的材料选择、强度计算,最终确定零部件结构尺寸;再根据总体方案进行系统的总驱动、总控制设计。经过一番对气动系统和控制系统的研究,了解其工作原理及控制方法,就可以认识到封口机的工作过程。

蓄电池外壳热封口机的基本结构设计是由一个机架组架、上料传动机构、上下料机构、精密模架双头封口机构、气缸-连杆増力机构和气动系统、液压缸-连杆増力机构和液压系统、电器控制系统及软件。其所实现的快速封口主要由上下料机构决定,其主要由三个气缸-连杆机构统和三个具有双圆弧的推动薄片所形成的动力系统,盛放上下料机构的侧立板以及其上的定位装置和精密模架双头封口机构。

此封口机通过气缸来实现盒子的运动,加热,冷却及夹紧。通过此封口机,可以实现人力的解放,并更好的保证了产品的安全,提高包装质量,提升生产效率,进而获得更大的利润。


    关键词:封口机;包装机械;功能;气动系统;控制系统


目  录

摘  要 III

ABSTRACT IV

目  录 V

1 绪论 1

1.1 本课题的研究内容和目的 1

1.1.1 本课题的研究目的 1

1.1.2 本课题研究的主要内容 1

1.2 国内外的发展概况 2

1.2.1 包装机械的概述 2

1.2.2 封口机的概述 3

1.2.3 封口机的国内外研究情况 4

1.3 自动化生产线技术概述 4

1.3.1 自动生产线的发展历程 4

1.3.2 自动化技术的发展趋势 6

2 课题解析及其任务设计 7

2.1课题背景及意义 7

2.2 塑料盒设计内容及技术参数 、要求 7

2.2.1 设计用途 7

2.2.2 设计技术参数 7

2.2.3 塑料盒技术要求 8

2.3 进行该设计的知识准备 8

3 总体方案的制定与设计 9

3.1 塑料盒的总功能分析 9

3.2 功能分解 9

3.2.1 塑料盒封口功能的分解 10

3.2.2 塑料盒自动输送功能的分解 10

3.2.3 过程控制 10

3.3 各功能元的原理方案设计、分析、评价及选定 11

3.3.1 常用的封口形式 11

3.3.2 封口装置的移动 12

3.3.3 封口参数的制定 13

3.3.4 塑料盒的定位 13

3.3.5 塑料的夹紧 14

3.3.6 塑料盒的移动 14

3.3.7 塑料盒的驱动 15

3.3.8 塑料盒输送的控制 15

3.4 蓄电池外壳热封口机的组成及工艺流程 15

3.4.1 封口机的工艺流程 15

3.4.2 封口机的主要装置 15

4 加热装置的设计 16

4.1 气缸的设计及计算 16

4.1.2 确定气缸行程 16

4.1.3 确定气缸结构类型 16

4.2 加热模板的设计 17

4.2.1 技术关键 17

4.2.2 结构设计 17

4.2.3 材料的选择 18

4.3 加热装置的其他结构的设计 18

4.3.1 隔热的设计 18

4.3.2 加热装置位置调整设计 18

5 冷却装置的设计 20

5.1 冷却模板的设计 20

5.1.1 冷却模板设计的技术关键 20

5.1.2 冷却模板的结构设计 20

5.2  冷却装置的结构设计 21

6 盒输送装置的设计 22

6.1 盒输送装置设计原理 22

6.2  盒输送气缸设计、计算 22

6.2.1 气缸类型及结构的选择 22

6.2.2 气缸参数计算 22

6.3  推板导向装置 23

6.3.1 直线导轨副类型的选择 23

6.3.2 滚动直线导轨的参数选择计算 23

6.3.3 选型 24

7 蓄电池外壳热封口机总体设计 26

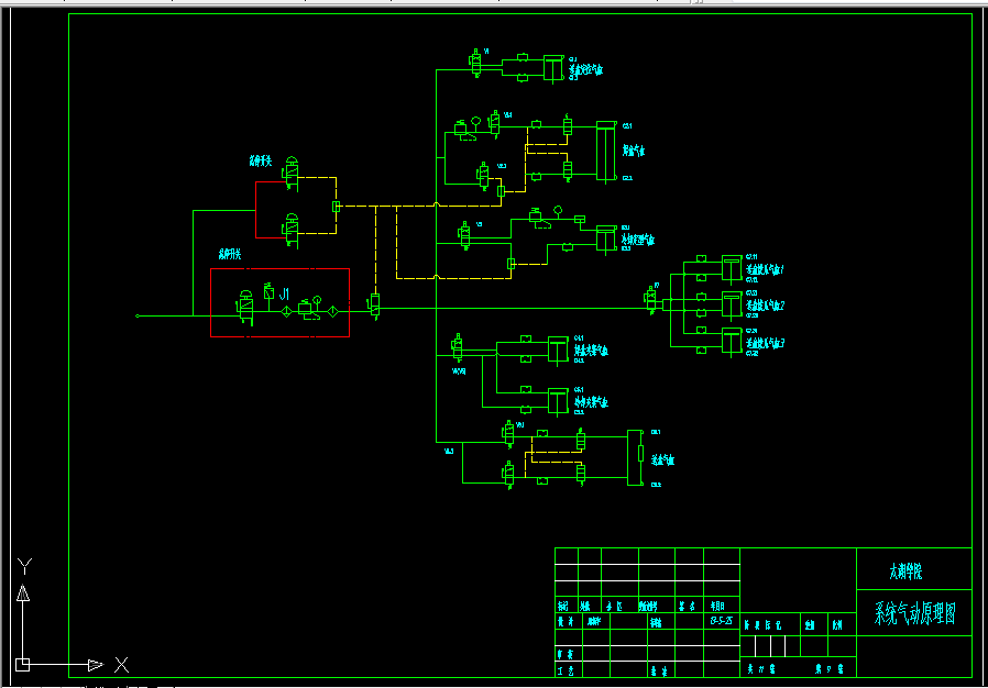
7.1 气压传动系统的设计 26

7.2 控制系统的设计 26

7.2.1 控制流程图 26

7.2.2  I/O点分配 28

7.2.3 程序梯度图 29

7.3 封口机的机架设计 29

7.4 封口机的总装图 30

8 结论与展望 31

8.1结论 31

8.2不足之处及未来展望 31

致  谢 32

参考文献 33

温馨提示:

1、题目前面的备注【字母数字编号】为本站整理分类的编号,与课题内容无关,请选题时忽视;

2、若题目上备注三维,则表示文件里包含三维源文件,由于三维组成零件数量较多,为保证预览截图的简洁性,本站将三维文件夹进行了打包。三维及CAD预览截图,均为本站电脑打开软件进行截图的,保证能够打开,下载原件超高清,下载后解压即可;

3、本站所有资源如无特殊说明,都需要本地电脑安装Office2007。图纸软件为AutoCAD,PROE,UG,SolidWorks,CATIA等;

4、本站所有图文资料仅供用户学习参考,不作为任何商用或其他用途;
5、本站不保证下载资源的准确性、安全性和完整性, 不包修改,不支持退换,同时也不承担用户因使用这些下载资源对自己和他人造成任何形式的伤害或损失;

6、 下载文件中如有侵权或不适当内容,请与我们联系,我们立即纠正。


线