

作品包括:
word说明书一份,共40页,约16000字
任务书一份
开题报告一份
外文翻译一份
CAD版本图纸,共12张
摘 要
作为现代机械设备实现传动与控制的重要技术手段,液压技术在国民经济各领域得到了广泛运用。作为世界加工中心,我国机械工业在国民经济中的基础作用越来越明显。液压机技术水平的高低直接影响到国家机械工业的发展水平。单柱式液压机是液压机产品的一个重要组成部分, 8000KN以下的小型锻造液压机常采用C型单臂机架,主要用于轴类零件、型材的校正和轴套类零件的装配,也可用于板材的弯曲成型、拉伸等工艺过程。配置一定的附件式模具后可进行粉末压制成型和固型塑料的成型压制,拥有自主的液压机设计技术是使国家机械工业能在世界竞争中取胜的重要保证,对其展开研究有重要的理论和实际意义。本文完成了160KN单柱式液压机本体的设计,并采用二维制图软件AutoCAD对其进行研究。论文提出了160KN单柱式液压机的技术参数,拟定了机器的结构形式,着重对工作缸做了结构设计和数据计算。根据液压机设计理论完成了整体机架结构及主要结构部件的设计与理论计算。对液压机本体的总体结构和关键部件进行了强度计算与分析,主要内容包括:结构中应力集中情况分析,初始设计方案修正,最终获得了满足强度和刚度要求的机架设计。最后利用AutoCAD软件对160KN单柱式液压机总装配图及主要零部件进行了设计,完成了液压机的整体结构设。
关键词:液压机;工作缸;强度
目 录
摘 要 III
Abstract IV
目 录 V
1 绪论 1
1.1 课题背景及目的与意义 1
1.2 液压机的发展概况 1
1.2.1 液压机在现代工业中的地位 1
1.2.2我国液压机的现状及发展趋势 1
1.2.3 国外液压机的发展状况 3
1.2.4 液压机的总体发展趋势 4
1.3 液压机的工作原理和结构特点 4
1.3.1 液压机的工作原理 4
1.3.2 液压传动的优缺点 5
1.4 液压机的分类 6
2 液压机本体结构设计 8
2.1 液压机的结构特点及设计参数 8
2.1.1 液压机本体结构特点 8
2.1.2 160KN液压机的设计参数 8
2.2 上横梁结构的设计 9
2.3工作台结构的设计 9
2.3.1 结构形式 9
2.3.2 加工技术要求 10
2.3.3 固定模具的结构 10
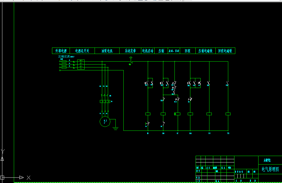
3 液压机液压系统原理图设计 12
3.1 明确设计要求,制定基本方案 12
3.1.1 设计要求 12
3.1.2 确定液压执行元件的形式 12
3.1.3 确定液压执行元件运动控制回路 13
3.1.4 液压源系统 13
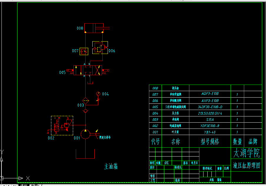
3.2 液压系统各液压元件的确定 13
3.2.1 液压介质的选择 13
3.2.2 拟定液压系统图 14
3.3 液压系统主要参数计算 16
3.3.1 选系统工作压力 16
3.3.2 液压缸设计中应注意的的问题 16
3.3.3 液压缸主要参数的确定 16
3.3.3 液压缸强度校核 17
3.3.4 液压缸稳定性校核 18
3.4 液压阀的选择 21
3.4.1 液压阀的作用 21
3.4.2 液压阀的基本要求 21
3.4.3 液压阀的选择 21
3.5 液压泵的选择 22
3.6 电动机功率的确定 22
3.7 液压管件的确定 23
3.7.1 油管内径确定 23
3.7.2 管接头 23
3.8 本章小结 23
4 液压机的强度与刚度计算 25
4.1 上横梁结构的强度与刚度计算 25
4.1.1 受力分析 25
4.1.2 主截面(Ⅰ—Ⅰ)强度计算 26
4.1.3 主截面(Ⅱ—Ⅱ)强度计算 26
4.2 本章小结 27
结 论 28
致 谢 29
参考文献 30
温馨提示:
1、题目前面的备注【字母数字编号】为本站整理分类的编号,与课题内容无关,请选题时忽视;
2、若题目上备注三维,则表示文件里包含三维源文件,由于三维组成零件数量较多,为保证预览截图的简洁性,本站将三维文件夹进行了打包。三维及CAD预览截图,均为本站电脑打开软件进行截图的,保证能够打开,下载原件超高清,下载后解压即可;
3、本站所有资源如无特殊说明,都需要本地电脑安装Office2007。图纸软件为AutoCAD,PROE,UG,SolidWorks,CATIA等;
4、本站所有图文资料仅供用户学习参考,不作为任何商用或其他用途;
5、本站不保证下载资源的准确性、安全性和完整性, 不包修改,不支持退换,同时也不承担用户因使用这些下载资源对自己和他人造成任何形式的伤害或损失;
6、 下载文件中如有侵权或不适当内容,请与我们联系,我们立即纠正。