

作品包括:
Word版设计说明书1份,共52页,约8100字
S7-200 PLC程序一份
电气CAD图纸4张
IO分配

摘 要
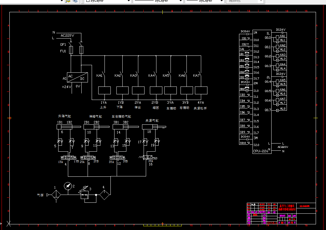
在本设计是基于PLC的搬运机械手控制系统设计,采用了西门子S7-200的小型PLC为控制核心,通过PLC控制继电器,继电器控制电磁阀,电磁阀控制气缸,实现气动控制上升、下降、伸出、缩回、加紧、松开、左右摆动等动作。系统分为自动和手动操作模式,手动操作通过外部的按钮单独进行各个操作,方便调试和测试时使用。自动模式,按下启动按钮,系统自动运行,自动执行,工件在左(右)位→摆缸动作到左(右)位→伸缩气缸伸出→升降气缸下降→气爪夹紧工件(夹紧指示灯亮)→升降气缸上升→伸缩气缸缩回→摆缸动作到右(左)位→伸缩气缸伸出→升降气缸下降→气爪松开工件→升降气缸上升→伸缩气缸缩回等操作。通过分析系统控制要求,进行了总体设计;进行了硬件设计,选择了PLC,设计了气动原理图,设计了控制电路和电源电路,分配了PLC的输入和输出,进行了PLC输入输出接线图设计,进行了面板设计和柜内器件布置设计;进行了软件设计,设计了控制程序流程图,使用编程软件编写了梯形图程序和语句表程序;最后进行了调试和仿真测试,经测符合设计要求,达到了预期的设计目的。
关键词:气动 机械手 梯形图
目 录
摘 要 3
Abstract 4
1 绪 论 5
1.1课题简介 5
1.2技术指标 5
1.3工作量要求 5
2 总体设计 6
3 硬件设计 8
3.1 PLC选择 8
3.2气动回路设计 8
3.4控制电路和电源电源设计 9
3.5 PLC输入和输出接线图 10
3.6 PLC输入和输出分配 10
3.7 面板图 12
3.8 柜内器件布置图 13
3.9 器件清单 13
4 软件设计 15
4.1 PLC内部使用地址 15
4.2 控制程序流程图 15
4.3 梯形图程序设计 16
4.4 语句表程序设计 29
5 调试和仿真测试 37
5.1调试 37
5.2仿真测试 37
结 论 42
谢 辞 43
参考文献 44
附 录 45
附录1 总图纸 45
附录2 梯形图汇总 46
温馨提示:
1、题目前面的备注【字母数字编号】为本站整理分类的编号,与课题内容无关,请选题时忽视;
2、若题目上备注三维,则表示文件里包含三维源文件,由于三维组成零件数量较多,为保证预览截图的简洁性,本站将三维文件夹进行了打包。三维及CAD预览截图,均为本站电脑打开软件进行截图的,保证能够打开,下载原件超高清,下载后解压即可;
3、本站所有资源如无特殊说明,都需要本地电脑安装Office2007。图纸软件为AutoCAD,PROE,UG,SolidWorks,CATIA等;
4、本站所有图文资料仅供用户学习参考,不作为任何商用或其他用途;
5、本站不保证下载资源的准确性、安全性和完整性, 不包修改,不支持退换,同时也不承担用户因使用这些下载资源对自己和他人造成任何形式的伤害或损失;
6、 下载文件中如有侵权或不适当内容,请与我们联系,我们立即纠正。