

作品包括:
Word版说明书1份,共31页,约5500字
西门子S7-200 PLC程序一份
CAD版本图纸,共1张
IO分配

摘 要
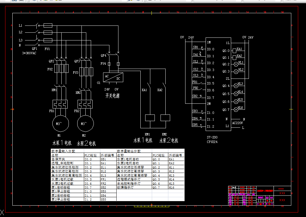
本文是地铁站机房集水坑抽水泵的PLC控制系统设计,通过分析控制要求,分析了设备类型,输入和输出种类和点数,进行了设备的选型设计,设计了主电路和控制电路图,分配了输入和输出点,设计了输入和输出接线图。设计了控制程序流程图,采用西门子的S7-200 PLC编程软件编写了梯形图程序和语句表程序,最后使用S7-200 PLC的仿真软件进行了模拟仿真,达到了预期的设计效果。
关键词:PLC、地铁站机房集水坑排水系统、自动控制
目 录
1 前 言 1
2 控制要求 3
3硬件设计 4
3.1PLC 选择 4
3.2主电路设计 4
3.3控制电路设计 5
3.4 输入和输出分配表 6
3.5 PLC接线图 7
3.6 元器件选择表 8
4软件设计 10
4.1 PLC控制程序流程图 10
4.2 梯形图 10
4.3语句表程序 13
5 仿真测试 16
6 结 论 22
参考文献 23
致 谢 24
附 录 25
附录1 电气图汇总 25
附录2梯形图程序汇总 26
温馨提示:
1、题目前面的备注【字母数字编号】为本站整理分类的编号,与课题内容无关,请选题时忽视;
2、若题目上备注三维,则表示文件里包含三维源文件,由于三维组成零件数量较多,为保证预览截图的简洁性,本站将三维文件夹进行了打包。三维及CAD预览截图,均为本站电脑打开软件进行截图的,保证能够打开,下载原件超高清,下载后解压即可;
3、本站所有资源如无特殊说明,都需要本地电脑安装Office2007。图纸软件为AutoCAD,PROE,UG,SolidWorks,CATIA等;
4、本站所有图文资料仅供用户学习参考,不作为任何商用或其他用途;
5、本站不保证下载资源的准确性、安全性和完整性, 不包修改,不支持退换,同时也不承担用户因使用这些下载资源对自己和他人造成任何形式的伤害或损失;
6、 下载文件中如有侵权或不适当内容,请与我们联系,我们立即纠正。