欢迎来到龙图网在线图文分享平台-CAD图纸,设计说明书,工业设计3D模型,三维软件下载!   客服QQ:2363701252
热搜:

工艺夹具 模具设计 数控编程 土木工程 3D模型

JJ1298-步进器支承体加工工艺及镗φ126孔夹具设计 下载积分:150 资料编号: JJ1298

1.打开支付宝或者微信扫描二维码。
2.填写金额:150 
3.添加备注,填写资料编号:
资料编号: JJ1298
4.支付成功后,请发资料编号到邮箱:jxsj168@qq.com
会有专人在15分钟内把资料发到您邮箱
备注:如果付款忘记填写资料编号,则发邮件时附带您的交易明细截图即可。
请耐心等待,如超过30分钟还没收到,请联系客服QQ:2363701252
点击分享:

作品描述

作品包括:

Word版说明书1份,共38页

工序卡13张

工艺过程卡1张

CAD版本图纸,共8张

image.png

摘要

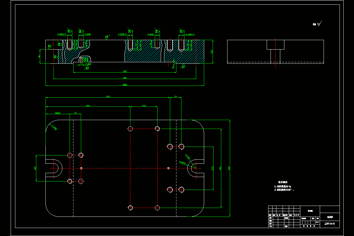
步进器支承体是步进器上重要的支承零件,支承安装在步进器上面的零部件,为步进器的正常工作提供支撑。该零件其材料选择QT400-10球墨铸铁,这种材料铸造性能良好,具有较好的切削性能,耐磨性都相当不错,弹性很好,可以对很多比较复杂工件进行铸造。本次毕设需要完成工件加工工艺还有镗Ф126孔的加工。

在对加工工艺设计之前,需要完成了工件作用,构造还有加工要求的分析,对工件制造方式,生产方式等进行了确定,确定加工余量并绘制出毛坯图。选择了2个加工工艺路线,确定了最为合理的一种,填写了加工工艺过程卡。计算了切削用量和加工的工时,填写了加工工序卡。

对零件分析后发现,该零件镗Ф126孔需设计一套镗床专用夹具对其进行加工。依据定位原理和夹紧装置的设计要求,设计了加工本工序的定位和夹紧方案,依据方案选择了相应的原件,设计了夹具体以便和机床连接,设计了镗模座以便安装导向装置镗套,最后画了夹具装配图还有非标零件图。

关键词:步进器支承体、加工工艺,Ф126孔、镗床、专用夹具

目录

摘要I

Abstract II

第一章前言1

第二章分析零件结构、确定制造形式及生产类型2

2.1分析步进器支承体的作用2

2.2分析步进器支承体的结构2

2.2.1分析步进器支承体组成表面2

2.2.2分析步进器支承体加工表面加工要求3

2.2.3分析步进器支承体形位公差3

2.3选择步进器支承体的材料3

2.4确定制造形式3

2.5确定生产类型4

第三章步进器支承体加工工艺规程的设计5

3.1选择零件的加工基准5

3.2设计加工工艺路线5

3.2.1选择加工工艺路线5

3.2.2确定加工工艺路线6

3.3选择机加工工艺装置7

3.4确定零件的加工余量7

3.5确定零件切削用量、计算加工工时10

第四章设计镗Ф126孔的专用夹具27

4.1设计定位方案27

4.2确定定位元件27

4.3设计夹紧方案28

4.4确定夹紧元件28

4.5设计夹具体28

4.6选择镗孔导向零件—镗套29

4.7计算镗削力29

4.8计算夹紧力30

4.9分析定位误差31

第五章总结32

致谢33

参考文献34

温馨提示:

1、题目前面的备注【字母数字编号】为本站整理分类的编号,与课题内容无关,请选题时忽视;

2、若题目上备注三维,则表示文件里包含三维源文件,由于三维组成零件数量较多,为保证预览截图的简洁性,本站将三维文件夹进行了打包。三维及CAD预览截图,均为本站电脑打开软件进行截图的,保证能够打开,下载原件超高清,下载后解压即可;

3、本站所有资源如无特殊说明,都需要本地电脑安装Office2007。图纸软件为AutoCAD,PROE,UG,SolidWorks,CATIA等;

4、本站所有图文资料仅供用户学习参考,不作为任何商用或其他用途;
5、本站不保证下载资源的准确性、安全性和完整性, 不包修改,不支持退换,同时也不承担用户因使用这些下载资源对自己和他人造成任何形式的伤害或损失;

6、 下载文件中如有侵权或不适当内容,请与我们联系,我们立即纠正。


线