欢迎来到龙图网在线图文分享平台-CAD图纸,设计说明书,工业设计3D模型,三维软件下载!   客服QQ:2363701252
热搜:

工艺夹具 模具设计 数控编程 土木工程 3D模型

JJ1735-茶杯杯盖注塑模具设计 下载积分:50 资料编号: JJ1735

1.打开支付宝或者微信扫描二维码。
2.填写金额:50 
3.添加备注,填写资料编号:
资料编号: JJ1735
4.支付成功后,请发资料编号到邮箱:jxsj168@qq.com
会有专人在15分钟内把资料发到您邮箱
备注:如果付款忘记填写资料编号,则发邮件时附带您的交易明细截图即可。
请耐心等待,如超过30分钟还没收到,请联系客服QQ:2363701252
点击分享:

作品描述

作品包括:

Word版说明书1份,共48页,约27000字

任务书一份

外文翻译一份

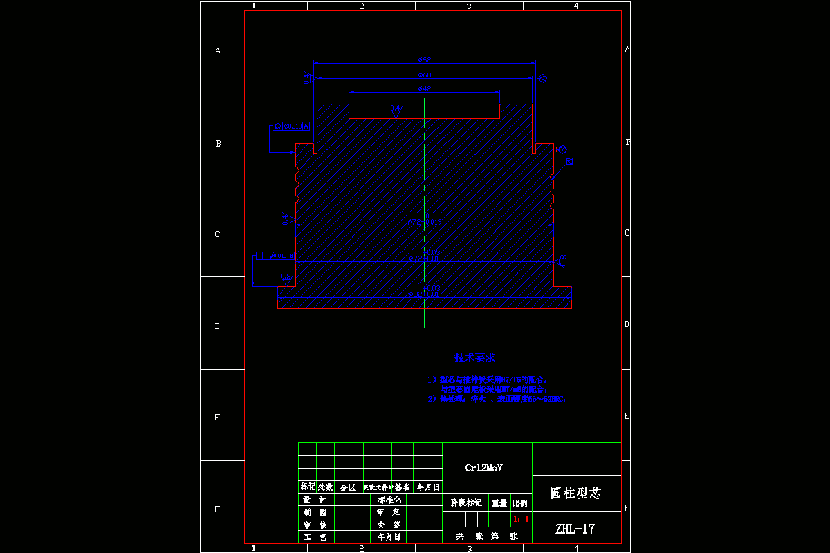
CAD版本图纸,共15张

image.png

image.png

摘要

模具工业是国民经济的基础工业,而塑料模具又是整个模具行业的霸主。我国的塑料成型模具设计,制作技术比较晚,整体水平还比较低,但近几年发展比较迅速。目前单单型腔的模具达80%以上,仍占主导地位。该设计通过对多种相似塑件的模具结构参考,设计的是聚乙烯塑件(某型口杯盖),采用的是一模两腔注射。该产品采用点浇口注射,和整体式型腔设置。型腔是由两瓣合模构成,利用斜导柱侧向分型,塑件的螺纹采用强制脱模。。

关键词:杯盖;注射模;瓣合模;侧向分型;设计;

目录

前言

1概述6

1.1塑料工业简介6

1.2我国塑料模现状7

1.3塑料模发展趋势7

2制品的分析8

2.1制品的简介8

2.2制品的工艺性及结构分析8

2.3注射成形过程8

3拟订模具的结构形式11

3.1确定型腔数量及排列方式11

3.2模具结构形式的确定11

3.3注塑机型号的确定11

3.4分型面位置确定14

3.5浇注系统的设计15

3.6脱模推出机构的确定25

3.7侧向分型与抽芯机构的设计26

3.8合模导向机构的设计29

3.9排气系统的设计31

3.10温度调节系统设计31

3.11模架的确定和标准件的选用35

3.12成形零件的结构设计和计算36

4塑料模材料的选用及技术要求41

4.1塑料模材料的性能要求41

4.2塑料模零件选材原则41

4.3塑料模材料选用41

4.4模具的精度要求42

5模具工作过程45

5.1成型前的准备45

5.2注射过程45

5.3脱模过程45

5.4制品的后处理45

总结47

参考文献48

温馨提示:

1、题目前面的备注【字母数字编号】为本站整理分类的编号,与课题内容无关,请选题时忽视;

2、若题目上备注三维,则表示文件里包含三维源文件,由于三维组成零件数量较多,为保证预览截图的简洁性,本站将三维文件夹进行了打包。三维及CAD预览截图,均为本站电脑打开软件进行截图的,保证能够打开,下载原件超高清,下载后解压即可;

3、本站所有资源如无特殊说明,都需要本地电脑安装Office2007。图纸软件为AutoCAD,PROE,UG,SolidWorks,CATIA等;

4、本站所有图文资料仅供用户学习参考,不作为任何商用或其他用途;
5、本站不保证下载资源的准确性、安全性和完整性, 不包修改,不支持退换,同时也不承担用户因使用这些下载资源对自己和他人造成任何形式的伤害或损失;

6、 下载文件中如有侵权或不适当内容,请与我们联系,我们立即纠正。


线