

作品包括:
Word版说明书1份,共43页,约13000字
CAD版本图纸,共12张
UG三维图一份
Proe三维图一份


摘要
国内外经济快速发展的今天,对塑料模具设计、使用和研究都是很普遍的,本次设计我们在了解零件的性能和功用的前提下,对其工艺性能和尺寸需要保证的精度进行了分析。
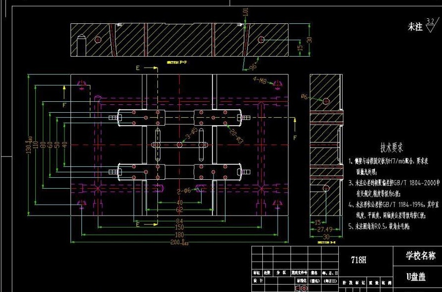
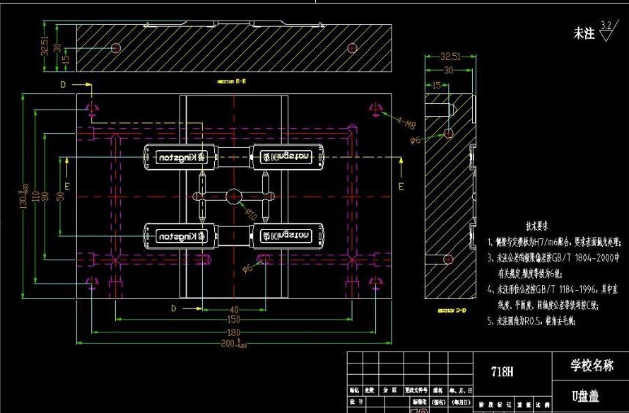
权衡了塑件的外形尺寸。本次的模具采用一个模具四个成型腔,进料口开设在侧面,注射机的型号采用HTF80XB,并且还要具有冷却系统。拥有了合理的加工步骤,利用二维CAD和三维PROE绘制总的装配图和主要的零件图。
在设计说明里面,我采用了比较简便的语言和示意图,对其进行了在分析,所以就得到了合适的设计。
关键词:塑料模具;塑件;注射机;冷却系统
目录
摘要I
Abstract 1
绪论4
1.1塑料简介4
1.2注塑成型及注塑模4
1模具工艺规程的编制7
1.1塑件的工艺性分析7
1.1.1塑件原材料的分析7
1.1.2塑件的结构和尺寸几表面质量的分析8
1.2塑件体积和重量的计算(计算塑件的重量是为了合理选用注射机) 9
1.3塑件注射工艺参数的确定11
2.注射模结构设计12
2.1分型面的选择12
2.2确定型腔的排列方式13
2.3浇注系统的设计14
2.3.1主流道设计(如图2.3.1) 15
2.3.2浇口设计16
2.3.3分浇道和冷料井(如图2.3.2) 16
3.模具设计的有关数据的计算19
3.1型腔和型芯工作尺寸的计算(见表3-1) 19
4.模具加热和冷却系统的设计21
4.1模具加热系统21
4.2模具冷却系统设计21
5.模具有关参数的确定及校核24
5.1闭合高度的确定及校核24
5.2注射机有关参数的校核25
5.2.1注射机注射量的校核25
5.2.2注射机压力的校核25
5.3模具尺寸、开模行程和锁模力的校核25
6模具其它结构设计28
6.1脱模装置设计28
6.1.1推出力的计算28
6.1.2推出机构设计29
6.2导向与定位机构设计30
6.3排气及引气系统的设计32
7.模具工作原理33
9相关零件和标准件的尺寸34
10排气系统的设计35
致谢39
参考文献: 40
温馨提示:
1、题目前面的备注【字母数字编号】为本站整理分类的编号,与课题内容无关,请选题时忽视;
2、若题目上备注三维,则表示文件里包含三维源文件,由于三维组成零件数量较多,为保证预览截图的简洁性,本站将三维文件夹进行了打包。三维及CAD预览截图,均为本站电脑打开软件进行截图的,保证能够打开,下载原件超高清,下载后解压即可;
3、本站所有资源如无特殊说明,都需要本地电脑安装Office2007。图纸软件为AutoCAD,PROE,UG,SolidWorks,CATIA等;
4、本站所有图文资料仅供用户学习参考,不作为任何商用或其他用途;
5、本站不保证下载资源的准确性、安全性和完整性, 不包修改,不支持退换,同时也不承担用户因使用这些下载资源对自己和他人造成任何形式的伤害或损失;
6、 下载文件中如有侵权或不适当内容,请与我们联系,我们立即纠正。