欢迎来到龙图网在线图文分享平台-CAD图纸,设计说明书,工业设计3D模型,三维软件下载!   客服QQ:2363701252
热搜:

工艺夹具 模具设计 数控编程 土木工程 3D模型

JJ1815-肥皂盒注塑模具设计【含UG三维图】 下载积分:100 资料编号: JJ1815

1.打开支付宝或者微信扫描二维码。
2.填写金额:100 
3.添加备注,填写资料编号:
资料编号: JJ1815
4.支付成功后,请发资料编号到邮箱:jxsj168@qq.com
会有专人在15分钟内把资料发到您邮箱
备注:如果付款忘记填写资料编号,则发邮件时附带您的交易明细截图即可。
请耐心等待,如超过30分钟还没收到,请联系客服QQ:2363701252
点击分享:

作品描述

作品包括:

Word版说明书1份,共37页,约15000字

开题报告一份

CAD版本图纸,共10张

UG三维图一份

 329857

image.png

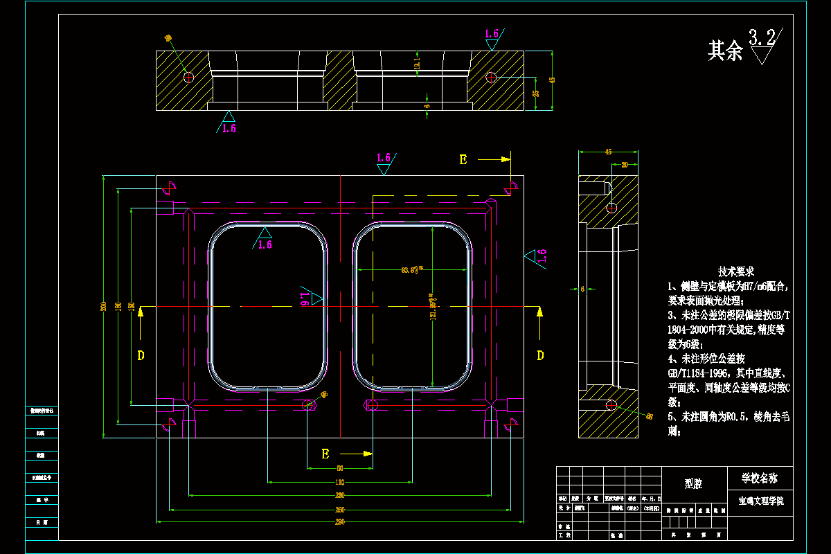
摘要:本课题所研究的内容是将家用的肥皂盒作为设计模型,将注射模具的相关知识作为依据,阐述塑料注射模具的设计过程。本设计对肥皂盒进行的注塑模设计,利用UG软件对塑件进行了实体造型,对塑件结构进行了工艺分析。明确了本次注塑模具的设计思路,确定了注射成型的工艺过程,并对各个具体的部分进行了详细的计算和校核。如此设计出的结构可以确保模具工作运行的可靠性,保证了与其他部件的配合,最后再用AutoCAD绘制出一套模具总装配图和零件图。

本文通过对肥皂盒的注塑模具设计,巩固和深化了所学的专业知识,取得了比较满意的效果,达到了预期的设计意图。

关键词:模具设计;塑料模具;注射成型:CAD绘制二维图

目录

第1章绪论1

1.1塑料简介1

1.2注塑成型及注塑模1

第2章塑料材料分析3

2.1塑料材料的基本特性3

2.2塑件材料成型性能3

2.3塑件材料主要用途4

第3章塑件的工艺分析5

3.1塑件的结构设计5

3.2塑件尺寸及精度6

3.3塑件表面粗糙度6

3.4塑件的体积和质量7

第4章注射成型工艺方案及模具结构的分析和确定8

4.1注射成型工艺过程分析[5] 8

4.2浇口种类的确定9

4.3型腔数目的确定9

4.4注射机的选择和校核9

4.4.1注射量的校核10

4.4.2塑件在分型面上的投影面积与锁模力的校核10

4.4.3模具与注射机安装模具部分相关尺寸校核11

第5章注射模具结构设计13

5.1分型面的设计13

5.2型腔的布局14

5.3浇注系统的设计14

5.3.1浇注系统组成14

5.3.2确定浇注系统的原则15

5.3.3主流道的设计15

5.3.4分流道的设计17

5.3.5浇口的设计17

5.3.6冷料穴的设计18

5.4注射模成型零部件的设计[7] 18

5.4.1成型零部件结构设计18

5.4.2成型零部件工作尺寸的计算19

5.5排气结构设计20

5.5.1凹模宽度尺寸的计算21

5.5.2凹模长度尺寸的计算21

5.5.3凹模高度尺寸的计算22

5.5.4凸模宽度尺寸的计算22

5.5.5凸模长度的计算23

5.5.6凸模高度尺寸的计算23

5.6脱模机构的设计23

5.6.1脱模机构的选用原则23

5.6.2脱模机构类型的选择24

5.6.3推杆机构具体设计24

5.7注射模温度调节系统25

5.7.1温度调节对塑件质量的影响25

5.8模架及标准件的选用27

第6章模具材料的选用29

6.1成型零件材料选用29

6.2注射模用钢种29

总结30

参考文献31

致谢32

温馨提示:

1、题目前面的备注【字母数字编号】为本站整理分类的编号,与课题内容无关,请选题时忽视;

2、若题目上备注三维,则表示文件里包含三维源文件,由于三维组成零件数量较多,为保证预览截图的简洁性,本站将三维文件夹进行了打包。三维及CAD预览截图,均为本站电脑打开软件进行截图的,保证能够打开,下载原件超高清,下载后解压即可;

3、本站所有资源如无特殊说明,都需要本地电脑安装Office2007。图纸软件为AutoCAD,PROE,UG,SolidWorks,CATIA等;

4、本站所有图文资料仅供用户学习参考,不作为任何商用或其他用途;
5、本站不保证下载资源的准确性、安全性和完整性, 不包修改,不支持退换,同时也不承担用户因使用这些下载资源对自己和他人造成任何形式的伤害或损失;

6、 下载文件中如有侵权或不适当内容,请与我们联系,我们立即纠正。


线