欢迎来到龙图网在线图文分享平台-CAD图纸,设计说明书,工业设计3D模型,三维软件下载!   客服QQ:2363701252
热搜:

工艺夹具 模具设计 数控编程 土木工程 3D模型

JJ1918-管座的注射模具设计-滑块抽芯[含三维图] 下载积分:150 资料编号: JJ1918

1.打开支付宝或者微信扫描二维码。
2.填写金额:150 
3.添加备注,填写资料编号:
资料编号: JJ1918
4.支付成功后,请发资料编号到邮箱:jxsj168@qq.com
会有专人在15分钟内把资料发到您邮箱
备注:如果付款忘记填写资料编号,则发邮件时附带您的交易明细截图即可。
请耐心等待,如超过30分钟还没收到,请联系客服QQ:2363701252
点击分享:

作品描述

作品包括:

Word版说明书1份,共33页,约10000字

CAD版本图纸,共11张

UG三维图一份

Proe三维图一份

image.png

image.png

摘要

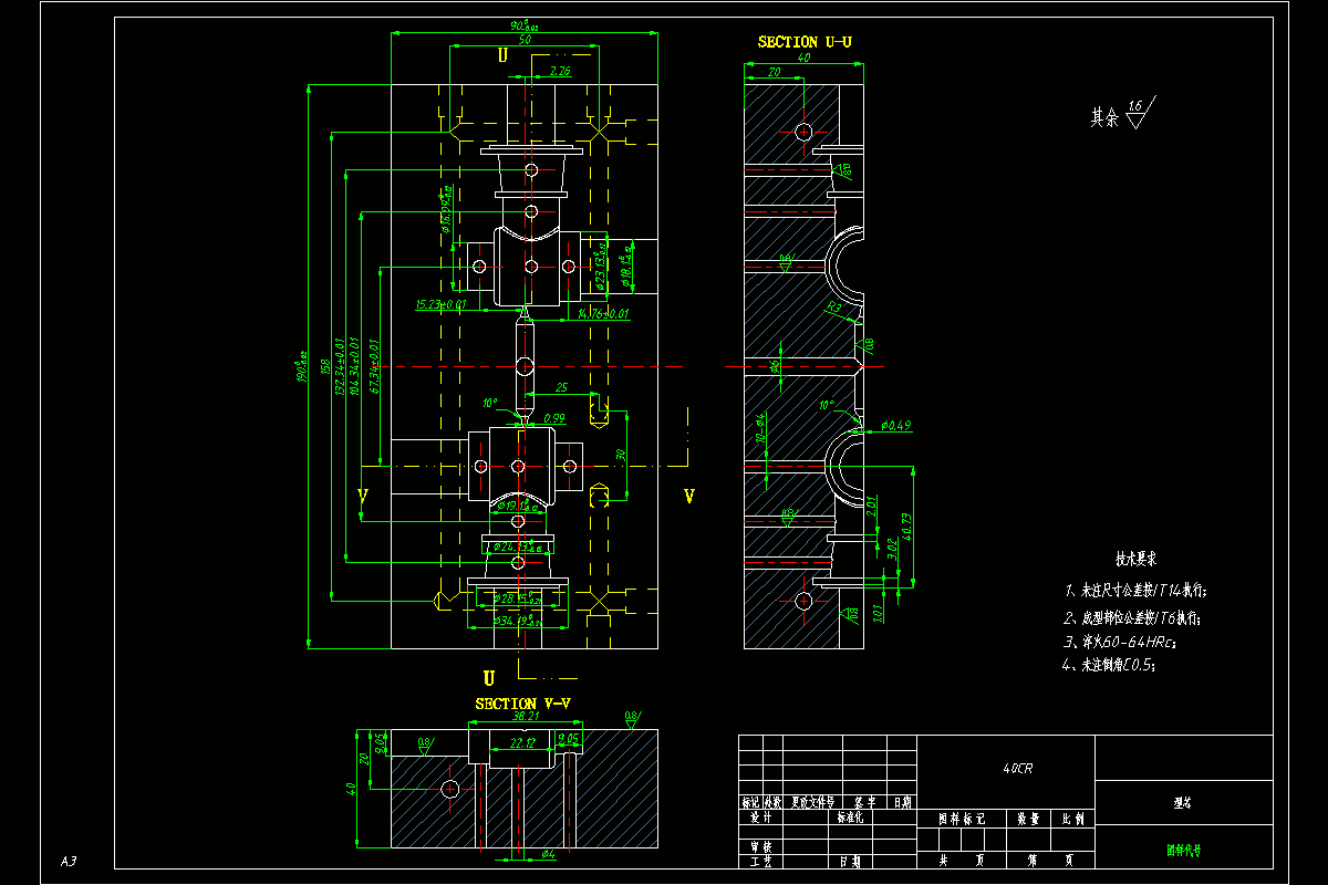
本次设计的题目是管座注塑模具设计。首先对所要设计的产品进行工艺的分析与计算,该塑件采用ABS为材料,然后在分析计算的基础上确定成型工艺方案,为一模两腔,推杆推出,侧浇口,单分型面,对注塑模具的主要零部件尤其是成型零部件的尺寸进行设计与计算。对注塑产品提出了基本的设计原则;详细介绍了塑件成型工艺设计,注射机的选择,浇注系统的的设计,成型零件的结构设计,脱模推出机构的设计,冷却系统的设计的过程。并对标准模架的选择也作了相应的介绍。通过本次设计,使我掌握了注塑模具设计的全过程,同时也提高了运用CAD绘制复杂装配图的能力。

关键词:管座,注塑模具,一模两腔,侧浇口,注射机,浇注系统

目录

摘要I

Abstract II

第一章绪论- 1-

第二章塑件工艺性分析- 2-

2.1塑件原材料的分析- 3-

2.2主要技术指标- 4-

2.3 ABS的注射工艺参数- 4-

2.4塑件成型方式的选择- 4-

2.5塑件结构和尺寸精度、表面质量分析- 5-

2.6计算塑件的体积和质量- 5-

第三章确定成型方案及模具类型- 7-

3.1模具类型的确定- 7-

3.2确定模具类型的主要结构- 8-

3.2.1分型面得选择- 8-

3.2.2型腔的排列方式的确定- 9-

3.2.3浇注系统的设计- 10-

3.3分流道的设计- 11-

3.4浇口的设计- 12-

3.5冷料穴和拉料杆的设计- 13-

3.6排气系统的设计- 14-

第四章脱模机构的设计- 15-

4.1脱模机构的设计原则- 15-

4.2按模具中的推出零件分类- 15-

4.3脱模力的计算- 15-

第五章推出机构的设计- 16-

5.1脱模机构的分类- 16-

5.2推出机构具体形式- 16-

第六章冷却装置的设计- 18-

6.1冷却系统的设计原则- 18-

6.2对温度调节系统的要求- 18-

6.3冷却水管直径- 18-

6.4冷却水道的结构- 18-

第七章成型零件的设计- 20-

7.1成型零件的结构设计- 20-

7.2成型零件的工作尺寸计算- 20-

第八章抽芯的设计- 23-

8.1抽芯距的确定与抽拔力的计算- 23-

8.2斜导柱分型抽芯机构的设计- 23-

第九章注射机的确定和校核- 25-

9.1注射机的校核- 25-

9.2注射量的校核- 25-

9.3塑件在分型面上的投影面积与锁模力的校核- 26-

9.4模具开模行程校核- 27-

总结- 28-

参考文献- 29-

温馨提示:

1、题目前面的备注【字母数字编号】为本站整理分类的编号,与课题内容无关,请选题时忽视;

2、若题目上备注三维,则表示文件里包含三维源文件,由于三维组成零件数量较多,为保证预览截图的简洁性,本站将三维文件夹进行了打包。三维及CAD预览截图,均为本站电脑打开软件进行截图的,保证能够打开,下载原件超高清,下载后解压即可;

3、本站所有资源如无特殊说明,都需要本地电脑安装Office2007。图纸软件为AutoCAD,PROE,UG,SolidWorks,CATIA等;

4、本站所有图文资料仅供用户学习参考,不作为任何商用或其他用途;
5、本站不保证下载资源的准确性、安全性和完整性, 不包修改,不支持退换,同时也不承担用户因使用这些下载资源对自己和他人造成任何形式的伤害或损失;

6、 下载文件中如有侵权或不适当内容,请与我们联系,我们立即纠正。


线