欢迎来到龙图网在线图文分享平台-CAD图纸,设计说明书,工业设计3D模型,三维软件下载!   客服QQ:2363701252
热搜:

工艺夹具 模具设计 数控编程 土木工程 3D模型

JJ1988-某型号空调百叶注塑模具设计 下载积分:100 资料编号: JJ1988

1.打开支付宝或者微信扫描二维码。
2.填写金额:100 
3.添加备注,填写资料编号:
资料编号: JJ1988
4.支付成功后,请发资料编号到邮箱:jxsj168@qq.com
会有专人在15分钟内把资料发到您邮箱
备注:如果付款忘记填写资料编号,则发邮件时附带您的交易明细截图即可。
请耐心等待,如超过30分钟还没收到,请联系客服QQ:2363701252
点击分享:

作品描述

作品包括:

Word版说明书1份,共31页,约10000字

任务书一份

开题报告一份

外文翻译一份

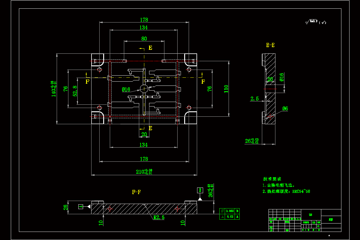
CAD版本图纸,共11张

image.png

image.png

摘要

模具技术是一项非常关键的产业,为国家经济发展做出巨大的贡献,并且在国际上,模具处于工业当中领先地位,受到的重视度非常高,近些年来模具工艺不断趋于成熟,且国家对于模具的研发以及设计都比较重视。由于模具覆盖的产业比较广泛,产值也非常高,特别是在重工业以及汽车制造,制造业跟医疗等行业,各类产品的制造都离不开模具的支持,尤其是人们生活周边各种产品都是模具产品,通过数据显示,目前全球一半以上产品都是需要模具加工出来,而且模具加工产品可以实现大批量加工,因此在经济上有比较大的优势,因此市场越来越好。

本次设计的空调百叶塑料模具,这种空调百叶属于较为常见的塑件,选用经济性和性能比较好的PA66材料,设计需要对产品做出分析,选取产品的分型面,并且对型腔的数目做出选取,并且通过计算选定满足要求的注射机设备,对成型零件做出尺寸计算以及模具图纸绘制要求。

关键词:注塑模具;工艺分析;空调百叶

目录

摘要1

关键词1

Abstract 2

第一章绪论5

1.1课题的背景和意义5

1.2模具国内外的发展现状6

第二章成型工艺分析8

2.1塑件的基本要求8

2.2塑件结构和形状分析8

2.3塑件材料的选取9

2.4 PA66成型工艺性能9

第三章模具结构确定10

3.1分型面的选取10

3.2确定型腔数目以及布置10

3.2.1型腔数目选定10

3.2.2型腔的排布形式11

3.2.3初定模具结构方案11

3.3注射机型号的选定12

3.3.1注射量的计算12

3.3. 2凝料体积计算12

3.3. 3所需锁模力计算13

3.3. 4注射机型号选取14

3.4注射机参数校核15

3.4.1最大注射量的校核15

3.4.2注射压力的校核15

3.4.3锁模力的校核15

3.5浇注系统的设计16

3.5.1主流道的设计16

3.5.2分流道的设计17

3.5.3浇口的选取17

3.6成型零件的设计18

3.6.1型腔结构的设计18

3.6.2型芯结构的设计18

3.6.3成型材料的选取19

3.6.4成型零件工作尺寸计算19

第四章推出结构与导向机构设计23

4.1推出机构的确定23

4.2导向定位机构的选取24

4.3排气系统的设计24

第五章温度调节系统的设计25

5.1冷却系统选取原则25

5.2冷却系统的排布25

第六章模架选取与模板校核27

6.1模架的选取27

6.2模架各尺寸校核28

结论29

参考文献30

致谢31

温馨提示:

1、题目前面的备注【字母数字编号】为本站整理分类的编号,与课题内容无关,请选题时忽视;

2、若题目上备注三维,则表示文件里包含三维源文件,由于三维组成零件数量较多,为保证预览截图的简洁性,本站将三维文件夹进行了打包。三维及CAD预览截图,均为本站电脑打开软件进行截图的,保证能够打开,下载原件超高清,下载后解压即可;

3、本站所有资源如无特殊说明,都需要本地电脑安装Office2007。图纸软件为AutoCAD,PROE,UG,SolidWorks,CATIA等;

4、本站所有图文资料仅供用户学习参考,不作为任何商用或其他用途;
5、本站不保证下载资源的准确性、安全性和完整性, 不包修改,不支持退换,同时也不承担用户因使用这些下载资源对自己和他人造成任何形式的伤害或损失;

6、 下载文件中如有侵权或不适当内容,请与我们联系,我们立即纠正。


线