

作品包括:
Word版说明书1份,共52页,约20000字
外文翻译一份
CAD版本图纸,共9张

摘要
随着社会经济的发展,城市交通问题越来越引起人们的关注。人、车、路三者关系的协调,已成为交通管理部门需要解决的重要问题之一。城市交通控制系统是用于城市交通数据监测、交通信号灯控制与交通疏导的计算机综合管理系统,它是现代城市交通监控指挥系统中最重要的组成部分。
实现路口交通灯系统的控制方法很多,可以用标准逻辑器件、可编程序控制器PLC、单片机等方案来实现。其中用标准逻辑器件来实现电路在很大程度上要受到逻辑器件如门电路等的影响,调试工作极为不易,而单片机编程复杂不容易掌握,因此,最终我们选择了用可编程的控制器PLC来实现系统功能的设计.
可编程序控制器在工业自动化中的地位极为重要,广泛的应用于各个行业。随着科技的发展,可编程控制器的功能日益完善,加上小型化、价格低、可靠性高,在现代工业中的应用更加突出。城市交通灯控制采用的可编程制器具有可靠性高、维护方便,用法简单、通用性强等特点,本文用三菱FX2N的可编程控制器控制十字路口信号灯来说明可编程控制器硬件、软件的设计。解决好公路交通灯控制问题将是保障交通有序、安全、快捷运行的重要环节。但现在有的交通信号灯控制系统都是单一的固定时序控制,不能够根据实际交通状况进行调节控制。三菱系列的可编程序控制器和传感技术来实现对交通灯的智能信号控制。可用如下方案来控制交通路况:制作传感器探测车辆数量来控制交通灯的时长。具体如下:在入路口的各个方向附近的地下按要求埋设感应线圈,当汽车经过时就会产生涡流损耗,环状绝缘电线的电感开始减少,即可检测出汽车的通过,并将这一信号转换为标准脉冲信号作为可编程控制器的控制输入,并用PLC计数,按一定控制规律自动调节红绿灯的时长。
关键词:PLC(可编程序控制器);三菱FX2N;传感器探测;交通灯
目录
摘要i
Abstract ii
1绪论1
1.1交通灯的发展史1
1.2研究目的和意义2
1.3任务可行性分析3
2可编程控制器的基本知识4
2.1可编程控制器概述4
2.1.1可编程控制器4
2.1.2 PLC的发展趋势5
2.3 PLC的工作原理7
2.3.1 PLC的特点7
2.3.2 PLC的工作原理8
2.3.3 PLC的基本组成9
2.4 PLC的编程语言13
2.4.1梯形图13
2.4.2语句表16
2.4.3顺序功能图16
2.5 PLC的应用范围16
3交通信号灯控制系统18
3.1车辆通过的检测18
3.2用PLC实现智能交通灯控制20
3.3交通灯硬件及外围元器件21
4交通灯程序设计23
4.1交通灯的控制要求23
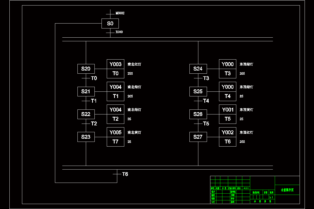
4.2十字路口交通灯模拟控制时序图24
4.3十字路口交通信号灯控制系统的资源分配24
4.4程序重点部分分析26
5 MCGS组态软件控制28
5.1 MCGS组态软件概述28
5.2 PLC交通灯工程及动画设计28
5.2.1画面设计及动画连接28
5.3 PLC交通灯控制系统运行结果36
5.3.1进入运行环境36
5.3.2启动36
6总结37
附录38
参考文献45
致谢47
温馨提示:
1、题目前面的备注【字母数字编号】为本站整理分类的编号,与课题内容无关,请选题时忽视;
2、若题目上备注三维,则表示文件里包含三维源文件,由于三维组成零件数量较多,为保证预览截图的简洁性,本站将三维文件夹进行了打包。三维及CAD预览截图,均为本站电脑打开软件进行截图的,保证能够打开,下载原件超高清,下载后解压即可;
3、本站所有资源如无特殊说明,都需要本地电脑安装Office2007。图纸软件为AutoCAD,PROE,UG,SolidWorks,CATIA等;
4、本站所有图文资料仅供用户学习参考,不作为任何商用或其他用途;
5、本站不保证下载资源的准确性、安全性和完整性, 不包修改,不支持退换,同时也不承担用户因使用这些下载资源对自己和他人造成任何形式的伤害或损失;
6、 下载文件中如有侵权或不适当内容,请与我们联系,我们立即纠正。