欢迎来到龙图网在线图文分享平台-CAD图纸,设计说明书,工业设计3D模型,三维软件下载!   客服QQ:2363701252
热搜:

工艺夹具 模具设计 数控编程 土木工程 3D模型

JJ2444-数控车床床身加工工艺及钻5-M10螺纹孔夹具设计[含零件三维图] 下载积分:150 资料编号: JJ2444

1.打开支付宝或者微信扫描二维码。
2.填写金额:150 
3.添加备注,填写资料编号:
资料编号: JJ2444
4.支付成功后,请发资料编号到邮箱:jxsj168@qq.com
会有专人在15分钟内把资料发到您邮箱
备注:如果付款忘记填写资料编号,则发邮件时附带您的交易明细截图即可。
请耐心等待,如超过30分钟还没收到,请联系客服QQ:2363701252
点击分享:

作品描述

作品包括:

Word版说明书1份,共36页,约13000字

工序卡7张

工艺过程卡1张

CAD版本图纸,共7张

三维零件图1张

image.png

摘要

机床夹具设计是现代机械零件制造和加工过程中,不能缺少的组成部分。机床夹具依据其类型不同分成不同种类,以适应不同复杂程度的零件和不同的加工工序和工步等。所以,对其进行研究有意义。

本次研究的对象是数控车床上重要零件—床身。研究的数控车床在加工车间使用广泛,主要作用有放置主轴箱、导轨等重要的零部件,为机床的正常工作提供保障。设计内容包含工艺设计和夹具设计。

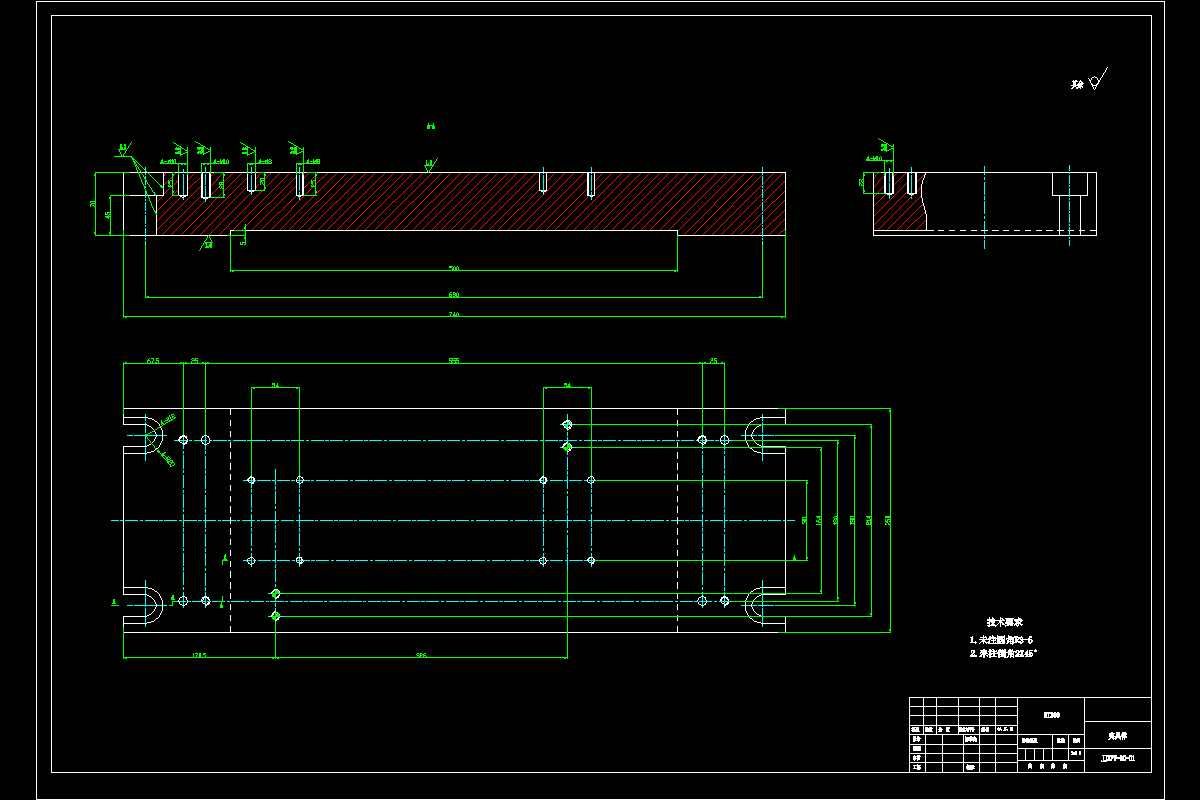
在对零件图解读后,确定零件生产类型,编写工艺路线,确定主轴转速、切削量等,填写工序卡。完成零件图、毛坯图绘制。经过分析决定设计钻5-M10螺纹孔钻床专用夹具,确定定位、夹紧方案;选择定位、夹紧元件;设计夹具体等。

关键词:数控车床、床身、工艺、5-M10螺纹孔、钻床

目录

摘要I

ABSTRACT II

第1章绪论1

1.1机床夹具的概述1

1.2机床夹具的分类1

1.3夹具设计的特点和基本要求2

1.3.1夹具设计的特点2

1.3.2夹具设计的基本要求2

1.4机床夹具在机械加工中的作用3

1.5机床夹具的发展趋势3

第2章零件的工艺性分析5

2.1零件的结构工艺性分析概述5

2.2零件的组成表面、技术要求及形位公差分析5

2.2.1零件的组成表面分析5

2.2.2零件的技术要求分析5

2.2.3零件的形位公差分析6

2.3零件的作用6

2.4零件材料的确定6

2.5确定零件的生产类型7

2.6确定零件的毛坯类型7

第3章拟定零件工艺路线9

3.1选择定位基准9

3.2确定各表面的加工方案9

3.3工艺路线的拟定10

3.4确定机床、夹具、刀具及量具11

3.5确定零件加工余量11

3.6计算切削用量及时间定额13

第4章专用夹具的设计25

4.1选择定位方案和定位元件25

4.1.1选择定位方案25

4.1.2选择定位元件25

4.2选择夹紧方案和夹紧元件26

4.2.1选择夹紧方案27

4.2.2选择夹紧元件27

4.3夹具体的设计27

4.4选择导向装置28

4.5计算钻削力29

4.6计算夹紧力29

4.7分析定位误差30

结论31

致谢32

参考文献33

温馨提示:

1、题目前面的备注【字母数字编号】为本站整理分类的编号,与课题内容无关,请选题时忽视;

2、若题目上备注三维,则表示文件里包含三维源文件,由于三维组成零件数量较多,为保证预览截图的简洁性,本站将三维文件夹进行了打包。三维及CAD预览截图,均为本站电脑打开软件进行截图的,保证能够打开,下载原件超高清,下载后解压即可;

3、本站所有资源如无特殊说明,都需要本地电脑安装Office2007。图纸软件为AutoCAD,PROE,UG,SolidWorks,CATIA等;

4、本站所有图文资料仅供用户学习参考,不作为任何商用或其他用途;
5、本站不保证下载资源的准确性、安全性和完整性, 不包修改,不支持退换,同时也不承担用户因使用这些下载资源对自己和他人造成任何形式的伤害或损失;

6、 下载文件中如有侵权或不适当内容,请与我们联系,我们立即纠正。


线