

作品包括:
Word版说明书1份,共38页,约12000字
工序卡10张
工艺过程卡1张
CAD版本图纸,共8张

摘要
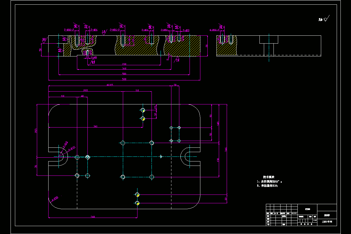
本次夹具研究的对象是轴支架。轴支架为轴提供支承保证回转运动。为轴能够传递动力还有相应的运动提供保障。轴支架其材料选择HT150,该材料机械强度是很好的,并且减震性也相当不错。可以用来加工生产应力中等的零部件。
本设计主要内容包括轴支架的加工工艺规程以及镗Ф55H7孔镗床专用夹具设计。在设计过程中完成了零件图、毛坯图、夹具装配图和夹具体还有所有非标零件图的绘制及说明书的编写。针对镗Ф55H7孔的加工设计了一套镗床专用夹具,在完成零件结构分析基础上,确定采用T618卧式镗床对其进行加工。利用定位块、定位销和工件插销满足定位要求,有通过夹紧装置保证加工过程中工件位置不发生变化。
关键词:轴支架、加工工艺,Ф55H7孔、T618、卧式镗床
目录
摘要I
Abstract II
1引言1
2分析零件结构、确定制造形式及生产类型3
2.1分析轴支架的作用3
2.2分析轴支架的结构3
2.2.1分析轴支架组成表面3
2.2.2分析轴支架加工表面加工要求4
2.2.3分析轴支架形位公差4
2.3选择轴支架的材料4
2.4确定制造形式5
2.5确定生产类型5
3轴支架加工工艺规程的设计7
3.1零件加工基准的选择7
3.1.1粗基准的选择7
3.1.1精基准的选择7
3.2确定加工工艺路线7
3.2.1加工工艺路线方案1和方案2 7
3.2.2确定加工工艺路线8
3.3选择加工机床、装夹夹具、切削刀具及测量量具8
3.4零件加工余量确定9
3.5零件切削用量、加工工时的确定11
4镗Ф55H7孔专用夹具设计28
4.1设计定位方案28
4.2确定定位元件28
4.3设计夹紧方案28
4.4确定夹紧元件29
4.5设计夹具体29
4.6导向装置的选择30
4.7计算镗削力30
4.8计算夹紧力31
4.9分析定位误差32
5结论33
6致谢34
7参考文献35
温馨提示:
1、题目前面的备注【字母数字编号】为本站整理分类的编号,与课题内容无关,请选题时忽视;
2、若题目上备注三维,则表示文件里包含三维源文件,由于三维组成零件数量较多,为保证预览截图的简洁性,本站将三维文件夹进行了打包。三维及CAD预览截图,均为本站电脑打开软件进行截图的,保证能够打开,下载原件超高清,下载后解压即可;
3、本站所有资源如无特殊说明,都需要本地电脑安装Office2007。图纸软件为AutoCAD,PROE,UG,SolidWorks,CATIA等;
4、本站所有图文资料仅供用户学习参考,不作为任何商用或其他用途;
5、本站不保证下载资源的准确性、安全性和完整性, 不包修改,不支持退换,同时也不承担用户因使用这些下载资源对自己和他人造成任何形式的伤害或损失;
6、 下载文件中如有侵权或不适当内容,请与我们联系,我们立即纠正。