欢迎来到龙图网在线图文分享平台-CAD图纸,设计说明书,工业设计3D模型,三维软件下载!   客服QQ:2363701252
热搜:

工艺夹具 模具设计 数控编程 土木工程 3D模型

JJ2614-倒档拨叉的加工工艺及铣开档23平面夹具设计 下载积分:100 资料编号: JJ2614

1.打开支付宝或者微信扫描二维码。
2.填写金额:100 
3.添加备注,填写资料编号:
资料编号: JJ2614
4.支付成功后,请发资料编号到邮箱:jxsj168@qq.com
会有专人在15分钟内把资料发到您邮箱
备注:如果付款忘记填写资料编号,则发邮件时附带您的交易明细截图即可。
请耐心等待,如超过30分钟还没收到,请联系客服QQ:2363701252
点击分享:

作品描述

作品包括:

Word版说明书1份,共28页,约11000字

工序卡7张

工艺过程卡1张

CAD版本图纸,共7张

image.png

摘要

制造业飞速发展的当下,复杂的零件以及不规则的零件是越来越多,零件的尺寸要求和公差要求也是越来越高。之前的通用夹具已经不能够满足当下制造业的发展了,为了加工这些不规则的零件,专用夹具的作用显得相当的重要。

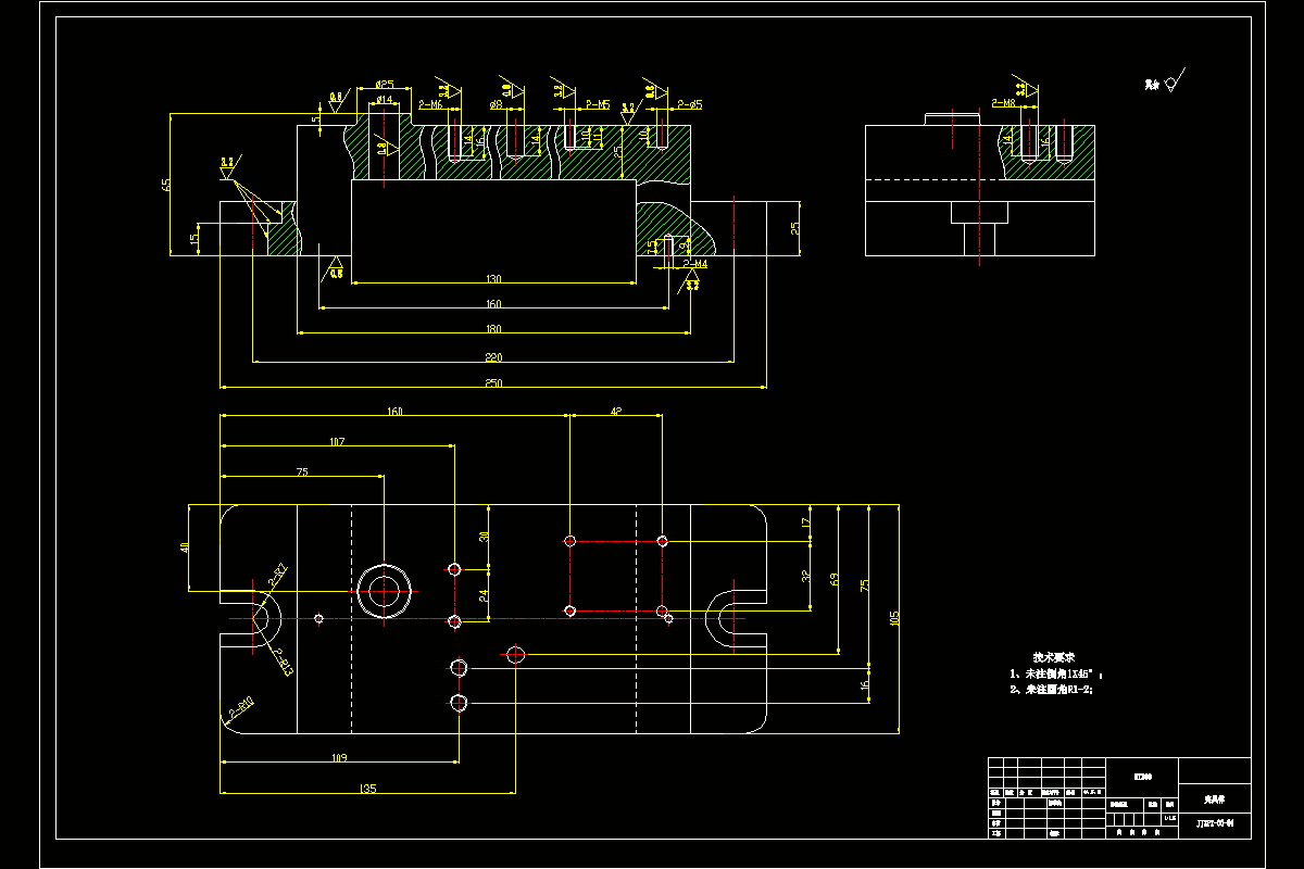
本文设计的倒挡拨叉零件,就是一个构造复杂,形状不规则的零件。倒挡拨叉是典型的叉架类零件,跟操作装置零件一起使用,将滑动齿轮拨动,这样输出轴就可以实现倒转。配合面Ф14H9、14H13槽还有下拨叉对精度都是有需求的。本次设计的主要任务是完成工件加工工艺规程的设计以及设计一套铣开档23平面的铣床专用夹具。

加工工艺的设计,其主要的内容包括:零件结构的分析,加工面加工精度的分析,生产类型工件制造方式的确定等等。专用夹具的设计主要的设计内容包括:设计定位、夹紧方案,选择定位、夹紧元件;选择对刀块;设计夹具体等等。本次设计的专用夹具使用在X52K立式铣床上。

关键词:专用夹具、倒档拨叉、加工工艺、铣开档23平面、X52K

目录

摘要I

Abstract II

1绪论1

1.1本课题研究的目的及意义1

1.2机械加工工艺规程的概述1

1.3机械加工艺规程的作用1

1.4工艺规程制订的原则2

1.5制订工艺规程的步骤2

2分析零件的作用、材料以及加工要求4

2.1分析零件的作用4

2.2分析零件的材料4

2.3分析零件的组成表面5

2.4分析零件的加工表面5

2.5分析零件的形位公差5

3设计零件的加工工艺规程6

3.1选择零件的生产类型6

3.2选择零件的制造形式6

3.3选择零件的加工基准7

3.4设计零件的工艺路线8

3.5选择零件的加工工艺装备9

3.6确定零件的机加工余量10

3.7确定零件的切削用量、计算加工工时11

4设计铣开档23平面的专用夹具19

4.1设计定位方案,确定定位元件19

4.1.1设计定位方案19

4.1.2确定定位元件19

4.2设计夹紧方案,确定夹紧元件20

4.2.1设计夹紧方案20

4.2.2确定夹紧元件20

4.3设计夹具体20

4.4选择对刀装置—对刀块21

4.5计算铣削力21

4.6计算夹紧力21

4.7分析定位误差21

结论23

致谢24

参考文献25

温馨提示:

1、题目前面的备注【字母数字编号】为本站整理分类的编号,与课题内容无关,请选题时忽视;

2、若题目上备注三维,则表示文件里包含三维源文件,由于三维组成零件数量较多,为保证预览截图的简洁性,本站将三维文件夹进行了打包。三维及CAD预览截图,均为本站电脑打开软件进行截图的,保证能够打开,下载原件超高清,下载后解压即可;

3、本站所有资源如无特殊说明,都需要本地电脑安装Office2007。图纸软件为AutoCAD,PROE,UG,SolidWorks,CATIA等;

4、本站所有图文资料仅供用户学习参考,不作为任何商用或其他用途;
5、本站不保证下载资源的准确性、安全性和完整性, 不包修改,不支持退换,同时也不承担用户因使用这些下载资源对自己和他人造成任何形式的伤害或损失;

6、 下载文件中如有侵权或不适当内容,请与我们联系,我们立即纠正。


线