欢迎来到龙图网在线图文分享平台-CAD图纸,设计说明书,工业设计3D模型,三维软件下载!   客服QQ:2363701252
热搜:

工艺夹具 模具设计 数控编程 土木工程 3D模型

JJ2681-减速箱体加工工艺及铣下端面夹具设计 下载积分:150 资料编号: JJ2681

1.打开支付宝或者微信扫描二维码。
2.填写金额:150 
3.添加备注,填写资料编号:
资料编号: JJ2681
4.支付成功后,请发资料编号到邮箱:jxsj168@qq.com
会有专人在15分钟内把资料发到您邮箱
备注:如果付款忘记填写资料编号,则发邮件时附带您的交易明细截图即可。
请耐心等待,如超过30分钟还没收到,请联系客服QQ:2363701252
点击分享:

作品描述

作品包括:

Word版说明书1份,共42页,约13000字

工序卡13张

工艺过程卡1张

CAD版本图纸,共6张

image.png

摘要

机床夹具设计是现代机械零件制造和加工过程中,不能缺少的组成部分。机床夹具依据其类型不同分成不同种类,以适应不同复杂程度的零件和不同的加工工序和工步等。所以,对其进行研究有意义。

本次设计的题目是机床变速箱机械加工工艺规程及夹具设计,研究的机床变速箱为安装齿轮、轴等零部件提供保障。为机床实现不同转速发挥作用。设计内容包含工艺设计和夹具设计。

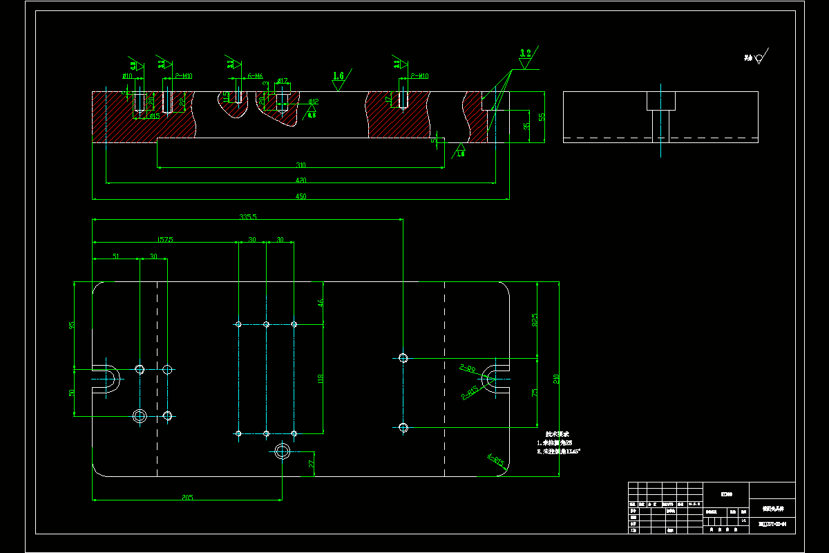
在对零件图解读后,确定零件生产类型,编写工艺路线,确定主轴转速、切削量等,填写工序卡。完成零件图、毛坯图绘制。经过分析决定设计铣下端面铣床专用夹具,确定定位、夹紧方案;选择定位、夹紧元件;设计夹具体等。

关键词:机床变速箱、工艺规程、夹具、铣下端面

目录

摘要I

ABSTRACT III

第1章绪论1

1.1机床夹具的概述1

1.2机床夹具的分类1

1.3夹具设计的特点和基本要求2

1.3.1夹具设计的特点2

1.3.2夹具设计的基本要求2

1.4机床夹具在机械加工中的作用2

第2章零件的工艺性分析3

2.1零件的结构工艺性分析概述3

2.2零件的组成表面、技术要求及形位公差分析3

2.2.1零件的组成表面分析3

2.2.2零件的技术要求分析3

2.2.3零件的形位公差分析4

2.3零件的作用4

2.4零件材料的确定4

2.5确定零件的生产类型5

2.6确定零件的毛坯类型5

第3章拟定零件工艺路线7

3.1选择定位基准7

3.2确定各表面的加工方案7

3.3工艺路线的选择、比较与确定8

3.4确定机床、夹具、刀具及量具9

3.5确定零件加工余量10

3.6计算切削用量及时间定额13

第4章铣面专用夹具的设计33

4.1选择定位方案和定位元件33

4.1.1选择定位方案33

4.1.2选择定位元件33

4.2选择夹紧方案和夹紧元件34

4.2.1选择夹紧方案34

4.2.2选择夹紧元件34

4.3夹具体的设计34

4.4选择导向装置—对刀块35

4.5计算铣削力35

4.6计算夹紧力35

4.7分析定位误差36

结论37

致谢38

参考文献39

温馨提示:

1、题目前面的备注【字母数字编号】为本站整理分类的编号,与课题内容无关,请选题时忽视;

2、若题目上备注三维,则表示文件里包含三维源文件,由于三维组成零件数量较多,为保证预览截图的简洁性,本站将三维文件夹进行了打包。三维及CAD预览截图,均为本站电脑打开软件进行截图的,保证能够打开,下载原件超高清,下载后解压即可;

3、本站所有资源如无特殊说明,都需要本地电脑安装Office2007。图纸软件为AutoCAD,PROE,UG,SolidWorks,CATIA等;

4、本站所有图文资料仅供用户学习参考,不作为任何商用或其他用途;
5、本站不保证下载资源的准确性、安全性和完整性, 不包修改,不支持退换,同时也不承担用户因使用这些下载资源对自己和他人造成任何形式的伤害或损失;

6、 下载文件中如有侵权或不适当内容,请与我们联系,我们立即纠正。


线