

作品包括:
Word版说明书1份,共35页,约11000字
工序卡14张
工艺过程卡1张
CAD版本图纸,共4张

摘要
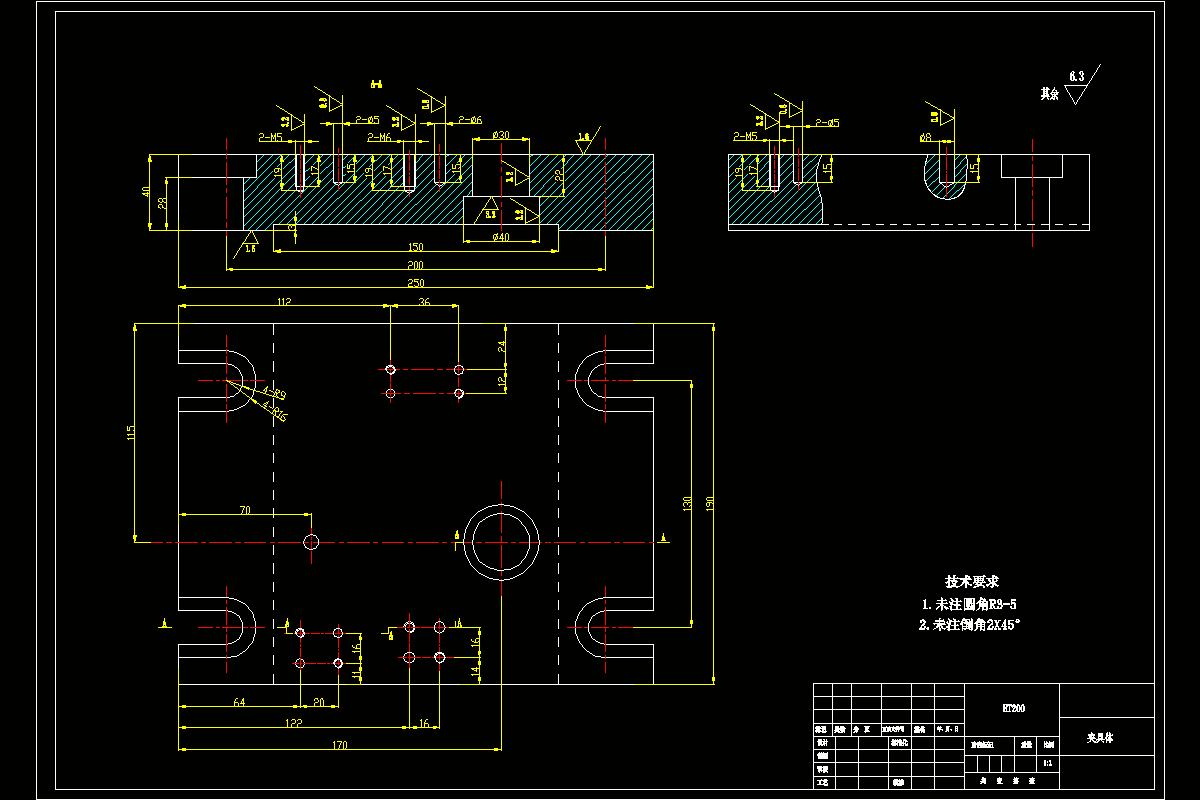
设计的主要内容有:外壳-前刹车调整臂的机械加工工艺设计;铣削12左端面夹具设计。考虑到零件在机床运行过程中所受冲击不大,零件结构又比较简单,故选择铸造。调整臂外壳的主要加工面是调整臂的几个端面、方槽和孔,由于面的加工精度要比孔的加工精度容易保证。因此,采用先面后孔的原则,以保证加工精度。为了加工精确快速,特别设计了铣削12左端面夹具设计,对于加工零件采用两面一销进行定位,其他零件的定位采用了一面两销定位。由于该零件的尺寸不大,所需的夹紧力不大。因此,夹紧方式都采用手动夹紧,它的夹紧方式简单,机构的设计更为方便,满足夹紧要求。
关键词:外壳、前刹车调整臂、铣削、12左端面,夹具
目录
摘要I
Abstract II
第一章绪论1
1.1夹具夹紧装置及夹具体的基本要求1
1.2机床夹具功用1
1.3机床夹具在机械加工中的作用2
1.4机床夹具的设计要求2
第二章零件的分析4
2.1零件的作用4
2.2零件的组成表面、加工要求、技术要求分析4
2.2.1零件的组成表面4
2.2.2零件的加工要求5
2.2.3零件的技术要求5
第三章零件的工艺规程设计6
3.1确定毛坯的制造形式6
3.2基准的选择与确定6
3.3加工工艺路线的确定7
3.3.1工艺路线方案一7
3.3.2工艺路线方案二7
3.3.3工艺路线的确定8
3.4加工机床及加工装备的选择8
3.5确定加工余量10
4.2计算切削用量及基本时间11
第四章铣削12左端面夹具设计26
4.1定位方案及定位元件的确定与选择26
4.1.1定位方案的确定26
4.1.2定位元件的选择26
4.2夹紧方案及装置的确定与选择27
4.2.1夹紧方案的确定27
4.2.2夹紧元件的选择27
4.3夹具体的确定27
4.4导向装置的确定28
4.5计算铣削力28
4.6计算夹紧力29
4.7定位误差的分析29
结论30
致谢31
参考文献32
温馨提示:
1、题目前面的备注【字母数字编号】为本站整理分类的编号,与课题内容无关,请选题时忽视;
2、若题目上备注三维,则表示文件里包含三维源文件,由于三维组成零件数量较多,为保证预览截图的简洁性,本站将三维文件夹进行了打包。三维及CAD预览截图,均为本站电脑打开软件进行截图的,保证能够打开,下载原件超高清,下载后解压即可;
3、本站所有资源如无特殊说明,都需要本地电脑安装Office2007。图纸软件为AutoCAD,PROE,UG,SolidWorks,CATIA等;
4、本站所有图文资料仅供用户学习参考,不作为任何商用或其他用途;
5、本站不保证下载资源的准确性、安全性和完整性, 不包修改,不支持退换,同时也不承担用户因使用这些下载资源对自己和他人造成任何形式的伤害或损失;
6、 下载文件中如有侵权或不适当内容,请与我们联系,我们立即纠正。