

作品包括:
Word版说明书1份,共40页,约12000字
工序卡12张
工艺过程卡1张
CAD版本图纸,共4张
Catia三维图一套
Proe三维图一套

摘要
论述KST1002换挡拨叉的加工工艺及铣10C11左端面夹具设计,研究零件机械加工工艺规程的设计问题,介绍工艺规程的组成、制定路线等。说明零件的机械加工工艺结构性,结合生产主要从零件分析、毛坯的选择、工艺路线的拟定、工序内容的确定等几个方面详细的讲述了换挡拨叉零件工艺过程设计以及工艺编制中应注意的问题,以及如何才能达到最理想的表面质量和经济效益。
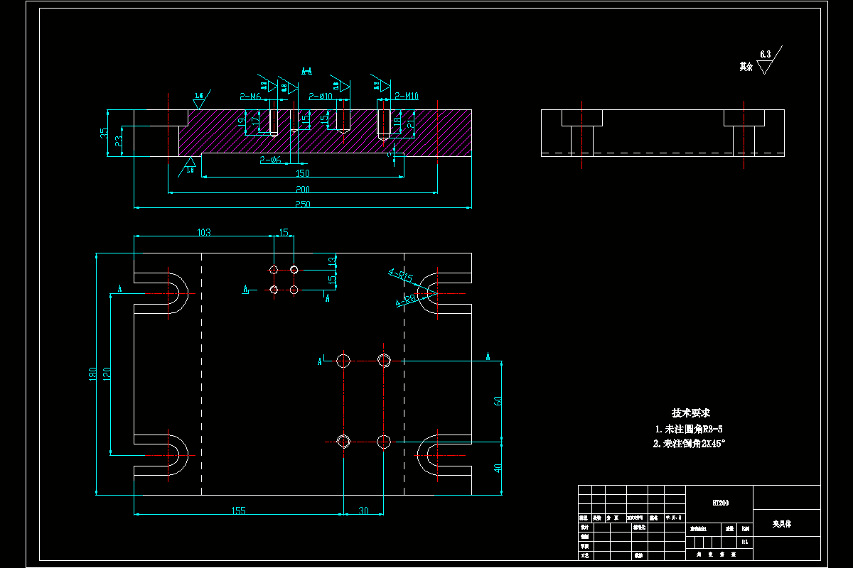
针对设计给定的题目,设计铣10C11左端面专用铣床夹具。夹具设计包括:设计出对零件进行定位,夹紧,还有引导的各个元件。在这里尤其要注意的是,夹具在定位零部件的时候,会产生误差,这个误差要在的合理控制范围以内,要充分了解夹具的优缺点,以便改进。
关键词:KST1002、换挡拨叉、加工工艺、10C11左端面、铣床夹具
目录
摘要I
Abstract II
1引言1
2零件分析及毛坯的选择2
2.1零件的作用2
2.2零件分析3
2.2.1组成表面3
2.2.2技术要求3
2.2.3形位公差3
2.3毛坯的选择4
2.3.1选择毛坯的原则4
2.3.2零件毛坯的选择及制造方法4
3拟定工艺路线6
3.1定位基准的选择6
3.1.1粗基准的选择6
3.1.2精基准的选择6
3.2加工工艺路线选择、比较与确定7
3.3加工设备、夹具、刀具及量具的选择8
4加工余量、切削用量及切削时间的确定11
4.1加工余量的确定11
4.2切削用量及切削时间的确定13
5铣10C11左端面专用夹具设计30
5.1确定定位方案、定位元件30
5.1.1确定定位方案30
5.1.2确定定位元件30
5.2确定夹紧方案、夹紧元件31
5.2.1确定夹紧方案31
5.2.2确定夹紧元件31
5.3确定夹具体31
5.4确定导向装置32
5.5铣削力计算32
5.6夹紧力的计算33
5.7定位误差分析34
结论35
致谢36
参考文献37
温馨提示:
1、题目前面的备注【字母数字编号】为本站整理分类的编号,与课题内容无关,请选题时忽视;
2、若题目上备注三维,则表示文件里包含三维源文件,由于三维组成零件数量较多,为保证预览截图的简洁性,本站将三维文件夹进行了打包。三维及CAD预览截图,均为本站电脑打开软件进行截图的,保证能够打开,下载原件超高清,下载后解压即可;
3、本站所有资源如无特殊说明,都需要本地电脑安装Office2007。图纸软件为AutoCAD,PROE,UG,SolidWorks,CATIA等;
4、本站所有图文资料仅供用户学习参考,不作为任何商用或其他用途;
5、本站不保证下载资源的准确性、安全性和完整性, 不包修改,不支持退换,同时也不承担用户因使用这些下载资源对自己和他人造成任何形式的伤害或损失;
6、 下载文件中如有侵权或不适当内容,请与我们联系,我们立即纠正。