

作品包括:
Word版说明书1份,共57页,约19000字
开题报告一份
外文翻译一份
CAD版本图纸,共6张

摘 要
机械手是一种典型的机电一体化产品,搬运机械手是机械手研究领域的热点。研究搬运机械手需要结合机械、电子、信息论、人工智能、生物学以及计算机等诸多学科知识,同时其自身的发展也促进了这些学科的发展。
本文对一种使用在搬运机械手的结构进行设计,并完成总装配图和零件图的绘制。要求对机械手模型进行力学分析,估算各关节所需转矩和功率,完成电机和减速器的选型。其次从电机和减速器的连接和固定出发,设计关节结构,并对机构中的重要连接件进行强度校核。
关键词: 结构设计,机器臂,关节型机械手,结构分析
目录
第1章 绪论 5
1.1 机械手的历史与发展 5
1.1.1 工业机器人简介 5
1.1.2世界机器人的发展 5
1.2 机械手的组成 7
1.3 机械手的分类 8
第2章总体方案设计 9
2.1 机械手工程概述 9
2.2 工业机械手总体设计方案论述 11
2.3 机械手机械传动原理 12
2.4 机械手总体方案设计 12
第3章机械手大臂结构设计 15
3.1 大臂部结构设计的基本要求 15
3.2 大臂部结构设计 16
3.3 大臂电机及减速器选型 16
第4章机械手小臂结构设计 18
4.1 腕部设计 18
4.2 小臂部结构设计 23
4.3小臂电机及减速器选型 23
第5章机械手机身结构设计 24
5.1 步进电机选择 24
5.2 齿轮设计与计算 29
5.3 轴的设计与计算 37
5.4机身结构的设计 45
第6章 控制系统设计 46
6.1 控制系统模式的选择 46
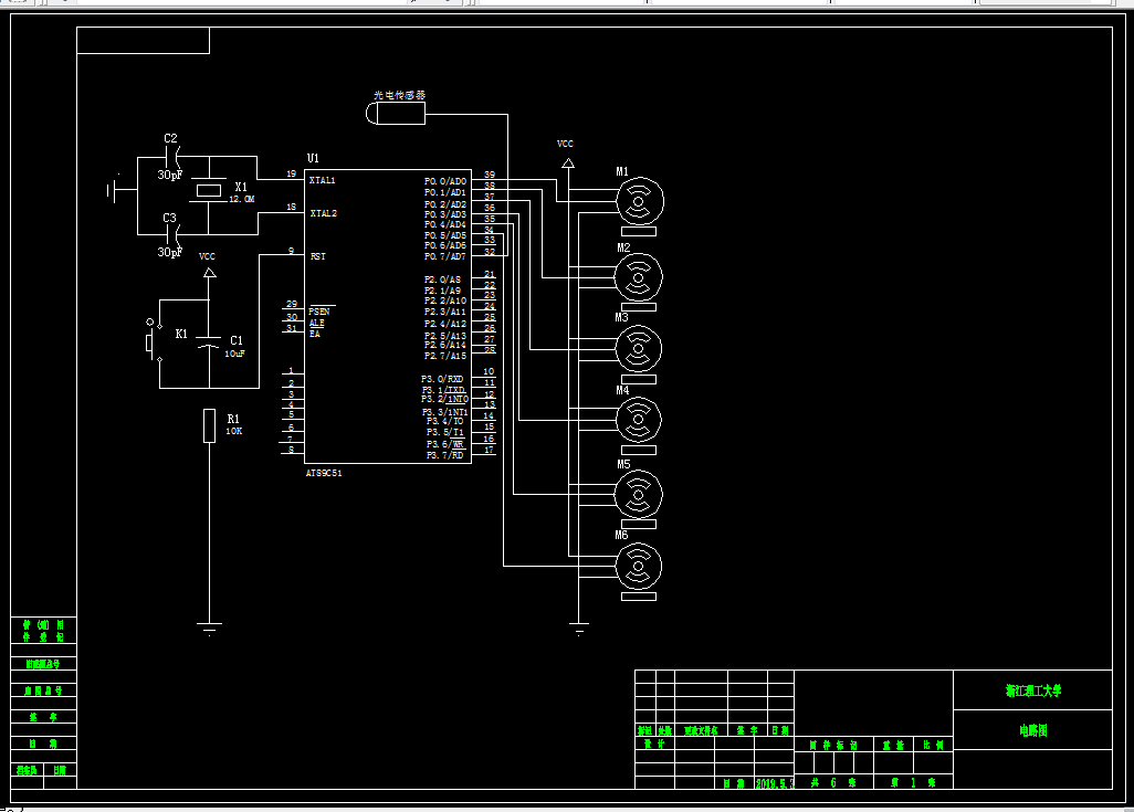
6.2 单片机最小系统设计 47
6.3 步进电机工作原理 49
6.4 步进电机的控制 50
结论与展望 54
参考文献 55
致谢 57
温馨提示:
1、题目前面的备注【字母数字编号】为本站整理分类的编号,与课题内容无关,请选题时忽视;
2、若题目上备注三维,则表示文件里包含三维源文件,由于三维组成零件数量较多,为保证预览截图的简洁性,本站将三维文件夹进行了打包。三维及CAD预览截图,均为本站电脑打开软件进行截图的,保证能够打开,下载原件超高清,下载后解压即可;
3、本站所有资源如无特殊说明,都需要本地电脑安装Office2007。图纸软件为AutoCAD,PROE,UG,SolidWorks,CATIA等;
4、本站所有图文资料仅供用户学习参考,不作为任何商用或其他用途;
5、本站不保证下载资源的准确性、安全性和完整性, 不包修改,不支持退换,同时也不承担用户因使用这些下载资源对自己和他人造成任何形式的伤害或损失;
6、 下载文件中如有侵权或不适当内容,请与我们联系,我们立即纠正。