

作品包括:
Word版说明书1份,共55页,约22000字
任务书一份
CAD版本图纸,共6张

摘 要
立式往复升降机是机械行业,建筑行业中用于喷涂的一种机械设备。传统的喷涂工作通常是由手工操作完成的,通过人工的经验或者视觉来进行喷涂工作。这样的工作量大,并且精度很低,工作效率不高,喷涂往往不均匀,难以达到工作要求。随着科学技术的发展,自动化科学的发展,这种手工操作已经可以用机电产品来代替完成。这种手工操作不适合现代发展的需要。
本设计的任务是设计一台机电产品,来进行喷涂,以更好更快的完成喷涂工作。本设计采用链传动,传动比为1:1,链轮在垂直方向上,上下各置一个。在链轮中间连接一个移动小车,移动小车通过链带动,在立柱上滚动。喷涂喷枪就安装在小车上。通过链传动带动小车上下往复运动,从而实现垂直往复喷漆。链传动由交流变频电机驱动链轮以实现,往复运动的位移、速度、启动、停止采用PLC和变频器进行控制。本设备设有专门的控制面板。
关键词:喷涂机;链传动;UG模拟装配
目 录
摘 要I
AbstractII
第1章 绪 论1
1.1 课题背景1
1.2 设计任务1
1.3 UG软件介绍2
1.3.1 工业设计和风格造型2
1.3.2 产品设计3
1.3.3 仿真、确认和优化3
1.3.4 有序的开发环境3
1.3.5 UG的兄弟软件3
1.3.6 UG的二次开发工具4
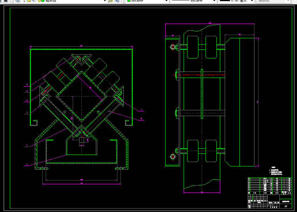
第2章 机械结构设计5
2.1 总体方案设计5
2.1.1 传动类型的选择5
2.1.2 考虑功率消耗6
2.1.3 导柱形状选择6
2.1.4 关于各连接件的联接与配合6
2.2 总体结构设计6
2.2.1 传动小车整体结构设计6
2.2.2 底部设计8
2.2.3 导向柱的安装8
2.2.4 前后壳的配合8
2.3 零件设计9
2.3.1 电机选择和导向柱9
2.3.2 小车结构设计11
2.3.3 螺栓轴设计14
2.3.4 链和链轮的选择15
2.3.5 前后壳设计18
2.3.6 电机箱设计19
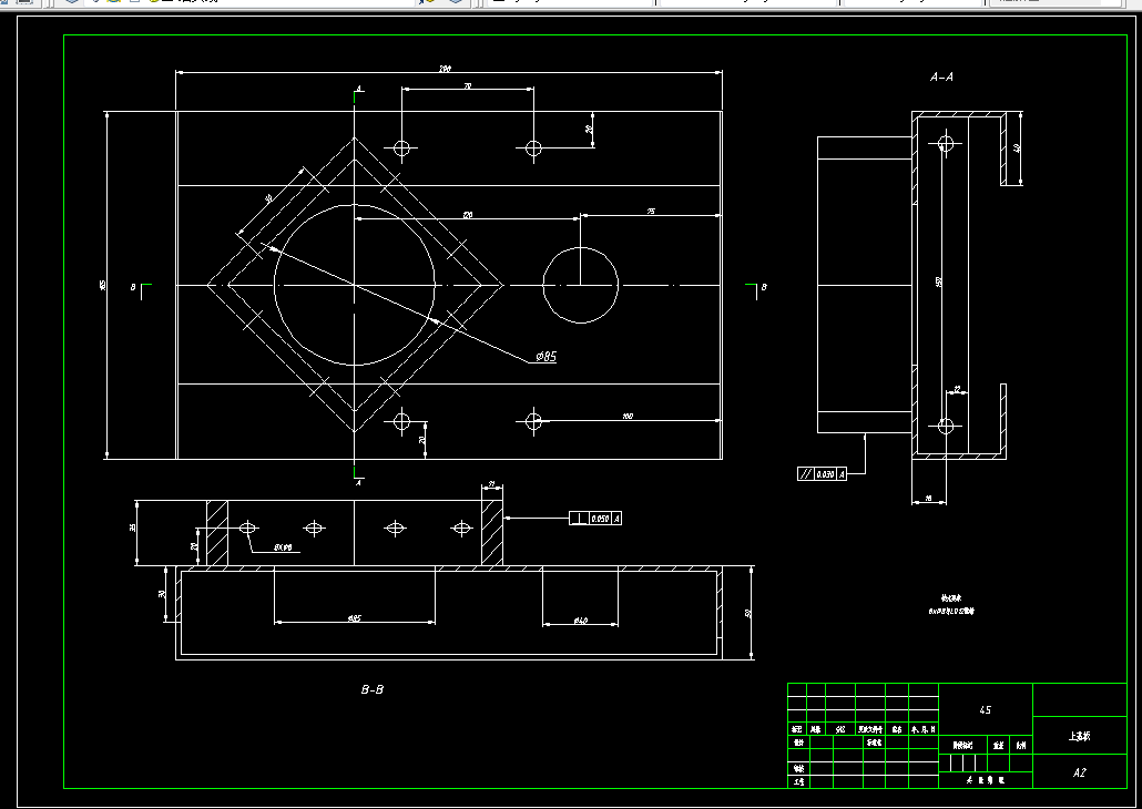
2.3.7 基板、地轮架和底座设计20
2.3.8 上基板和上罩设计22
2.3.9 链轮轴24
第3章 电气控制设计29
3.1 PLC简介29
3.1.1 PLC的概念29
3.1.2 PLC的特点29
3.1.3 S7-200 简介31
3.1.4 本设备对PLC的应用说明31
3.2 变频调速技术简介33
第4章 产品说明书35
4.1 产品简介35
4.2 产品特点35
4.3 安装说明35
4.4 设定和调整37
4.4.1 注意事项37
4.4.2 设定、调整过程37
4.5 操作说明38
4.5.1 注意事项38
4.5.2 操作说明38
结 论40
参考文献41
附 录42
致 谢46
温馨提示:
1、题目前面的备注【字母数字编号】为本站整理分类的编号,与课题内容无关,请选题时忽视;
2、若题目上备注三维,则表示文件里包含三维源文件,由于三维组成零件数量较多,为保证预览截图的简洁性,本站将三维文件夹进行了打包。三维及CAD预览截图,均为本站电脑打开软件进行截图的,保证能够打开,下载原件超高清,下载后解压即可;
3、本站所有资源如无特殊说明,都需要本地电脑安装Office2007。图纸软件为AutoCAD,PROE,UG,SolidWorks,CATIA等;
4、本站所有图文资料仅供用户学习参考,不作为任何商用或其他用途;
5、本站不保证下载资源的准确性、安全性和完整性, 不包修改,不支持退换,同时也不承担用户因使用这些下载资源对自己和他人造成任何形式的伤害或损失;
6、 下载文件中如有侵权或不适当内容,请与我们联系,我们立即纠正。