

作品包括:
Word版说明书1份,共33页,约13000字
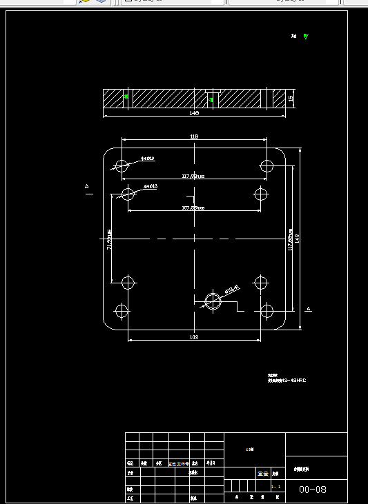
CAD版本图纸,共11张

摘 要
本设计题目为支板冲压工艺及模具设计,体现了冲压零件的设计要求、内容及方向,有一定的设计意义。通过对该零件模具的设计,进一步加强了设计者冲压模设计的基础知识,为设计更复杂的冲压级进模具做好了铺垫和吸取了更深刻的经验。
本设计运用冲压模具成形工艺及模具设计的基础知识,首先分析了支板的材料工艺性能,为选取模具的类型做好了准备;然后讨论了该零件的工艺方案,提出了各种方案的优缺点,进行分析比较后得出了本设计的初步思想,进而分析了零件的特征,确定模具的设计参数、设计要点及卸料装置、推件装置等的选取。
本模具的凸模以装在弹压导板中的导板镶块导向,弹压导板一导柱导向,导向准确,保证凸凹模的精确配合,并且加强了凸模纵向稳定性,避免小凸模产生纵向弯曲。凸模与固定板为间隙配合,凸模装配调整和更换很方便。弹压导板用卸料螺钉与上模连接,加上凸模与固定板知道是间隙配合,因此能消除压力机导向误差对模具的影响,对延长模具寿命有利。冲裁排样采用直对排,一次冲裁获得两个零件,两件的落料工位离开一定距离,以增强凹模的强度,也便于加工和装配。
关键词:级进冲裁模 弹压导板 卸料装置 导向
目 录
1 绪论…………………………………………………………………………1
1.1 国内模具的现状和发展趋势……………………………………………1
1.1.1国内模具的现状…………………………………………………………1
1.1.2国内模具的发展趋势……………………………………………………2
1.2 国外模具的现状和发展趋势……………………………………………3
1.3 冲压件模具设计与制造…………………………………………………5
1.3.1支板模具设计的设计思路………………………………………………7
1.3.2支板模具设计的进度……………………………………………………11
2 支板零件工艺分析…………………………………………………………11
2.1 支板件的工艺性分析……………………………………………………11
2.2 冲裁工艺计算和工艺方案的确定………………………………………12
2.2.1 工艺方案的确定…………………………………………………………12
2.2.2 确定零件的排样方案……………………………………………………13
3 模具的结构设计……………………………………………………………14
3.1 模具工作部分的计算……………………………………………………14
3.1.1 冲裁模具间隙……………………………………………………………14
3.1.2 冲裁模的结构设计………………………………………………………14
3.1.3 冲裁模的送料方式设计…………………………………………………14
3.1.4 冲裁模的定位装置设计…………………………………………………15
3.1.5 冲裁模的导向方式设计…………………………………………………15
3.1.6 冲裁模的卸料方式设计…………………………………………………15
3.2 模具主要零件和主要工作机构的设计与标准化………………………15
3.2.1 模具工作零部件的设计与标准化(尺寸、位置、标准与示意图)…15
一.工作零部件的计算…………………………………………………15
二、标准模架的选用……………………………………………………22
三.卸料装置的设计与标准化…………………………………………23
四.联接件的选用与标准化……………………………………………23
五、支板冲孔落料连续模总装图………………………………………24
六、冲压力与压力中心的计算,初选压力机…………………………24
七、压力机的校核………………………………………………………26
3.2.2 冲裁模的导向方式设计…………………………………………………26
4 结束语…………………………………………………………………………29
致谢 ……………………………………………………………………………30
参考文献……………………………………………………………………
温馨提示:
1、题目前面的备注【字母数字编号】为本站整理分类的编号,与课题内容无关,请选题时忽视;
2、若题目上备注三维,则表示文件里包含三维源文件,由于三维组成零件数量较多,为保证预览截图的简洁性,本站将三维文件夹进行了打包。三维及CAD预览截图,均为本站电脑打开软件进行截图的,保证能够打开,下载原件超高清,下载后解压即可;
3、本站所有资源如无特殊说明,都需要本地电脑安装Office2007。图纸软件为AutoCAD,PROE,UG,SolidWorks,CATIA等;
4、本站所有图文资料仅供用户学习参考,不作为任何商用或其他用途;
5、本站不保证下载资源的准确性、安全性和完整性, 不包修改,不支持退换,同时也不承担用户因使用这些下载资源对自己和他人造成任何形式的伤害或损失;
6、 下载文件中如有侵权或不适当内容,请与我们联系,我们立即纠正。