

作品包括:
Word版说明书1份,共31页,约9000字
CAD版本图纸,共8张

摘要
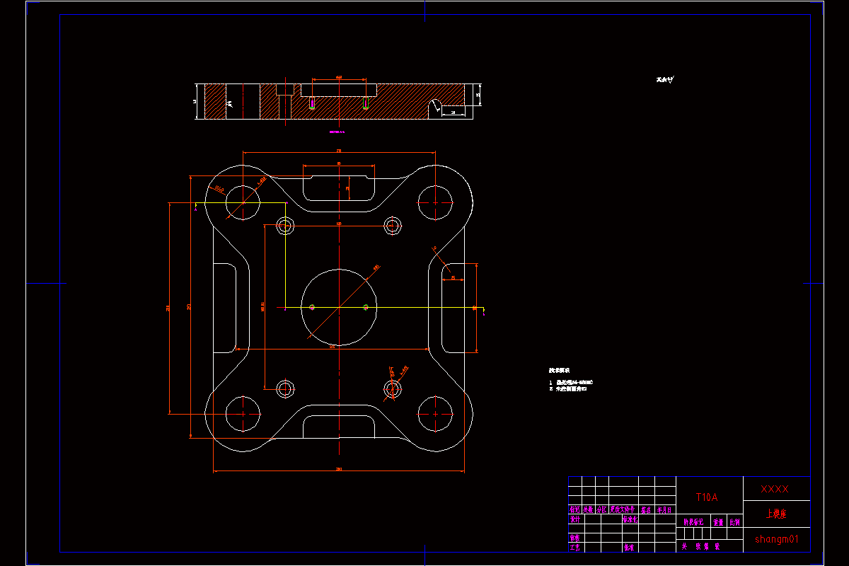
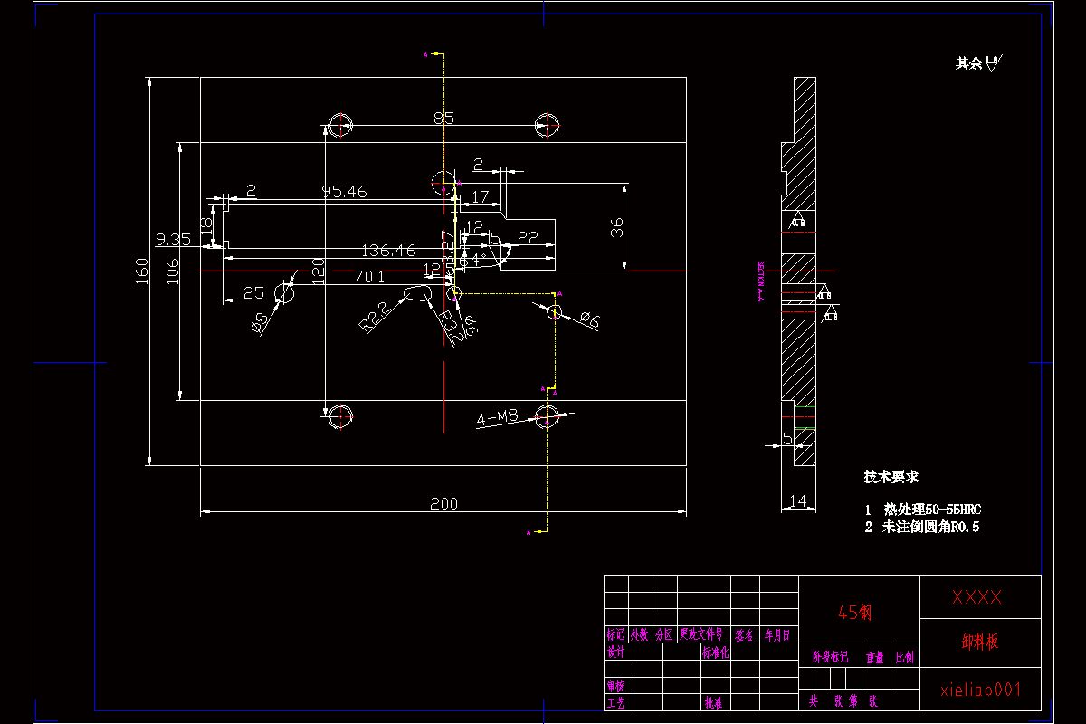
级进模也叫连续模,连续模在标准术语已经取消由多个工位组成,各工位按顺序关联完成不同的加工,在冲床的一次行程中完成一系列的不同的冲压加工。一次行程完成以后,由冲床送料机按照一个固定的步距将材料向前移动,这样在一副模具上就可以完成多个工序,一般有冲孔,落料,折弯,切边,拉伸等等。随着科学技术的迅猛发展,各种产品的更新换代越来越快,而模具的更新换代也越来越快。模具的设计在工业高速发展的现代社会,级进模的也应用得越来越广泛了,尤其是适用于高速高效的自动化生产过程中。因此我们模具专业的学生在学完金属材料学、机械制造基储模具设计与制造等基本知识,以及掌握CAD、Pro/e、UG等有关软件后,要做到对软件的灵活运用和对所学知识能综合运用,作为学模具方面的学生也更应该努力的掌握级进模设计这方面的技能。
本设计就是旨在调动所学创造的结晶。在一个多月的时间里,不断的揣摩,不断的思考,运用一切能够运用的东西:到图书馆查资料,网上查资料,再弄不明白的就问同学问老师,直到搞明白为止。弄好之后,也不敢怠慢,就拿给老师修改,争取做到更好。在这过程中也锻炼了自己的能力!!
温馨提示:
1、题目前面的备注【字母数字编号】为本站整理分类的编号,与课题内容无关,请选题时忽视;
2、若题目上备注三维,则表示文件里包含三维源文件,由于三维组成零件数量较多,为保证预览截图的简洁性,本站将三维文件夹进行了打包。三维及CAD预览截图,均为本站电脑打开软件进行截图的,保证能够打开,下载原件超高清,下载后解压即可;
3、本站所有资源如无特殊说明,都需要本地电脑安装Office2007。图纸软件为AutoCAD,PROE,UG,SolidWorks,CATIA等;
4、本站所有图文资料仅供用户学习参考,不作为任何商用或其他用途;
5、本站不保证下载资源的准确性、安全性和完整性, 不包修改,不支持退换,同时也不承担用户因使用这些下载资源对自己和他人造成任何形式的伤害或损失;
6、 下载文件中如有侵权或不适当内容,请与我们联系,我们立即纠正。