

作品包括:
Word版说明书1份,共25页
CAD版本图纸,共9张

摘要
本文首先分析了冲压技术在社会中的地位和发展前景结合国内市场的情况,模具要改进的地方以及要向别人借鉴的地方。首先要对所给的设计课题进行分析,要分析模具进行加工的方向,所用的材料及精度是否符合要求。其次在此基础上,提出了冲裁模的总体结构方案,详细的分析了模具的类型及根据生产条件来确定制件的操作,根据出件的容易程度来确定出件方式和卸料方式。当确定了模具的总体结构方案后,对冲裁件的工艺进行计算,计算后就对模具进行总体的结构零件的设计及选择。本课题取得的结论就是对零件进行工艺性分析,提出了制件的工艺性方案为级模,采用此工艺方案提出了冲件有较好的精度和平整度。根据零件的冲裁工艺方案,采用正装式级进模,采用自动送料,为保证制件的质量提出了弹压卸料形式,制件的出件方式为上出件,考虑废料的遗留问题采用下出件的方式。对压力中心的计算是提出初选压力机的依据,确定初选的压力机后,对凸模、凹模的刃口进行计算,因主要冲裁件的尺寸精度主要取决于凸模、凹模刃口尺寸及公差的计算,模具的合理间隙也是靠刃口尺寸及其公差来保证模具总装图零件图的绘制等。作为模具的设计与制造,本课题提出的级进模设计方案仍然有许多不完善的地方,比如还是用半自动化操作,若要发展此行业就要不断的提高生产效率,降低生产成本,尽量采用全自动化的机器来代替人工操作。对于现在国内的发展情况来看,本课题的研究结果仍然具有相当的成效并有较高的参考价值和实用价值。
目录
绪论1
1.冲裁件工艺性分析2
1.1操作方式3
1.2定位方式4
1.3卸料装置与出件方式4
2.排样4
2.1尺寸大小计算4
2.2材料的利用率5
2.3计算冲压力6
4.凸模设计8
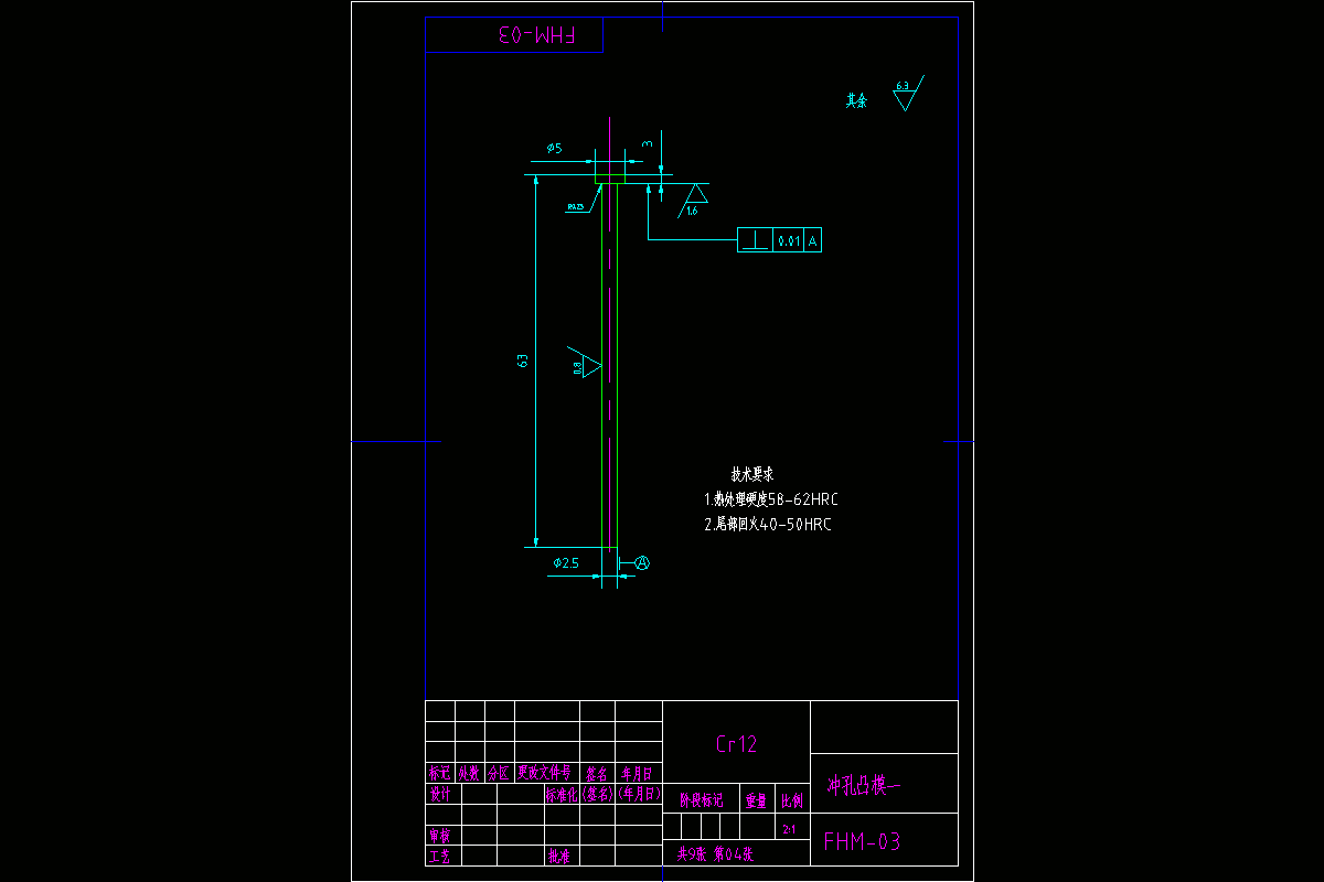
4.1冲孔凸模一8
4.1.1冲孔的凸模长度L 9
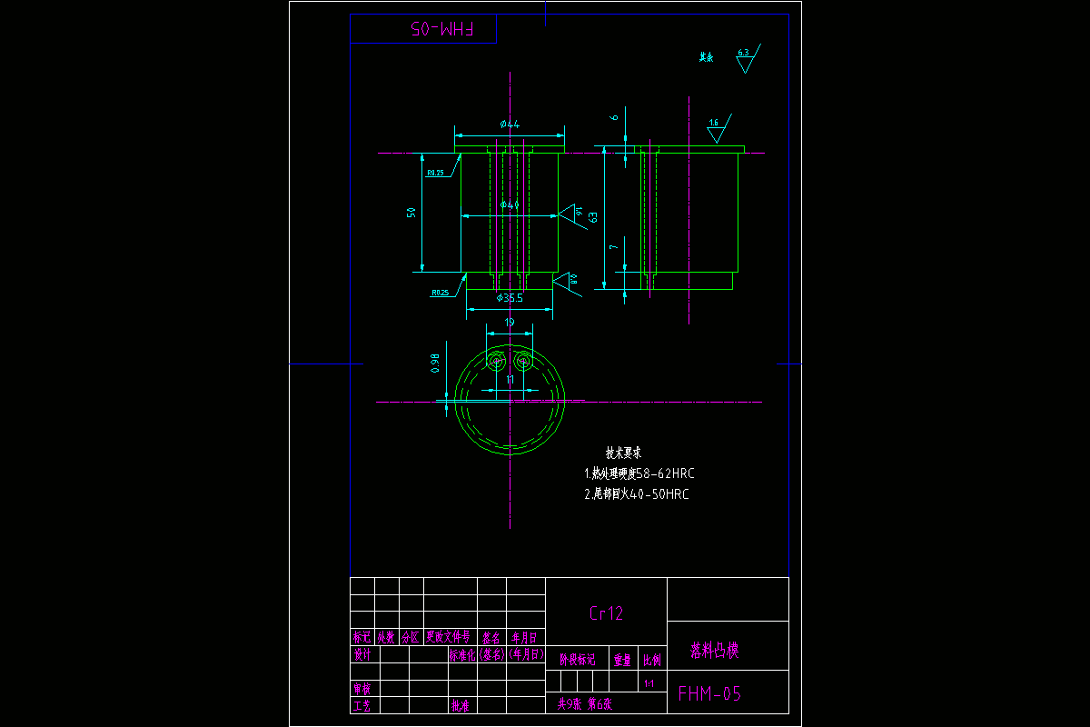
4.2冲孔凸模二,对应凸凹模的确定9
4.3落料时,凸凹刃口尺寸11
5.凹模的轮廓的尺寸的确定11
6.固定板的设计12
7.垫板的设计13
8.橡胶的选用与计算14
9.固定挡料销的选取15
10.卸料装置的设计16
10.1卸料板的设计16
11.模柄的选择17
12.压力机闭合高度的校核18
13.上、下模座的设计19
14.紧固件20
14.1螺钉20
14.2销钉20
致谢21
参考文献22
温馨提示:
1、题目前面的备注【字母数字编号】为本站整理分类的编号,与课题内容无关,请选题时忽视;
2、若题目上备注三维,则表示文件里包含三维源文件,由于三维组成零件数量较多,为保证预览截图的简洁性,本站将三维文件夹进行了打包。三维及CAD预览截图,均为本站电脑打开软件进行截图的,保证能够打开,下载原件超高清,下载后解压即可;
3、本站所有资源如无特殊说明,都需要本地电脑安装Office2007。图纸软件为AutoCAD,PROE,UG,SolidWorks,CATIA等;
4、本站所有图文资料仅供用户学习参考,不作为任何商用或其他用途;
5、本站不保证下载资源的准确性、安全性和完整性, 不包修改,不支持退换,同时也不承担用户因使用这些下载资源对自己和他人造成任何形式的伤害或损失;
6、 下载文件中如有侵权或不适当内容,请与我们联系,我们立即纠正。