

作品包括:
Word版说明书1份,共24页
CAD版本图纸,共7张
摘要
冷冲模是实现冷冲压加工的基本工艺装备,冲压件的表面质量尺寸精度,生产效益均于模具结构及其合理关系很大,模具的设计水平直接反映了冷冲压技术水平的高低,因此,冷冲模的合理设计具有重要的意义。我国在机械加工行业比其他发达国家落后很多,这不仅仅是技术上的落后,人才的紧缺也是我国机械加工行业的一个难以逾越的瓶颈。所以近年来,国家在机加工方面不断加大投入力度,在引进一批先进技术的同时,不断投入人力、物力,以培养最新一代数控型人才做好坚实基矗
目录
一、-我国机械制造业管理信息化特点及发展趋势…………(1)
二、工艺分析………………………………………………(13)
三、确定工艺方案…………………………………………(13)
四、工艺与设计计算………………………………………(14)
五、计算各主要零件的尺寸………………………………(16)
六、受力部件的受力计算与设计
七、 压力中心的确定与计算(17)
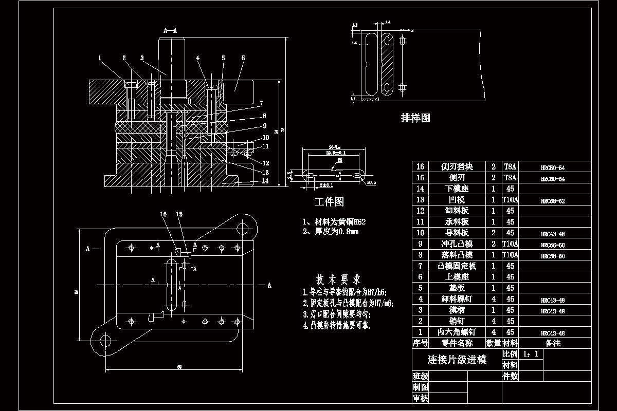
八、 排样图与搭边值及条料宽度计算(17)
九、 冲模主要零部件的设计与选用(18)
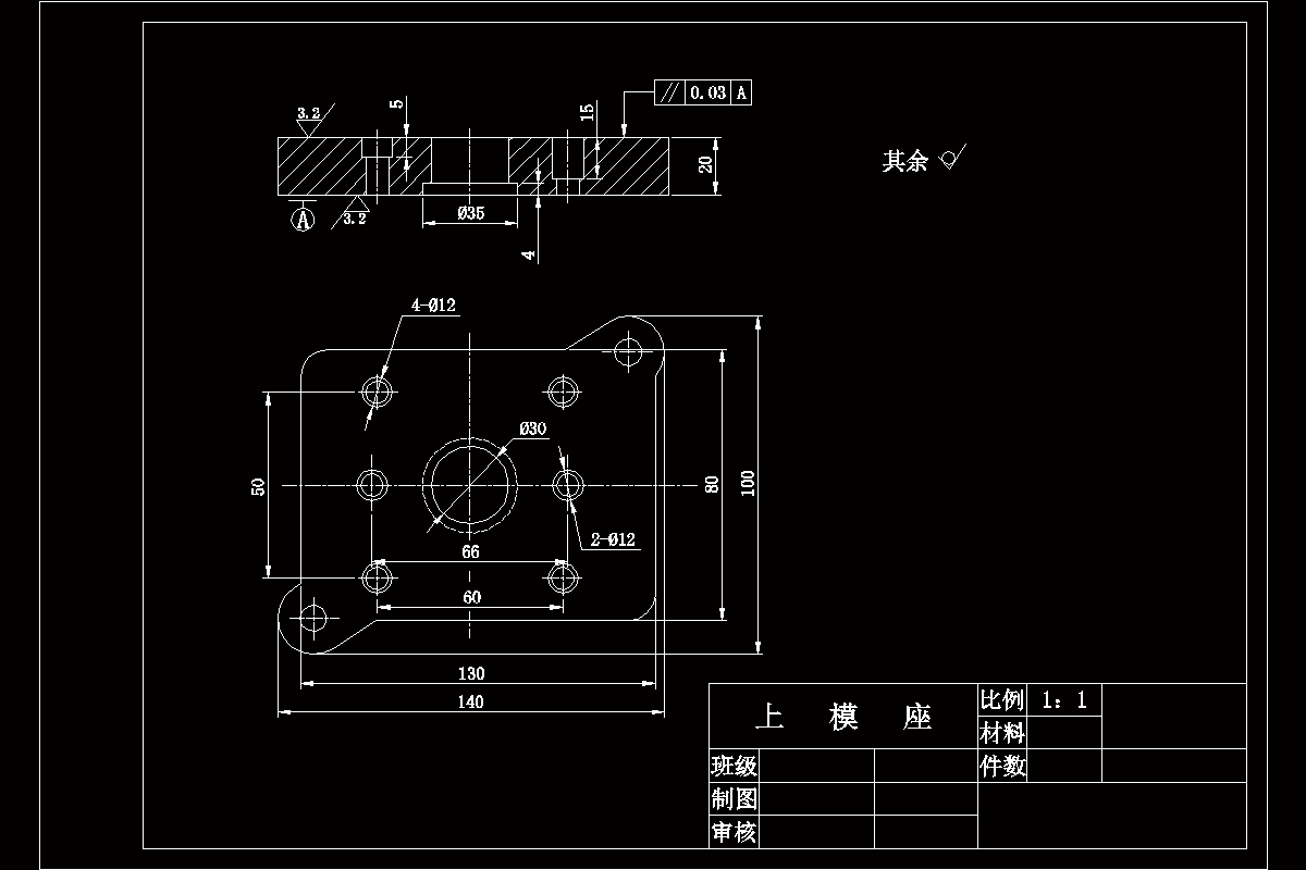
十、 模架及零件(19)
十一、 其它支承零件(19)
十二、 紧固件(20)
十三、 绘制模具装配图(20)
十四、 绘制模具工作零件图(20)
十五、 毕业设计心得(21)
十六、 参考文献(23)
温馨提示:
1、题目前面的备注【字母数字编号】为本站整理分类的编号,与课题内容无关,请选题时忽视;
2、若题目上备注三维,则表示文件里包含三维源文件,由于三维组成零件数量较多,为保证预览截图的简洁性,本站将三维文件夹进行了打包。三维及CAD预览截图,均为本站电脑打开软件进行截图的,保证能够打开,下载原件超高清,下载后解压即可;
3、本站所有资源如无特殊说明,都需要本地电脑安装Office2007。图纸软件为AutoCAD,PROE,UG,SolidWorks,CATIA等;
4、本站所有图文资料仅供用户学习参考,不作为任何商用或其他用途;
5、本站不保证下载资源的准确性、安全性和完整性, 不包修改,不支持退换,同时也不承担用户因使用这些下载资源对自己和他人造成任何形式的伤害或损失;
6、 下载文件中如有侵权或不适当内容,请与我们联系,我们立即纠正。