欢迎来到龙图网在线图文分享平台-CAD图纸,设计说明书,工业设计3D模型,三维软件下载!   客服QQ:2363701252
热搜:

工艺夹具 模具设计 数控编程 土木工程 3D模型

JJ4360-电机端盖冲压模具设计-长120 下载积分:100 资料编号: JJ4360

1.打开支付宝或者微信扫描二维码。
2.填写金额:100 
3.添加备注,填写资料编号:
资料编号: JJ4360
4.支付成功后,请发资料编号到邮箱:jxsj168@qq.com
会有专人在15分钟内把资料发到您邮箱
备注:如果付款忘记填写资料编号,则发邮件时附带您的交易明细截图即可。
请耐心等待,如超过30分钟还没收到,请联系客服QQ:2363701252
点击分享:

作品描述

作品包括:

Word版说明书1份,共37页,约15000字

开题报告一份

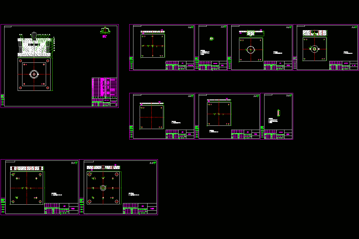
CAD版本图纸,共30张

image.png

摘要

本文首先论叙了我国目前冲压模具制造技术发展现状以及发展趋势。正文部分介绍了一种圆筒形电动机壳体的拉深模具设计,内容主要包括:拉深原理分析、拉深工艺分析及方案比较选择、模具结构的设计计算。在设计中充分利用了计算机辅助设计(CAD/CAM):用AutoCAD2000绘制了所有零件图和装配图。

关键词:模具、壳体拉深、工艺分析、结构设计、凸模角度目录

1前言1

2拉深2

3工艺方案的确定3

3.1电机端盖件拉深的变形分析3

3.1.1拉深变形过程3

3.1.2.凹模圆角部分4

3.1.3.筒底部分5

3.2拉深件的起皱及拉裂5

4拉伸模具的分析7

4.1拉伸模具的结构7

4.2电机端盖件拉深的变形分析7

4.2.1拉深变形过程电机端盖形件是最典型的拉深件7

4.2.2拉深过程中坯料内的应力与应变状态8

4.3旋转体拉深件坯料尺寸的确定11

4.3.1坯料形状和尺寸确定的依据11

4.3.2简单旋转体拉深件坯料尺寸的确定11

4.4电机端盖件的拉深工艺计算11

4.4.1拉深系数与极限拉深系数11

4.4.2拉深次数与工序件尺寸12

4.4.3电机端盖形件拉深的压料力与拉深力12

5模具结构设计14

5.1传动原理14

5.1.1成形工艺: 14

5.1.2卸料过程: 14

5.2零部件设计14

5.3导向顶出机构设计16

5.3.1滑动导柱导套17

5.3.2滑动导柱、导套17

5.3.3常用卸料、出件及压料零、部件17

5.4.1模具工作部分的表面加工19

5.4.2工艺润滑19

6零件的工艺性分析21

6.1对拉伸件的分析21

6.2工艺分析21

6.3凸凹模尺寸计算22

6.4拉伸间隙的确定23

6.4.1间隙对冲压模具寿命的影响24

6.4.2间隙对冲压工艺力的影响24

6.4.3间隙值的确定24

设计总结26

参考文献27

致谢28

附录A 29

附录B 30

附录C 31

温馨提示:

1、题目前面的备注【字母数字编号】为本站整理分类的编号,与课题内容无关,请选题时忽视;

2、若题目上备注三维,则表示文件里包含三维源文件,由于三维组成零件数量较多,为保证预览截图的简洁性,本站将三维文件夹进行了打包。三维及CAD预览截图,均为本站电脑打开软件进行截图的,保证能够打开,下载原件超高清,下载后解压即可;

3、本站所有资源如无特殊说明,都需要本地电脑安装Office2007。图纸软件为AutoCAD,PROE,UG,SolidWorks,CATIA等;

4、本站所有图文资料仅供用户学习参考,不作为任何商用或其他用途;
5、本站不保证下载资源的准确性、安全性和完整性, 不包修改,不支持退换,同时也不承担用户因使用这些下载资源对自己和他人造成任何形式的伤害或损失;

6、 下载文件中如有侵权或不适当内容,请与我们联系,我们立即纠正。


线