欢迎来到龙图网在线图文分享平台-CAD图纸,设计说明书,工业设计3D模型,三维软件下载!   客服QQ:2363701252
热搜:

工艺夹具 模具设计 数控编程 土木工程 3D模型

JJ4361-四孔方垫片、名爵汽车底盘连接片正装落料冲孔复合模具设计-长56 下载积分:100 资料编号: JJ4361

1.打开支付宝或者微信扫描二维码。
2.填写金额:100 
3.添加备注,填写资料编号:
资料编号: JJ4361
4.支付成功后,请发资料编号到邮箱:jxsj168@qq.com
会有专人在15分钟内把资料发到您邮箱
备注:如果付款忘记填写资料编号,则发邮件时附带您的交易明细截图即可。
请耐心等待,如超过30分钟还没收到,请联系客服QQ:2363701252
点击分享:

作品描述

作品包括:

Word版说明书1份,共35页,约11000字

任务书一份

开题报告一份

外文翻译一份

CAD版本图纸,共15张

image.png

摘要

随着中国经济持续增长,国内模具行业的发展速度喜人,我国冲压模具发展已逐步接近世界先进水平。本课题研究的是名爵汽车底盘连接片正装复合模设计。因模具为单件小批量生产,且模具应保证冲压产品的尺寸精度和产品质量,模具的设计与制造应充分考虑模具的设计能否满足工件的工艺性设计,能否加工出合格的零件,能否使零件具有较高的使用寿命。该模具有两个工位,分别进行冲孔和落料。根据零件图,进行冲裁工艺性分析并选择最佳方案,完成排样设计,计算材料利用率、工序力,选择合适的压力机,各零件尺寸的选用和计算等。由凹模零件图进行加工工艺的编制,用UG软件画出凹模实体,并画出毛坯,再进行加工。因凹模刃口粗糙度较小,故在加工完后,需在磨床上进行打磨。最后,对凹模进行数控编程。

关键词:正装复合模;零部件选用;刃口尺寸计算;UG制图;编程

目录

第一章绪论1

1.1模具行业现状1

1.2复合模的概念及优势1

1.2.1复合模的概念1

1.2.2复合模的优势1

1.3 CAE技术的简介1

第二章冲压工艺分析与设计3

2.1零件分析3

2.2冲裁工艺分析3

2.2.1冲裁件的工艺性分析3

2.2.2冲压工艺方案的确定4

第三章排样5

3.1排样5

3.1.1选取搭边值5

3.1.2送料步距和条料宽度的计算5

3.2材料利用率的计算6

第四章计算工序力及选择压力机7

4.1计算工序力7

4.1.1计算冲裁力7

4.1.2计算推件力7

4.1.3计算卸料力8

4.1.4计算总冲压力8

4.2确定压力中心8

4.3压力机的选择8

第五章模具尺寸计算及零部件选用10

5.1确定制件的尺寸公差10

5.1.1凸、凹模刃口尺寸的计算10

5.1.2中心距尺寸的计算11

5.2各主要零件结构尺寸的计算及选用12

5.2.1凹模外形尺寸的计算及刃口形式的确定12

5.2.2凸凹模的设计13

5.3凸模设计14

5.3.1凸模形式14

5.3.2凸模长度尺寸的计算14

5.3.3凸模强度校核14

第六章零部件的选用及装配图的绘制16

6.1确定垫板、凸模固定板、凸凹模固定板及卸料板的厚度16

6.2橡胶的选用18

6.3模架的选用18

6.3.1上、下模座厚度的计算18

6.3.2模具闭合高度的估算19

6.3.3模架的选用19

6.4模柄的选用19

6.5定位零件的选用20

6.6推件装置的选用20

6.7装配图的绘制20

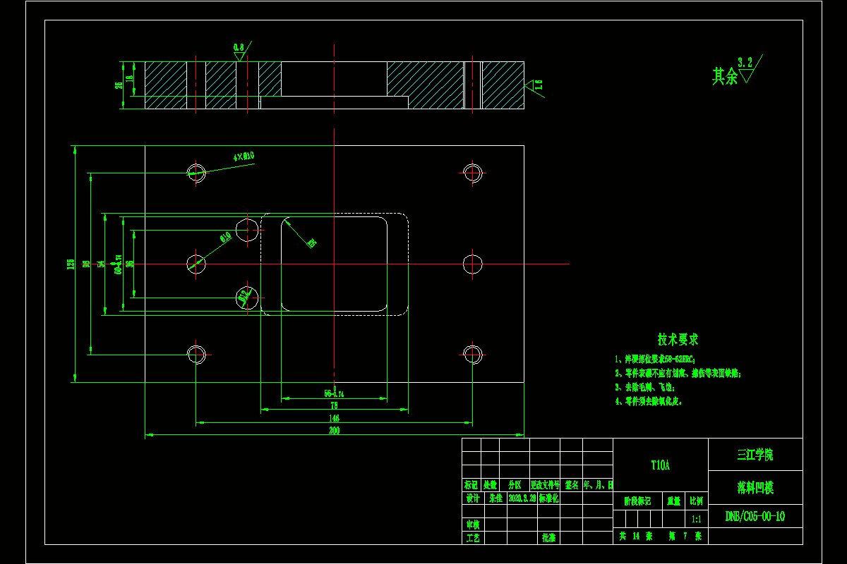
第七章凹模加工22

7.1工序尺寸和加工余量的确定22

7.2 UG加工22

7.3编程23

7.3.1创建程序目录23

7.3.2创建刀具23

7.3.3创建坐标系和毛坯23

7.3.4创建操作和程序24

结束语28

致谢29

参考文献30

附录A 31

温馨提示:

1、题目前面的备注【字母数字编号】为本站整理分类的编号,与课题内容无关,请选题时忽视;

2、若题目上备注三维,则表示文件里包含三维源文件,由于三维组成零件数量较多,为保证预览截图的简洁性,本站将三维文件夹进行了打包。三维及CAD预览截图,均为本站电脑打开软件进行截图的,保证能够打开,下载原件超高清,下载后解压即可;

3、本站所有资源如无特殊说明,都需要本地电脑安装Office2007。图纸软件为AutoCAD,PROE,UG,SolidWorks,CATIA等;

4、本站所有图文资料仅供用户学习参考,不作为任何商用或其他用途;
5、本站不保证下载资源的准确性、安全性和完整性, 不包修改,不支持退换,同时也不承担用户因使用这些下载资源对自己和他人造成任何形式的伤害或损失;

6、 下载文件中如有侵权或不适当内容,请与我们联系,我们立即纠正。


线