

作品包括:
Word版说明书1份,共28页,约7200字
CAD版本图纸,共10张
UG三维图一份

摘要
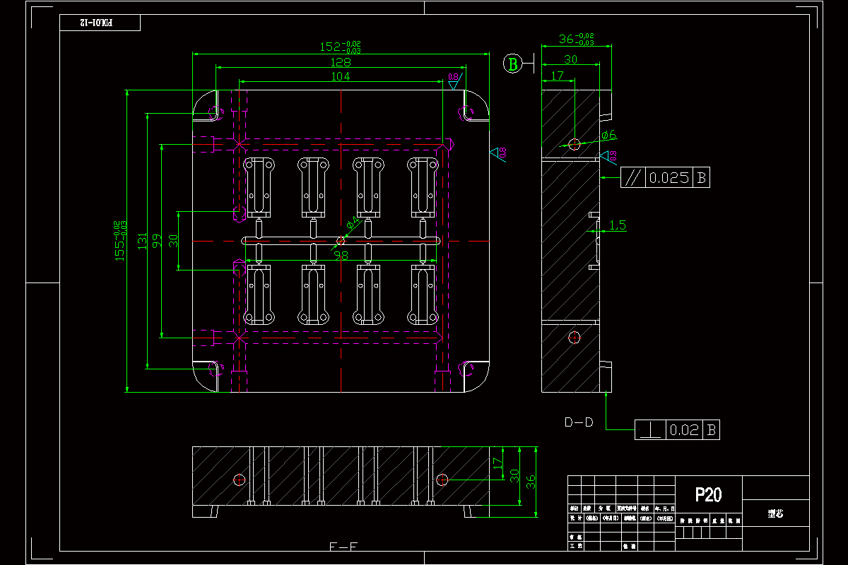
课题名称为解锁按钮注塑模具设计,属于装潢电器类零件,工件是配套件的主要零件,采用注塑模具成型,外观表面质量要求较高,外形不允许留下不良的痕迹。其主要内容包括塑件的成形工艺分析,模具结构形式的确定,分型面位置的确定,浇注系统的形式和浇口的确定,成形零件的结构确定,合模导向机构的确定,脱模推出机构的确定等。
在正确分析塑件工艺特点和PA6材料的性能后,对模具结构各工艺参数,包括锁模力、模具闭合高度等模具参数的进行了计算校核,设计了一副一模八腔、双分型面的侧浇口注射模具。利用UG三维软件和AutoCAD二维制图软件分析注射模的成型零部件,浇注系统,导向部件和脱模机构等。
温馨提示:
1、题目前面的备注【字母数字编号】为本站整理分类的编号,与课题内容无关,请选题时忽视;
2、若题目上备注三维,则表示文件里包含三维源文件,由于三维组成零件数量较多,为保证预览截图的简洁性,本站将三维文件夹进行了打包。三维及CAD预览截图,均为本站电脑打开软件进行截图的,保证能够打开,下载原件超高清,下载后解压即可;
3、本站所有资源如无特殊说明,都需要本地电脑安装Office2007。图纸软件为AutoCAD,PROE,UG,SolidWorks,CATIA等;
4、本站所有图文资料仅供用户学习参考,不作为任何商用或其他用途;
5、本站不保证下载资源的准确性、安全性和完整性, 不包修改,不支持退换,同时也不承担用户因使用这些下载资源对自己和他人造成任何形式的伤害或损失;
6、 下载文件中如有侵权或不适当内容,请与我们联系,我们立即纠正。