欢迎来到龙图网在线图文分享平台-CAD图纸,设计说明书,工业设计3D模型,三维软件下载!   客服QQ:2363701252
热搜:

工艺夹具 模具设计 数控编程 土木工程 3D模型

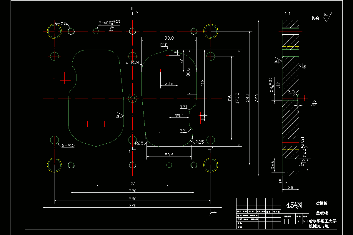
JJ4572-通风盖板模具设计及装配过程的动画设计【含proe三维图】 下载积分:50 资料编号: JJ4572

1.打开支付宝或者微信扫描二维码。
2.填写金额:50 
3.添加备注,填写资料编号:
资料编号: JJ4572
4.支付成功后,请发资料编号到邮箱:jxsj168@qq.com
会有专人在15分钟内把资料发到您邮箱
备注:如果付款忘记填写资料编号,则发邮件时附带您的交易明细截图即可。
请耐心等待,如超过30分钟还没收到,请联系客服QQ:2363701252
点击分享:

作品描述

作品包括:

Word版说明书1份,共38页

CAD版本图纸,共11张

Proe三维图一套


摘要

目前塑料在实现“以塑代钢”方面起着不可忽视的作用,它正以其物美价廉的特征渗透到国民经济的各个领域。工程塑料制品的速度增长率为每年10然而在工程塑料中7080上的制品是采用注塑成型加工。如今塑料制品广泛应用于广泛应用于电子、机械、汽车、航天、家电、玩具等各个行业。因此也使注塑模具的设计与制造带来了繁荣的景象。在模具设计中,Pro/E软件以它强大的实体建模功能和结构分析功能扮演着不可或缺的角色。

本文简要概述了CAD技术在国内外的发展状况,介绍了CAD在模具工业中的使用和发展情况,介绍了在我国研究和发展模具CAD技术的必要性和迫切性,介绍了Pro/E软件的一些模块及其功能,介绍模具与注射机的关系等,并图文并茂介绍了利用Pro/E软件进行模具设计的整个过程。涵盖主题包括:模具型腔设计,浇注系统设计,脱模机构设计,温度调节系统设计,开模模拟等知识面。

在英文翻译中,我将对国内资料没有详细介绍的温度调节系统作了介绍。

目录

摘要I

Abstract II

第1章绪论1

1.1课题背景1

1.2塑料注射模具CAD综述1

1.3塑料注射模具CAD的特点2

1.4计算机在塑料注射模具设计与制造中的应用2

1.5现代模具技术发展3

1.6新一代模具设计软件技术4

1.7 Pro/ENGINEER软件介绍4

第2章注塑零件的设计6

2.1材料特性6

2.1.1使用性能6

2.1.2成型性能6

2.2塑料制品结构设计6

第3章模具设计8

3.1塑料的成型工艺特性8

3.2注射机的选择9

3.3模具材料的选择11

3.4模具加工工艺12

3.5注射模具设计13

3.5.1成型零件结构设计14

3.5.2浇注系统设计23

3.5.3导向机构的设计25

3.5.4排气系统设计26

3.5.5脱模机构设计27

3.5.6温度调节系统设计30

结论32

致谢33

参考文献34

附录35

温馨提示:

1、题目前面的备注【字母数字编号】为本站整理分类的编号,与课题内容无关,请选题时忽视;

2、若题目上备注三维,则表示文件里包含三维源文件,由于三维组成零件数量较多,为保证预览截图的简洁性,本站将三维文件夹进行了打包。三维及CAD预览截图,均为本站电脑打开软件进行截图的,保证能够打开,下载原件超高清,下载后解压即可;

3、本站所有资源如无特殊说明,都需要本地电脑安装Office2007。图纸软件为AutoCAD,PROE,UG,SolidWorks,CATIA等;

4、本站所有图文资料仅供用户学习参考,不作为任何商用或其他用途;
5、本站不保证下载资源的准确性、安全性和完整性, 不包修改,不支持退换,同时也不承担用户因使用这些下载资源对自己和他人造成任何形式的伤害或损失;

6、 下载文件中如有侵权或不适当内容,请与我们联系,我们立即纠正。


线