欢迎来到龙图网在线图文分享平台-CAD图纸,设计说明书,工业设计3D模型,三维软件下载!   客服QQ:2363701252
热搜:

工艺夹具 模具设计 数控编程 土木工程 3D模型

JJ4736-热水袋塞盖注塑模具设计【含三维塑件图】 下载积分:50 资料编号: JJ4736

1.打开支付宝或者微信扫描二维码。
2.填写金额:50 
3.添加备注,填写资料编号:
资料编号: JJ4736
4.支付成功后,请发资料编号到邮箱:jxsj168@qq.com
会有专人在15分钟内把资料发到您邮箱
备注:如果付款忘记填写资料编号,则发邮件时附带您的交易明细截图即可。
请耐心等待,如超过30分钟还没收到,请联系客服QQ:2363701252
点击分享:

作品描述

作品包括:

Word版说明书1份,共43页,约16000字

任务书一份

开题报告一份

外文翻译一份

CAD版本图纸,共23张

3D塑件图1张

image.png

image.png

image.png

摘要

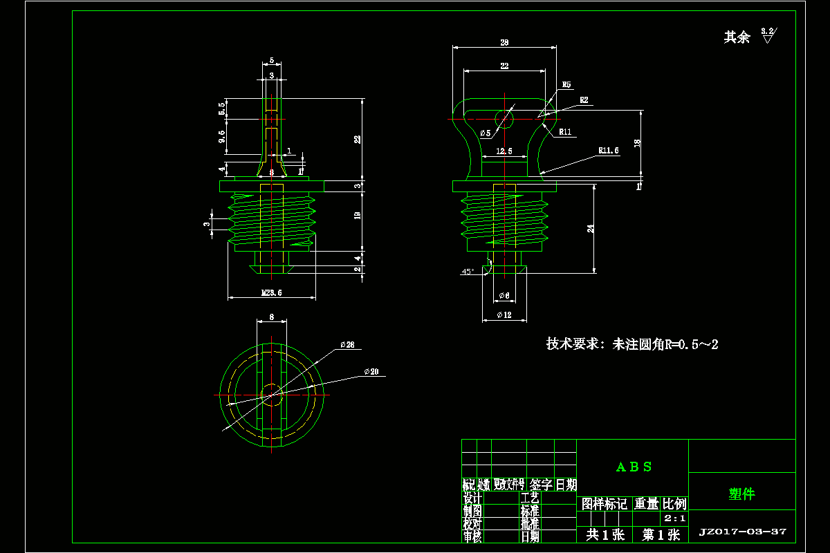
中国的模具工业作为一个新型且独立的制造业,正处于快速发展阶段,未来模具工业发展前程极宽广。21世纪以来,各个行业都得到了十分高速的发展,在此之中,模具行业根据市场的实际情况以及各个商品的需求,迅速孕育而生并脱颖而出。本文重点陈诉的是热水袋塞盖的注塑模具设计。

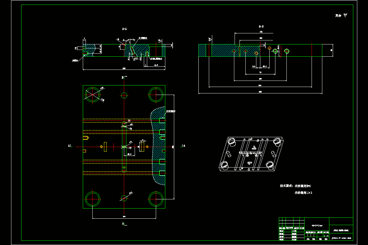
本文设计的塑件为热水袋塞盖,要求结构简单,并且带有小孔和外螺纹,大批量的生产,所以生产时要研讨出成本最少的方案。塞盖涉及的精度不高,塑件外表可以有分型面痕迹。综上情况,该设计没有选用齿轮、齿条自动脱螺纹的构造,而是选用了斜导柱带动侧滑块使之注塑成型。此塞盖选用一模两腔三板式,规划了两个分型构造,进料用点浇口,顶管式的顶出装置,瓣合式的构造,并用斜导柱带动侧滑块分型。根据上边所陈诉的元素,设计的子详细方案在接下来文章有详细的说明和验证。

塞盖塑件是一模两腔且左右对称式结构,为了缩短周期,降低生产难度,选用四个一模一样的滑块组成该结构。这样设计使得模具构造简单,分布均匀,有益于加工。

关键词:模具、塑件、点浇口、塑件、斜导柱

目录

第一章绪论1

1.1概述1

1.2当前国内外同类产品的研究动态1

1.3简述选题在该领域的水平和发展动态1

1.4本设计所要研究的内容… 2

1. 5本设计的主要工作2

第二章塑件材料介绍3

2. 1 A B S塑料的性能3

2 . 1 . 1物理性能3

2 . 1 . 2机械性能2

2 . 1 . 3热性能4

2 . 1 . 4化学性能4

2 . 1 . 5耐环境气候性能4

2.2ABS塑料的应用4

2.3ABS塑料的注射成型加工工艺5

2. 4塑件材料的确定5

第三章模具结构设计6

3. 1塑件分析6

3 . 2浇注系统的选择6

3 . 2 . 1浇注系统设计的原则6

3 . 2 . 2主流道的设计7

3 . 2 . 2 . 1主流道的设计原则7

3 . 2 . 2 . 2本塑件的主流道设计8

3 . 2 . 2 . 3主流道截面尺寸的计算8

3 . 2 . 3分流道的设计9

3 . 2 . 3 . 1分流道设计要点9

3 . 2 . 3 . 2分流道的截面形状9

3 . 2 . 3 . 3分流道的截面尺寸10

3 . 2 . 3 . 4分流道的布置11

3 . 2 . 4浇口的设计1 2

3 . 2 . 4 . 1浇口的基本类型及选择1 2

3 . 2 . 4 . 2浇口的尺寸确定1 2

3 . 2 . 4 . 3浇口位置选择1 3

3.2.5冷料穴的设计1 4

3.3分型面的选择1 4

3.4模具结构及动作原理1 5

3.4.1模具结构1 5

3.4.2动作原理1 6

第四章注射机的选用1 7

4.1所选注射机的性能参数1 7

4.2注射机有关工艺参数的校核1 7

4.2.1注射量的校核1 7

4 . 2 . 2锁模力与注射压力的校核1 8

4.2.3模具厚度H与注射机闭和高度的校核1 8

4.2.4注射机开模行程的校核18

第五章模具设计的有关计算20

5.1成型零件的有关尺寸的计算20

5. 1 . 1型腔的工作尺寸计算20

5 . 1 . 2型芯的工作尺寸计算21

5 . 1 . 3螺纹的工作尺寸计算22

5 . 1 . 4抽芯距与斜导柱长度的计算23

5.2型腔压力的估算2 4

5.3型腔壁厚的计算2 4

5.4脱模阻力的计算2 5

5.5锁模力的计算2 5

5.6冷却系统的分析计算2 6

5 . 6 . 1冷却的作用2 6

5 . 6 . 2冷却介质的选择2 6

5 . 6 . 3影响冷却时间的因素2 6

5 . 6 . 4冷却回路的设计2 8

5 . 6 . 5冷却回路的布置28

5 . 6 . 6冷却参数计算28

结论31

参考文献32

附录1 :外文翻译33

附录2 :外文原文38

致谢44

温馨提示:

1、题目前面的备注【字母数字编号】为本站整理分类的编号,与课题内容无关,请选题时忽视;

2、若题目上备注三维,则表示文件里包含三维源文件,由于三维组成零件数量较多,为保证预览截图的简洁性,本站将三维文件夹进行了打包。三维及CAD预览截图,均为本站电脑打开软件进行截图的,保证能够打开,下载原件超高清,下载后解压即可;

3、本站所有资源如无特殊说明,都需要本地电脑安装Office2007。图纸软件为AutoCAD,PROE,UG,SolidWorks,CATIA等;

4、本站所有图文资料仅供用户学习参考,不作为任何商用或其他用途;
5、本站不保证下载资源的准确性、安全性和完整性, 不包修改,不支持退换,同时也不承担用户因使用这些下载资源对自己和他人造成任何形式的伤害或损失;

6、 下载文件中如有侵权或不适当内容,请与我们联系,我们立即纠正。


线