

作品包括:
Word版说明书1份,共25页
CAD版本图纸,共12张


摘要
模具生产技术水平的高低,已成为衡量一个国家产品制造水平高低的重要标志。塑料工业的飞速发展,对注塑模具的设计与生产提出了质量好、制造精度高、研发周期短等越来越高的要求,能否适应这种需求已成为模具生产企业发展的关键因素。模具技术是融合机械工程、计算机应用、自动控制、数控技术等学科为一体的综合性学科。
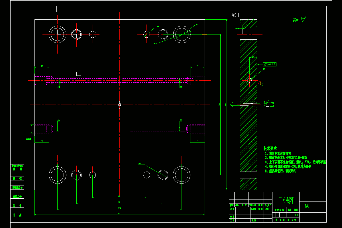
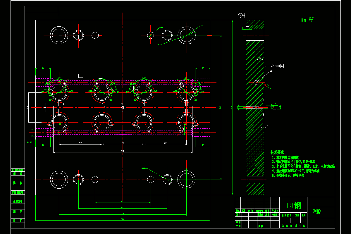
本文中针对喇叭固定圈注射模具制定出合理的设计结构,其中包括成型部分及其零部件设计,浇注系统设计,脱模机构设计,冷却系统设计等。根据分析,设计了一套塑料注射模具,并对模具以及主要零件进行了CAD绘图。
目录
摘要II
目录III
第1章前言1
第2章塑件的工艺分析2
2.1塑件的工艺性分析2
2.2塑件的结构和尺寸精度及表面质量分析4
2.2.1结构分析4
2.2.3表面质量分析4
2.3计算塑件的体积和质量4
2.4注塑机的初选4
第3章分型面选择和浇注系统设计5
3.1注射模具分型面的选择5
3.1.1分型面的基本形式5
3.1.2分型面选择的基本原则5
3.1.3分型面的选择5
3.2浇注系统的设计5
3.2.1浇注系统的组成5
3.2.2注射模具主流道的设计6
3.2.3分流道的设计7
第4章成型零件的设计9
4.1模具型腔的结构设计9
4.2型芯的结构设计10
4.3成型零件的尺寸确定10
4.2型芯的结构设计10
4.3成型零件的尺寸确定11
第5章顶出机构的设计14
第6章冷却系统的设计16
第7章排气系统18
第8章成型设备有关参数校核18
第9章模具特点和工作原理19
总结20
参考文献21
温馨提示:
1、题目前面的备注【字母数字编号】为本站整理分类的编号,与课题内容无关,请选题时忽视;
2、若题目上备注三维,则表示文件里包含三维源文件,由于三维组成零件数量较多,为保证预览截图的简洁性,本站将三维文件夹进行了打包。三维及CAD预览截图,均为本站电脑打开软件进行截图的,保证能够打开,下载原件超高清,下载后解压即可;
3、本站所有资源如无特殊说明,都需要本地电脑安装Office2007。图纸软件为AutoCAD,PROE,UG,SolidWorks,CATIA等;
4、本站所有图文资料仅供用户学习参考,不作为任何商用或其他用途;
5、本站不保证下载资源的准确性、安全性和完整性, 不包修改,不支持退换,同时也不承担用户因使用这些下载资源对自己和他人造成任何形式的伤害或损失;
6、 下载文件中如有侵权或不适当内容,请与我们联系,我们立即纠正。