

作品包括:
Word版说明书1份,共27页
CAD版本图纸,共8张
摘要
本文分为两大部分,第一部分是机械结构设计,内容包括塑料模具的工作原理及应用,设计准则产品的简介。塑料注塑模的结构计算,包括模具结构设计,注射机的选用,浇注系统设计等方面。第二部分是介绍CAD/CAM在模具上的应用。
目录
1设计内容2
1.1控制盒面盖注射模2
2本次设计的目的2
2.1设计目的2
3塑件成型的基本过程3
3.1塑化过程3
3.2充模过程3
3.3冷却凝固过程3
3.4脱模过程3
4塑件制品分析4
4.1影响塑件制品的因素4
4.2塑件制品的选材及其物理性能4
4.3塑件材料的成型特性5
5注射机的选择与校核6
5.1注射机的选定6
5.2注射机的校核6
5.2.1注射量的校核6
5.2.2锁模力的校核6
5.2.3注射机安装模具部分的尺寸校核7
5.2.4开模行程的校核7
6分型面的确定8
6.1分型面的选择8
7浇注系统的设计9
7.1浇口系统的组成9
7.2浇口系统的作用9
7.3浇口套的设计9
7.4流道设计9
7.5浇口的设计10
8排溢系统的设计12
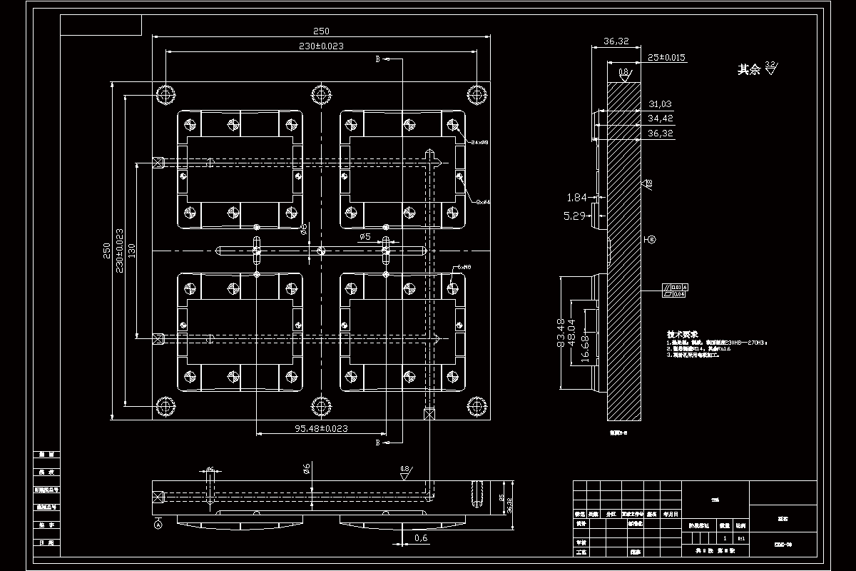
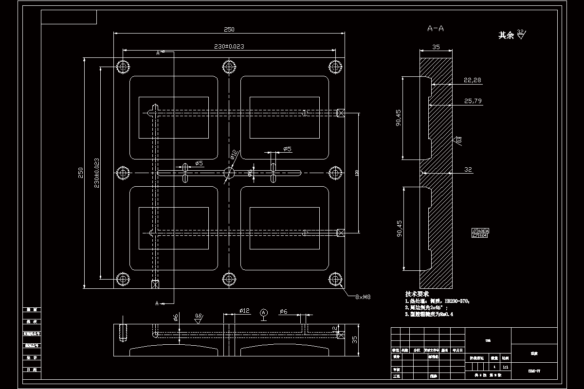
9型腔、型芯的设计13
9.1设计型腔和型芯的结构形式13
9.2型芯和型腔设计13
9.2.1型芯设计13
9.2.2型腔设计13
9.3型腔、型芯工作尺寸的计算14
9.4型腔壁厚的计算15
9.4.1型腔的强度及刚度要求15
9.4.2对凹模底板厚度: 15
9.4.3确定型腔的壁厚15
10导向机构的设计17
11脱模与复位机构设计19
11.1脱模机构的设计19
11.2复位机构的确定19
12冷却系统的设计20
13整体设计22
结束语23
参考文献24
温馨提示:
1、题目前面的备注【字母数字编号】为本站整理分类的编号,与课题内容无关,请选题时忽视;
2、若题目上备注三维,则表示文件里包含三维源文件,由于三维组成零件数量较多,为保证预览截图的简洁性,本站将三维文件夹进行了打包。三维及CAD预览截图,均为本站电脑打开软件进行截图的,保证能够打开,下载原件超高清,下载后解压即可;
3、本站所有资源如无特殊说明,都需要本地电脑安装Office2007。图纸软件为AutoCAD,PROE,UG,SolidWorks,CATIA等;
4、本站所有图文资料仅供用户学习参考,不作为任何商用或其他用途;
5、本站不保证下载资源的准确性、安全性和完整性, 不包修改,不支持退换,同时也不承担用户因使用这些下载资源对自己和他人造成任何形式的伤害或损失;
6、 下载文件中如有侵权或不适当内容,请与我们联系,我们立即纠正。