

作品包括:
Word版说明书1份,共68页,约16000字
任务书一份
开题报告一份
CAD版本图纸,共7张

摘要
本次主要对26-5tA型双梁门式起重机进行设计,设计重点为其主要结构,门式起重机无论是在车站、电站还是港口、码头等场所均作为搬运物料的重要的设备。发挥着不可或缺的作用。
本次在查阅了大量该类型起重机的相关资料后本人对其结构参数、分类形式以及选型方法等都有了一个基本了解。通过相关资料开展对其结构的总体设计并对作为其重要部件的主梁、整体金属结构进行了依次进行了设计并对强度计算校核。在完成上述工作后,对其主要工作部件:运行装置以及起升装置进行设计校核;之后对其行走机构进行参数设计并予以校核。在对所有部件设计校核并确定设计参数后本次使用AutoCAD对其零件和装配体进行绘制。
本次设计旨在对当前社会中常用的双梁A型门式起重机进行一定的改进优化。由于此前对该设备并不是很了解,很多设计参数以及设计经验主要靠查阅相关资料来进行比较总结。对该起重机的主要结构(包括双主梁、两柔支腿、两刚支腿和上下横梁等)计算选择、方法、公式也主要来自于前人资料。同时,本文还对螺栓连接、载荷等重点进行计算。
关键词:门式起重机;双梁;A型;支腿
目录
摘要I
Abstract II
第1章绪论1
1.1研究背景及意义1
1.2门式起重机简介1
1.3国内外研究及发展现状2
第2章起重机总体设计3
2.1门式起重机主要参数介绍3
2.2设计要求4
2.3总体方案设计4
2.4总体结构参数选择5
2.4.1材料选择5
2.4.2部件截面形状的确定5
2.4.3截面惯性矩验算8
2.4.4机架的材料和时效处理9
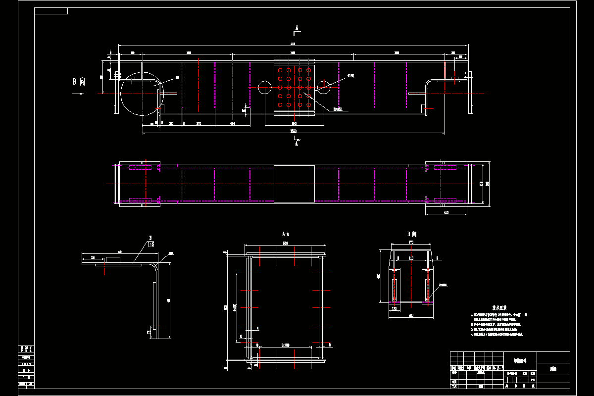
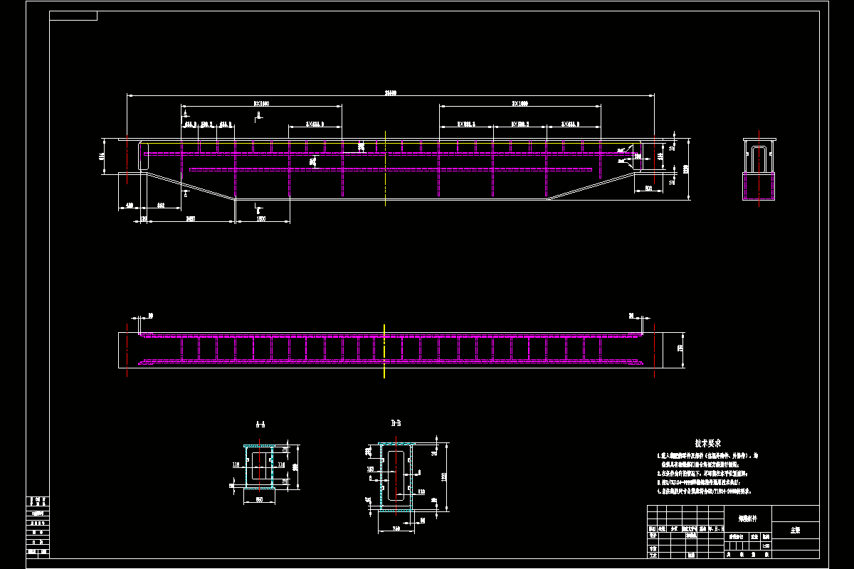
第3章起重机结构件设计11
3.1主梁设计11
3.1.1载荷及内力计算11
3.1.2主梁的强度19
3.1.3主梁的稳定性24
3.1.4主梁刚度设计计算27
3.2支腿设计30
3.2.1钢架的三次超静定结构30
3.2.2马鞍横梁跨中截面内力计算32
3.3支承架设计及计算34
3.3.1支撑架刚度计算34
3.3.2支撑架的小车轨顶处位移39
3.3.3整体稳定性计算45
3.4焊接工艺设计46
3.5螺栓连接强度计算47
3.5.1马鞍的连接强度计算47
3.5.2支腿与横梁的连接计算48
3.5.3主梁在跨中的连接计算48
3.5.4主梁盖板的螺栓连接50
第4章起升及运行机构设计51
4.1起升机构设计51
4.2小车的行走机构设计和计算55
4.3大车运行机构的设计58
总结62
参考文献63
致谢64
温馨提示:
1、题目前面的备注【字母数字编号】为本站整理分类的编号,与课题内容无关,请选题时忽视;
2、若题目上备注三维,则表示文件里包含三维源文件,由于三维组成零件数量较多,为保证预览截图的简洁性,本站将三维文件夹进行了打包。三维及CAD预览截图,均为本站电脑打开软件进行截图的,保证能够打开,下载原件超高清,下载后解压即可;
3、本站所有资源如无特殊说明,都需要本地电脑安装Office2007。图纸软件为AutoCAD,PROE,UG,SolidWorks,CATIA等;
4、本站所有图文资料仅供用户学习参考,不作为任何商用或其他用途;
5、本站不保证下载资源的准确性、安全性和完整性, 不包修改,不支持退换,同时也不承担用户因使用这些下载资源对自己和他人造成任何形式的伤害或损失;
6、 下载文件中如有侵权或不适当内容,请与我们联系,我们立即纠正。