

作品包括:
Word版说明书1份,共41页
中期报告一份
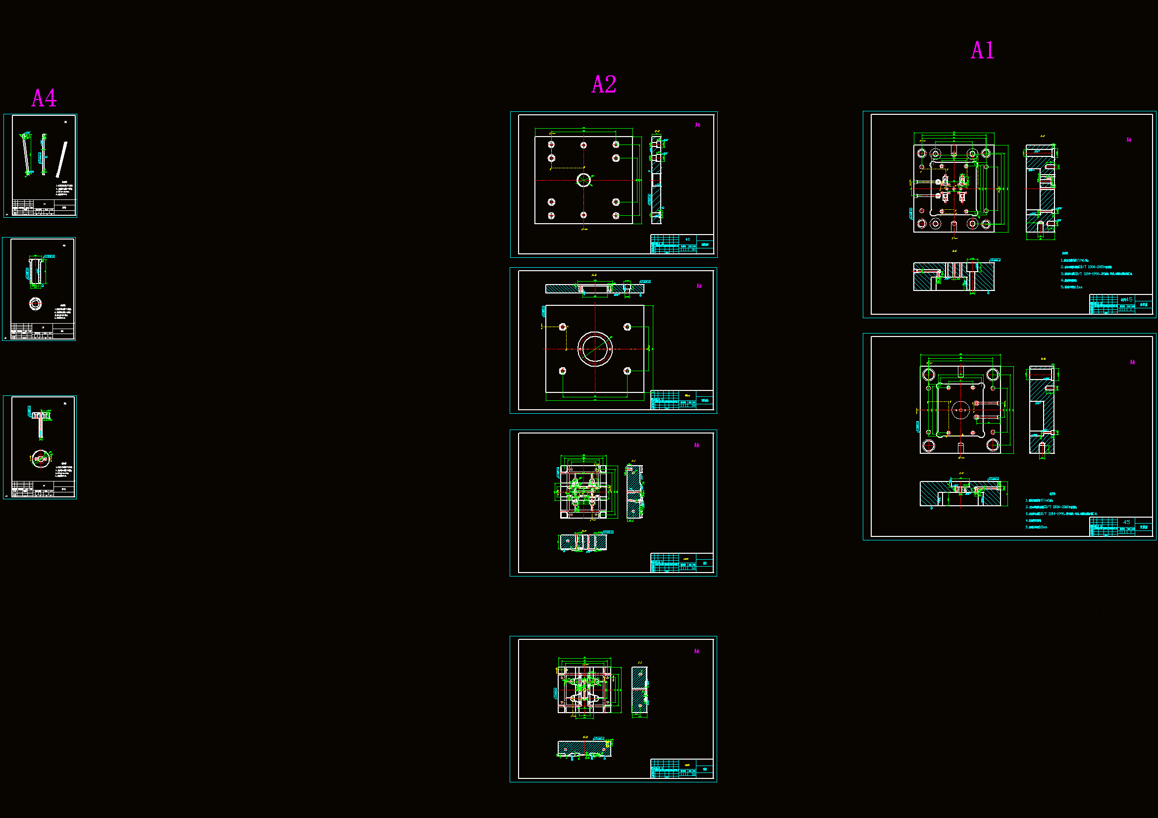
CAD版本图纸,共9张
UG三维图一份
摘要
本设计为孩子宝玩具车支架塑料注射模设计。设计了一副一模四腔的注塑模具。设计过程包括模具各个成型零件尺寸的计算,重要工艺参数的选择,以及推出机构、抽芯机构、分型机构、浇注系统、冷却系统等的计算。选择了主要零件的制造材料。 本模具设计最关键的一点就是设计已达到实际生产的要求在设计过程中,为了更清楚的表达模具的内部结构,因此附有大量的模具结构图和模具局部图,并通过通过cad软件画出它的二维图和零件图。
温馨提示:
1、题目前面的备注【字母数字编号】为本站整理分类的编号,与课题内容无关,请选题时忽视;
2、若题目上备注三维,则表示文件里包含三维源文件,由于三维组成零件数量较多,为保证预览截图的简洁性,本站将三维文件夹进行了打包。三维及CAD预览截图,均为本站电脑打开软件进行截图的,保证能够打开,下载原件超高清,下载后解压即可;
3、本站所有资源如无特殊说明,都需要本地电脑安装Office2007。图纸软件为AutoCAD,PROE,UG,SolidWorks,CATIA等;
4、本站所有图文资料仅供用户学习参考,不作为任何商用或其他用途;
5、本站不保证下载资源的准确性、安全性和完整性, 不包修改,不支持退换,同时也不承担用户因使用这些下载资源对自己和他人造成任何形式的伤害或损失;
6、 下载文件中如有侵权或不适当内容,请与我们联系,我们立即纠正。