

作品包括:
Word版说明书1份,共39页,约17000字
CAD版本图纸,共7张

摘 要
本设计的课题是汽缸体左右端面钻孔组合机床设计。主要说明组合机床设计的基本过程及要求。组合机床是根据工件加
工的需要,以大量的通用部件为基础,配以少量的专用部件组成的一种高效的专用机床。组合机床一般采用多轴、多刀
、多工序、多面或多工位同时加工的方法,生产效率比通用机床高几倍到几十倍。与传统的机床相比:组合机床具有许
多优点:效率高、精度高、成本低。它由床身、立柱、工作台、及电源一些基本部件及一些特殊部件,根据不同的工件
加工所需而设计的。多年来机械产品加工中广泛的采用万能机床,但是随着生产的发展,很多企业的产品的产量越来越
大,精度越来越高,采用万能机床加工已经不能很好的满足要求。理所当然,组合机床可以提高生产效率和加工精度。
在组合机床设计过程中,为了降低组合机床的制造成本,应尽可能的使用通用件和标准件。
在组合机床上可以完成很多工序,但就目前使用的大多数组合机床来说,则主要用于平面加工和孔加工两大类工序。本
设计主要内容包括三大部分大部分:1、组合机床的总体设计,就是确定机床各部件之间的相互关系,选择通用部件和刀
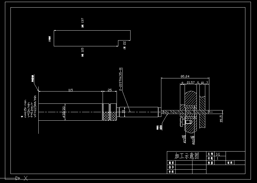
具的导,并确定切削用量及选择刀具;2、组合机床“三图一卡”的编制,就是绘制被加工零件的工序图,加工示意图
、机床尺寸联系图及生产效率计算卡;3、多轴箱的设计,包括绘制多轴箱设计原始依据图,多轴箱的传动设计及传动零
件的校核。专用多轴箱的设计,传动布局合理,轴与齿轮之间不发生干涉,保证传动的平稳性和精确性。专用主轴设计
、轴承的选用及电机的选择等。
关键词:组合机床;设计;汽缸体端盖;钻孔;工艺
目 录
摘 要 I
ABSTRACT II
目 录 1
第1章 绪 论 1
1.1 机床概述 1
1.2 机床设计的目的、要求及内容 4
1.2.1 设计的目的 4
1.2.2 设计要求 4
1.2.3 设计内容 4
1.3 机床的设计步骤 5
1.3.1 调查研究 5
1.3.2方案拟定 5
1.3.3 工作图设计 6
第2章 汽缸体左右端面钻孔组合机床的总体设计 8
2.1 组合机床总体方案的制定 8
2.1.1 制定加工工艺方案 8
2.1.2 确定组合机床的配置形式及结构方案 9
2.2 确定切削用量及刀具选择 10
2.2.1 确定加工工序间余量 10
2.2.2 选择切削用量 11
2.2.3 确定切削力、切削力矩及切削功率 11
2.2.4刀具结构选择 12
2.3 本章小结 12
第3章 端面钻孔组合机床总设计“三图一卡”的编制 13
3.1 被加工零件工序图的绘制 13
3.2 加工示意图的绘制 15
3.4机床联系尺寸图的绘制 19
3.5 生产效率计算卡的绘制 21
3.6 本章小结 23
第4章 机床多轴箱体的设计 24
4.1多轴箱设计原始依据图的绘制 24
第5章 夹具设计 29
5.1.1机床夹具的组成 29
5.1.2机床夹具的类型 29
5.2夹紧方案和夹紧元件的设计 30
5.3夹具的性能及优点 30
5.4夹具操作的简要说明 31
结 论 32
参考文献 33
致 谢 34
温馨提示:
1、题目前面的备注【字母数字编号】为本站整理分类的编号,与课题内容无关,请选题时忽视;
2、若题目上备注三维,则表示文件里包含三维源文件,由于三维组成零件数量较多,为保证预览截图的简洁性,本站将三维文件夹进行了打包。三维及CAD预览截图,均为本站电脑打开软件进行截图的,保证能够打开,下载原件超高清,下载后解压即可;
3、本站所有资源如无特殊说明,都需要本地电脑安装Office2007。图纸软件为AutoCAD,PROE,UG,SolidWorks,CATIA等;
4、本站所有图文资料仅供用户学习参考,不作为任何商用或其他用途;
5、本站不保证下载资源的准确性、安全性和完整性, 不包修改,不支持退换,同时也不承担用户因使用这些下载资源对自己和他人造成任何形式的伤害或损失;
6、 下载文件中如有侵权或不适当内容,请与我们联系,我们立即纠正。