

作品包括:
Word版说明书1份,共46页,约14000字
任务书一份
开题报告一份
文献综述 一份
外文翻译一份
PPT答辩一份
CAD版本图纸,共9张
Solidworks三维图一套

摘要:曲面印刷机是一种用于回转型包装容器外表面彩色印刷的机电一体化设备,包括上下料机构和传动机构等等,我这次做的是曲面印刷机气动下料机构的设计。由可编程控器控制印刷机的运转、印刷机的急停和无杯不印等。我们所设计的曲面印刷机最多可以印六种色彩,也就是套印六色,例如印刷纸杯,最高速度可达每分钟300件,且印刷色彩较好,准确度高,自动化程度极高。它是一种凸版轮转胶印机,模把更换方便,可以广泛的应用于大批量、高效率的硬包装印刷。
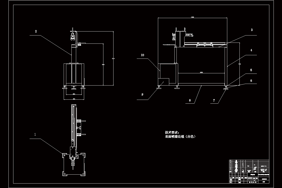
本课题设计的气动下料机构是全自动曲面印刷机的一台辅机,用于将印刷油墨干燥以后的杯子摞成卷,并按一定长度推至下料台。下料机气动系统的组成包括:执行元件气缸,控制元件电磁阀及辅助元件等。简述了气缸在结构中的安装方式及其所起的作用,并对关键零部件气缸进行了详细的分析设计。
运用Solid Works软件对叠杯装置、叠杯机架及下料台进行了设计,完成了三维实体建模、装配,并通过该软件导出二维装配图及其爆炸图。
关键字:曲面印刷机;气动下料机构设计;三维实体建模;Solid Works
目 录
摘要 I
Abstract II
目录..........................................................................................................................................III
1 引言 1
1.1 曲面印刷机简介 1
1.2 曲面印刷机的工作原理和结构 1
1.3 国内外曲面印刷机技术现状 2
1.4 市场前景分析 3
1.5 研究内容 4
1.6 研究意义 5
1.7 研究手段 5
2 下料机构气动系统设计 6
2.1 气压传动的特点 6
2.1.1 气压传动的优点 6
2.1.2 气压传动的缺点 6
2.2 气动技术的应用 6
2.3 气压传动系统的组成 7
2.4 气动系统功能简介 7
2.5 各种阀的选择 9
2.5.1 电磁阀的选择 9
2.5.2 减压阀的选择 9
2.5.3 减压阀的选择 9
2.5.4 过滤器的选用 10
3 摞杯装置及摞杯机架的设计 11
3.1 摞杯装置的组成 11
3.2 气缸类型的选择 11
3.3 机座的材料和时效处理 17
3.3.1机座的材料 17
3.3.2机座的时效处理 17
3.4 机座的结构设计 17
3.4.1机座的典型结构 17
3.4.2截面形状的选择 18
3.4.3连接刚度 19
3.4.4结构的工艺性 20
3.5 箱体的分类 20
3.6 设计的主要问题和设计要求 20
3.7 箱体结构设计 20
3.7.1箱体的毛坯、材料及热处理 21
3.7.2箱体结构参数的选择 21
4 下料台的设计 26
4.1下料平台架结构 26
4.2结构设计及验算 29
5 导向轴的制造工艺设计 30
5.1 毛坯选择 30
5.2 拟定加工工艺路线 31
5.3 选择加工设备和工艺设备 32
5.4 机械加工工序卡制作 33
6 结论 38
参考文献 39
致谢 40
温馨提示:
1、题目前面的备注【字母数字编号】为本站整理分类的编号,与课题内容无关,请选题时忽视;
2、若题目上备注三维,则表示文件里包含三维源文件,由于三维组成零件数量较多,为保证预览截图的简洁性,本站将三维文件夹进行了打包。三维及CAD预览截图,均为本站电脑打开软件进行截图的,保证能够打开,下载原件超高清,下载后解压即可;
3、本站所有资源如无特殊说明,都需要本地电脑安装Office2007。图纸软件为AutoCAD,PROE,UG,SolidWorks,CATIA等;
4、本站所有图文资料仅供用户学习参考,不作为任何商用或其他用途;
5、本站不保证下载资源的准确性、安全性和完整性, 不包修改,不支持退换,同时也不承担用户因使用这些下载资源对自己和他人造成任何形式的伤害或损失;
6、 下载文件中如有侵权或不适当内容,请与我们联系,我们立即纠正。