

作品包括:
Word版说明书1份,共55页,约21000字
CAD版本图纸,共23张
UG三维图一份

摘 要
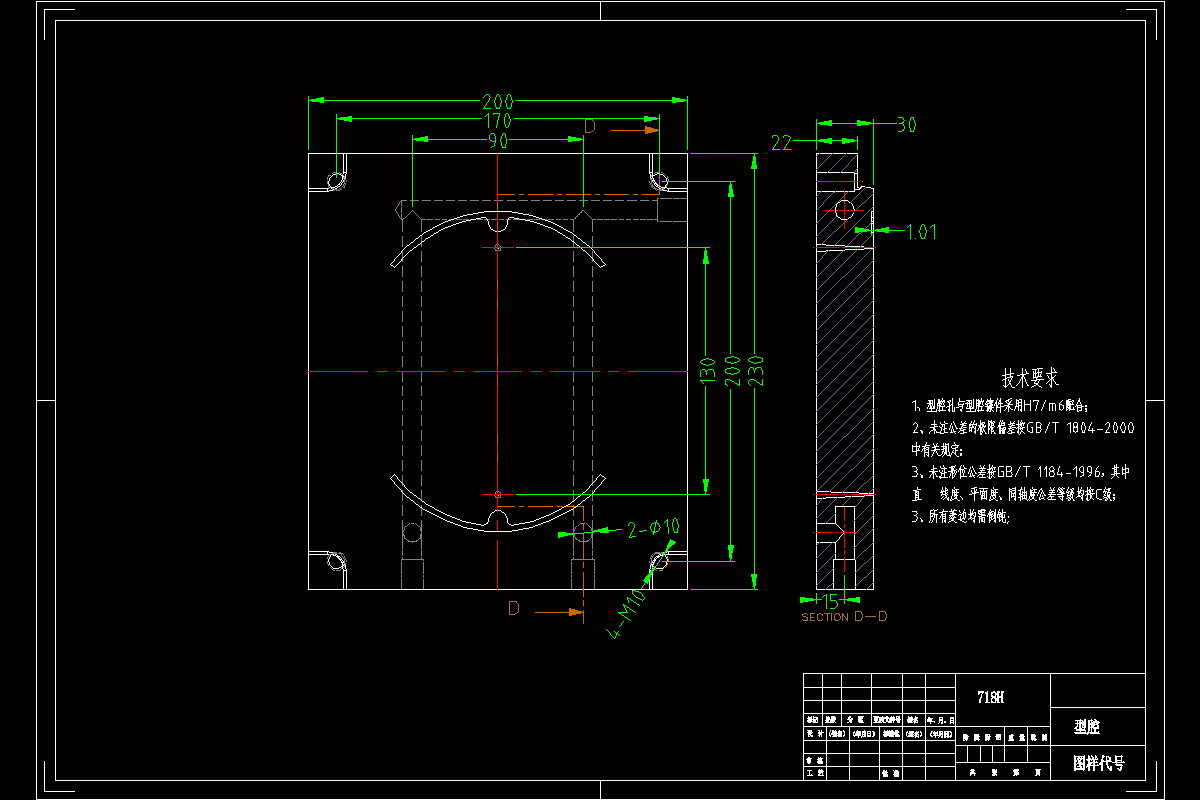
根据塑料制品的要求,了解塑件的用途,分析塑件的工艺性、尺寸精度等技术要求,考虑塑件制件尺寸。本模具采用一模一腔,点浇口进料,注射机采用HTF160XB型号,设置冷却系统,CAD和UG绘制二维总装图和零件图,选择模具合理的加工方法。附上说明书,系统地运用简要的文字,简明的示意图和和计算等分析塑件,从而作出合理的模具设计。
关键词:模具设计;CAD绘制二维图;UG绘制3D图。
目录
摘 要 I
Abstract I
1 绪论 1
1.1 模具在加工工业中的便利性 1
1.2 塑料模具的发展趋势 2
1.3 本设计的目的和要求 3
2 塑件的工艺分析及材料分析 4
2.1 塑件的工艺分析 4
2.1.1 塑件的位置公差 4
2.1.2 塑件表面质量要求及分析 5
2.1.3 脱模斜度分析 6
2.1.4 壁厚的分析 6
2.1.5 圆角的分析 6
2.1.6孔的分析 7
2.1.7塑件的体积和质量 7
2.1.8 塑件成型方法与分析 7
2.2 材料分析 8
2.2.1 材料的分析与选择 8
2.2.2 分析制件材料使用性能 9
3 成型注塑机选用 12
3.1 注射机的概述 12
3.2 注射机基本参数 14
3.3 注塑机选择 16
4 模具结构设计 18
4.1确定模具的基本类型 18
4.2型腔数目的确定及型腔的排列 18
4.3模架选用 19
5 成型零部件结构设计 22
5.1分型面的选择 22
5.2型芯型腔结构的确定 23
5.2.1型腔设计 23
5.2.2型芯设计 24
5.3型芯型腔的尺寸要素 25
5.4型芯型腔的尺寸计算 26
5.4.1 型腔宽度尺寸的计算 26
5.4.2 型腔长度尺寸的计算 26
5.4.3 型腔高度尺寸的计算 27
5.4.4 型芯宽度尺寸的计算 27
5.4.5 型芯长度的计算 27
5.4.6 型芯高度尺寸的计算 28
5.5成形零部件刚度和强度校核 28
5.5.1 刚度和强度校核要素 28
5.5.2 型腔侧壁和底板厚度的计算 29
5.6侧向抽芯机构类型选择与设计 30
6. 侧抽芯机构的抽芯距 31
6 浇注系统设计 33
6.1 浇口的设计 33
6.1.1 浇口的形状、位置的确定 33
6.1.2 浇口位置的选择原则 33
6.2 流道的设计 34
6.2.1 主流道相关 34
6.2.2 分流道的设计 36
7 模具其它结构设计 37
7.1脱模装置设计 37
7.1.1 推出力的计算 37
7.1.2 推出机构设计 38
7.2 导向与定位机构设计 40
7.3 排气及引气系统的设计 41
7.4 模温调节系统的设计 42
8 注塑机相关参数的校核 44
8.1 模具闭合高度的校核 44
8.2 开模行程的校核 44
8.3 最大注塑量校核 45
8.4 锁模力的校核 45
8.5 顶出装置的校核 46
9 模具结构总图 47
结论 48
参考文献 49
致谢 50
温馨提示:
1、题目前面的备注【字母数字编号】为本站整理分类的编号,与课题内容无关,请选题时忽视;
2、若题目上备注三维,则表示文件里包含三维源文件,由于三维组成零件数量较多,为保证预览截图的简洁性,本站将三维文件夹进行了打包。三维及CAD预览截图,均为本站电脑打开软件进行截图的,保证能够打开,下载原件超高清,下载后解压即可;
3、本站所有资源如无特殊说明,都需要本地电脑安装Office2007。图纸软件为AutoCAD,PROE,UG,SolidWorks,CATIA等;
4、本站所有图文资料仅供用户学习参考,不作为任何商用或其他用途;
5、本站不保证下载资源的准确性、安全性和完整性, 不包修改,不支持退换,同时也不承担用户因使用这些下载资源对自己和他人造成任何形式的伤害或损失;
6、 下载文件中如有侵权或不适当内容,请与我们联系,我们立即纠正。