

作品包括:
说明书1份,共53页,约23000字左右
CAD版本本图纸,共11张
SW三维图一份
目录
摘要 1
Abstract 2
第一章绪论 3
1.1课题的来源与研究的目的与意义..........4
1.2篦冷机的方案分析.......................................5
1.2.1 结构分析..............................................6
1.2.2 机械结构总体方案与布局......7
1.2.3 篦冷机工作原理..................... 7
1.3课题研究的内容..............................8
1.3.1 Solidworks设计基础...........9
1.3.2 草图绘制.............................10
1.3.3 基准特征,参考几何体的创建............11
1.3.4 拉伸、旋转、扫描和放样特征建........12
1.3.5 工程图的设计.....................13
1.3.6 装配设计.............................14
第二章机械结构的设计........................................... ....................................15
2.1 轴承的设计 17
2.2 步进电机的选型计算.......................18
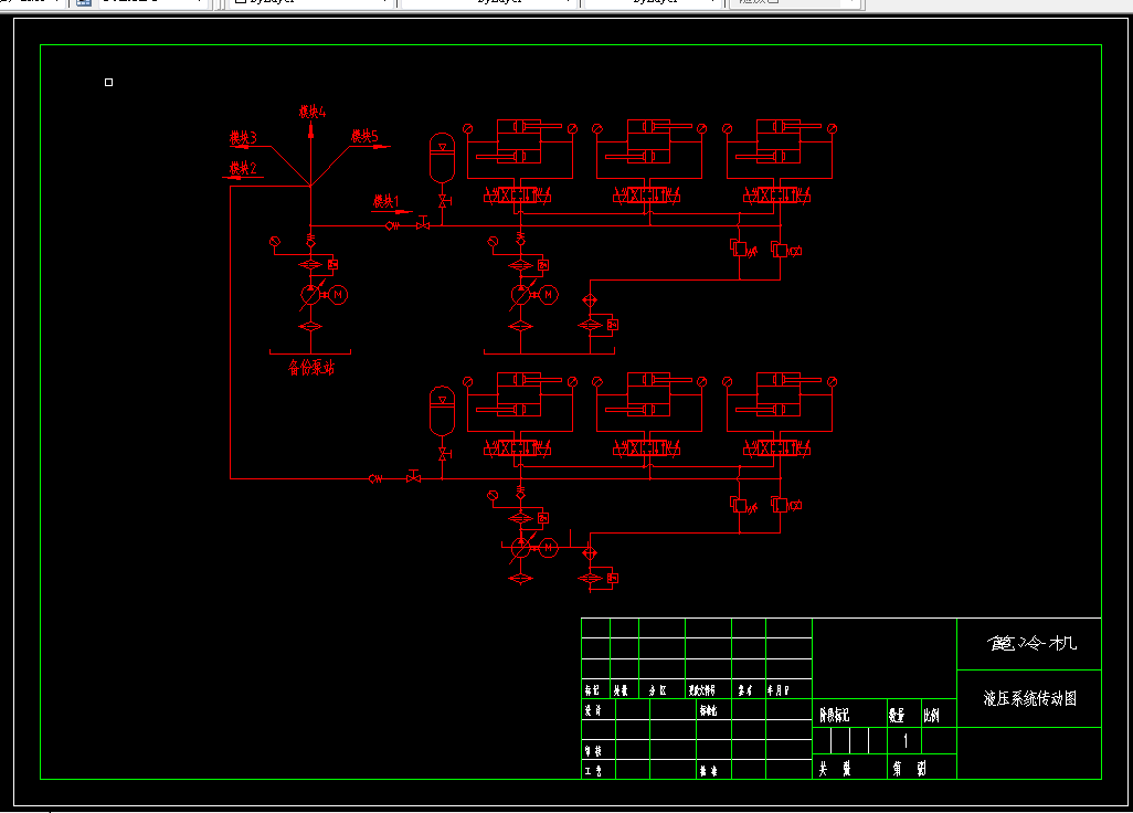
第三章液压系统设计......................19
3.1 执行元件分析...................................20
3.1.1 执行元件类型和选择...............20
3.1.2 速度和载荷计算.......................20
3.1.3 执行元件的载荷计算及变化规律..............21
3.2 液压缸的选型计算.........................21
3.3 调速方案的选择................................21
3.4 液压系统原理图的确定.....................22
3.5液压系统总成计算.............................22
3.5.1 负载分析 ...............................23
3.5.2 选择基本回路 ........................23
3.5.3 液压元件选择..........................23
第四章 篦冷机各部分强度的校核. ........23
4.1轴承强度的校核 24
4.2方管强度的校核 24
4.3传动轴强度的校核 25
第五章篦冷机PLC控制系统的设计.......26
5.1PLC简介..............................................27
5.2 PLC的定义.........................................28
5.3 PLC的基础知识.................................29
5.4PLC的组成..........................................30
5.4.1中央处理单元.................................31
5.4.2存储器.............................................31
5.4.3输入输出单元.................................31
5.4.4通讯接口.........................................31
5.4.5智能接口模块.................................31
5.4.6编程装置.........................................32
5.4.7电源32
5.5 PLC的用途.........................................32
5.6可编程控制器的发展史...................32
5.7PLC的发展趋势.................................32
5.8PLC的选型及硬件配备.....................33
5.9输入输出方式的选择与地址分配........34
5.9.1输入输出方式的选择.......................35
5.9.2输入输出的地址分配.......................36
5.9.3电气控制系统硬件线路设计...........37
5.10篦冷机PLC控制系统重要件的配置...............39
5.1篦冷机1PLC软件系统的设计........40
结论 41
致谢 42
参考文献 42
摘 要
篦式冷却机(以下简称篦冷机)是水泥厂烧成系统中的一个极其关键的设备,其功能是冷却、输送熟料同时具有高冷却效率、高热回收率和高运转率。篦冷机接受来自回转窑的高温熟料,在冷却热回收过程中,在篦床的高温热端区采用高效控制流技术充分考虑料层的阻力及分布利用区域可调方式对熟料进行
冷却,提高了熟料的骤冷效果和二、三次风温度,降低了出料温度,且热回收效率
和设备的运转率也得到了提高,确保了烧成系统的稳定性和高运转率。
篦冷机主要由固定篦床、供风管路系统、传动轴组件、上下壳体、活动篦床、密封板、挂链装置、出料口装置、篦护板、干油集中润滑系统、液压传动装置、熟料破碎机、托轮装置、挡轮装置、喷装置、空气炮装置、灰斗锁风阀、风机、自动控制和报警装置等组成。
本文主要进行了篦冷机的总体结构设计和液压设计。篦冷机的机械结构由液压油缸、旋转关节和篦床等组成,可按预定轨迹运动。液压部分的设计主要是选择合适的控制阀,设计合理的液压控制回路,通过控制和调节液压缸压缩空气的压力、流量和方向来使液压执行机构获得必要的力、动作速度和改变运动方向,并按规定的程序工作。
本文详细介绍了运用SolidWorks软件(3D 机械设计软件的标准)进行篦冷机的设计。由于SolidWorks软件无论对零件设计,还是对整个机构设计都起了一个模拟仿真的作用,在SolidWorks软件中,我们可以直观,清楚地了解整个设计的外形,运作甚至是材料的分析。借助SolidWorks,将产品更快地投入市场。SolidWorks 提供无与伦比的性能和价值,它是技术创新的领先者,并且还拥有最大的用户群。没有其他CAD 系统可以帮助您快速准确地完成产品设计工作。
本文先对SolidWorks软件作出简介,对此三维软件作出一系列的说明,而后对篦冷机设备进行介绍,并结合SolidWorks软件,将二者融会贯通。通过SolidWorks软件设计,从二维的AUTOCAD零件图纸,到三维的SolidWorks整个设备,大大地提高了设计的效果和效率,避免了工程师们在现实中出现的错误,切切实实地展现出三维软件的强大性能。
关键词:篦冷机;液压缸;Silidworks;设备。
温馨提示:
1、题目前面的备注【字母数字编号】为本站整理分类的编号,与课题内容无关,请选题时忽视;
2、若题目上备注三维,则表示文件里包含三维源文件,由于三维组成零件数量较多,为保证预览截图的简洁性,本站将三维文件夹进行了打包。三维及CAD预览截图,均为本站电脑打开软件进行截图的,保证能够打开,下载原件超高清,下载后解压即可;
3、本站所有资源如无特殊说明,都需要本地电脑安装Office2007。图纸软件为AutoCAD,PROE,UG,SolidWorks,CATIA等;
4、本站所有图文资料仅供用户学习参考,不作为任何商用或其他用途;
5、本站不保证下载资源的准确性、安全性和完整性, 不包修改,不支持退换,同时也不承担用户因使用这些下载资源对自己和他人造成任何形式的伤害或损失;
6、 下载文件中如有侵权或不适当内容,请与我们联系,我们立即纠正。