欢迎来到龙图网在线图文分享平台-CAD图纸,设计说明书,工业设计3D模型,三维软件下载!   客服QQ:2363701252
热搜:

工艺夹具 模具设计 数控编程 土木工程 3D模型

A463-基于PLC的智能窗帘控制系统设计[含SW三维图] 下载积分:50 资料编号: A463

1.打开支付宝或者微信扫描二维码。
2.填写金额:50 
3.添加备注,填写资料编号:
资料编号: A463
4.支付成功后,请发资料编号到邮箱:jxsj168@qq.com
会有专人在15分钟内把资料发到您邮箱
备注:如果付款忘记填写资料编号,则发邮件时附带您的交易明细截图即可。
请耐心等待,如超过30分钟还没收到,请联系客服QQ:2363701252
点击分享:

作品描述

作品包括:

说明书1份,共31页,约12000字左右

CAD版本本图纸,共7张

SW三维图一份


 基于PLC的智能窗帘控制系统设计及仿真设计说明书

目录


摘要 3

Abstract 4

第一章、绪论 7

  1.1 课题的研究背景和历史意义 13

  1.2 智能窗帘的发展现状及应用 14

第二章、智能窗帘总体结构的设计 15

   2.1 智能窗帘控制系统的控制原理 16

   2.2 机械传动部分的设计计算 17

      2.2.1智能窗帘结构系统中直流电机的选型计算 17

      2.2.2联轴器的选型计算 17

      2.2.3转轴的设计计算 18

   2.3光电传感器的选型计算 18

第三章、智能窗帘的PLC控制系统的设计 19

   3.1 PLC简介 19

     3.1.1 PLC的定义 20

     3.1.2 PLC的基础知识 22

     3.1.3 PLC的用途 23

    3.2 PLC的组成..................................................................23

     3.2.1中央处理单元.............................................................................................24

       3.2.2存储器.........................................................................................................24

       3.2.3输入输出单元.............................................................................................24

       3.2.4通讯接口.....................................................................................................25

       3.2.5智能接口模块.............................................................................................25

        3.2.6编程装置...................................................................................................26

        3.2.7电源...........................................................................................................26

     3.3 输入输出点分配 27

    3.4 PLC的选择 27

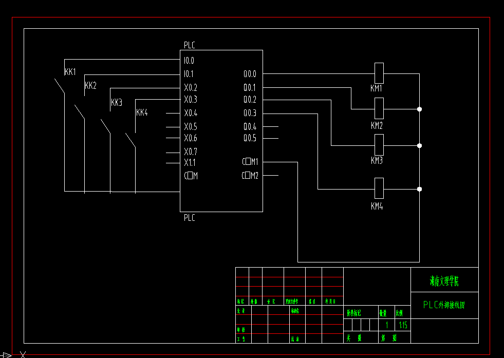
    3.5 智能窗帘PLC控制系统接线图 28

第四章、智能窗帘控制系统PLC控制程序的实现 28

结论 29

致谢 30

参考文献 31



摘 要

     可编程序控制器(PLC)是一种新型的通用的自动控制装置,它将传统的继电器控制技术、计算机技术和通讯技术融为一体,是功能加强、编程简单、使用方便以及体积小、重量轻、功耗低等一系列优点。PLC的应用领域已经拓宽到了各个领域,PLC的发展历程在工业生产过程中,大量的开关量顺序控制,它按照逻辑条件进行顺序动作,并按照逻辑关系进行连锁保护动作的控制,及大量离散量的数据采集。在传统上,这些功能是通过气动或电气控制系统来实现的。PLC最基本最广泛的用于开关量的逻辑控制,它取代传统的继电器电路,实现逻辑控制,顺序控制,既可用于单台设备的控制,也可用于多机群控及自动化流水线。如注塑机,印刷机,订书机,组合智能窗帘,磨床,包装等。目前,PLC在国内外已广泛应用于钢铁,石油,化工,电力,建材,机械制造,汽车,轻纺,交通运输,环保及文化娱乐等各个行业,使用广泛。如今伴随着信息时代的到来,人们的生活水平日益提高,方便、快捷、 自动、智能成为时代的主题,在现代家庭生活环境中,居家环境早已不仅 仅局限在物理空间上,人们更为关注的是一个安全、方便、舒适的环境,自动化的电子产品自然成为人们追求的目标。窗是人心灵的眼睛,窗帘则是眼睛上的睫毛,窗帘在防止强光射入,帮助 人们合理的安排时间,美化室内环境,保证个人隐私,增强居家环境方面 有重要作用。随着人们生活节奏的加快,窗帘的自动化随之产生。本产品是在学习机械原理及设计和电工学等知识,通过实践,观察,思考的基础上设计而成的,且人性化的思想理念也体现了科学技术在人们生活中的作用。通过几个月的努力,使我们深刻感受到了电学,力学,加工工艺,理论知识与实践相结合在机械设计中的重要性。加强和拓展这些方面的知识对机械学子们是很有必要的。本设计将以PLC为核心设计了系统结构图、程序指令、梯形图以及输入输出端子的分配方案,在保留了原始智能窗帘的基本功能的同时又增加了一系列的实用功能并简化其电路结构,其将以控制方便,灵活,只要改变输入PLC的控制程序,便可改变智能窗帘的颜色,开合,从而使得人们的家居生活不断完美。

关键字:PLC;智能窗帘;S7-300型;系统结构图。

温馨提示:

1、题目前面的备注【字母数字编号】为本站整理分类的编号,与课题内容无关,请选题时忽视;

2、若题目上备注三维,则表示文件里包含三维源文件,由于三维组成零件数量较多,为保证预览截图的简洁性,本站将三维文件夹进行了打包。三维及CAD预览截图,均为本站电脑打开软件进行截图的,保证能够打开,下载原件超高清,下载后解压即可;

3、本站所有资源如无特殊说明,都需要本地电脑安装Office2007。图纸软件为AutoCAD,PROE,UG,SolidWorks,CATIA等;

4、本站所有图文资料仅供用户学习参考,不作为任何商用或其他用途;
5、本站不保证下载资源的准确性、安全性和完整性, 不包修改,不支持退换,同时也不承担用户因使用这些下载资源对自己和他人造成任何形式的伤害或损失;

6、 下载文件中如有侵权或不适当内容,请与我们联系,我们立即纠正。


线