欢迎来到龙图网在线图文分享平台-CAD图纸,设计说明书,工业设计3D模型,三维软件下载!   客服QQ:2363701252
热搜:

工艺夹具 模具设计 数控编程 土木工程 3D模型

A465-基于PLC的16路抢答器控制系统设计 下载积分:50 资料编号: A465

1.打开支付宝或者微信扫描二维码。
2.填写金额:50 
3.添加备注,填写资料编号:
资料编号: A465
4.支付成功后,请发资料编号到邮箱:jxsj168@qq.com
会有专人在15分钟内把资料发到您邮箱
备注:如果付款忘记填写资料编号,则发邮件时附带您的交易明细截图即可。
请耐心等待,如超过30分钟还没收到,请联系客服QQ:2363701252
点击分享:

作品描述

作品包括:

说明书1份,共34页,约14000字左右

CAD版本本图纸,共1张


 基于PLC的抢答器控制系统设计

目录


摘要 3

Abstract 4

第一章、绪论 7

  1.1 课题的背景 9

  1.2 抢答器概述 10

  1.3 抢答器抢答过程的介绍 13

  1.4 PLC简介 15

    1.4.1 PLC的定义 16

    1.4.2 PLC的基础知识 18

    1.4.3 PLC的用途 19

   1.5 PLC的组成...........................................................................................................20

      1.5.1中央处理单元...............................................................................................20

      1.5.2存储器...........................................................................................................20

      1.5.3输入输出单元...............................................................................................20

      1.5.4通讯接口.......................................................................................................21

      1.5.5智能接口模块...............................................................................................21

      1.5.6编程装置.......................................................................................................22

      1.5.7电源...............................................................................................................22

第二章、16路抢答器控制系统的设计 23

  2.1 16路抢答器的工作原理 23

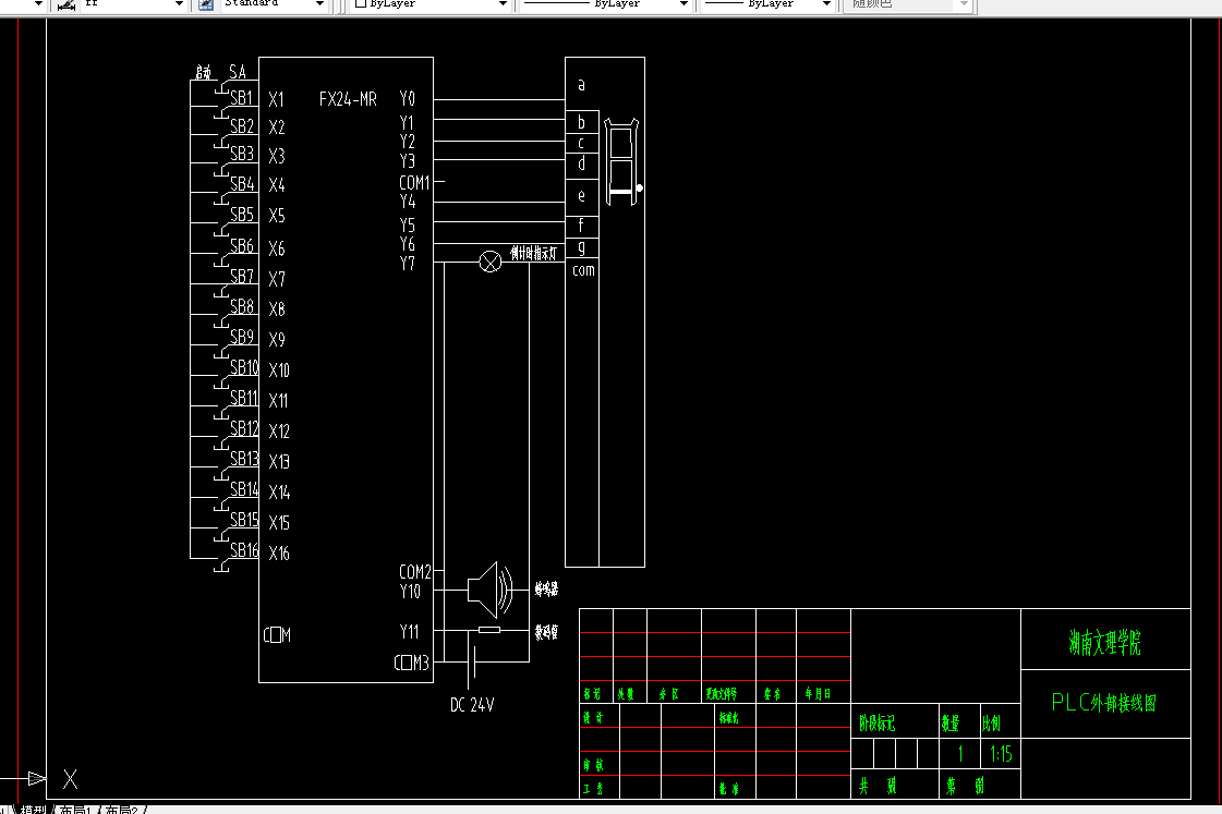
  2.2 16路抢答器PLC外部接线图 23

  2.3 16路抢答器的结构流程图 23

  2.4 16路抢答器的系统控制结构框图 25

  2.5 16路抢答器的控制过程 25

第三章、16路抢答器的PLC设计 27

   3.1 输入输出点分配 28

   3.2 PLC的选择 29

   3.3 16路抢答器PLC控制系统接线图 30

第四章、16路抢答器PLC控制程序 31

结论 32

致谢 33

参考文献 34



摘 要

     可编程序控制器(PLC)是一种新型的通用的自动控制装置,它将传统的继电器控制技术、计算机技术和通讯技术融为一体,是功能加强、编程简单、使用方便以及体积小、重量轻、功耗低等一系列优点。PLC的应用领域已经拓宽到了各个领域,PLC的发展历程在工业生产过程中,大量的开关量顺序控制,它按照逻辑条件进行顺序动作,并按照逻辑关系进行连锁保护动作的控制,及大量离散量的数据采集。在传统上,这些功能是通过气动或电气控制系统来实现的。PLC最基本最广泛的用于开关量的逻辑控制,它取代传统的继电器电路,实现逻辑控制,顺序控制,既可用于单台设备的控制,也可用于多机群控及自动化流水线。如注塑机,印刷机,订书机,组合抢答器,磨床,包装等。目前,PLC在国内外已广泛应用于钢铁,石油,化工,电力,建材,机械制造,汽车,轻纺,交通运输,环保及文化娱乐等各个行业,使用广泛。

     在日常生活中,智能抢答器广泛的应用于各种竞争和抢答场合。越来越多的抢答器投入市场,可是大部分的抢答器主要采用的是单片机系统;而单片机系统由于稳定性不高,所以我们设想是否可以利用PLC进行抢答器的设计,所以针对此毕业设计进行了软硬件的设计,基于此,我们采用了西门子公司的S7-300型PLC设计了一款基于PLC的抢答器供学生进行各种知识竞赛使用。

    本设计将以PLC为核心设计了系统结构图、程序指令、梯形图以及输入输出端子的分配方案,在保留了原始抢答器的基本功能的同时又增加了一系列的实用功能并简化其电路结构,其将以控制方便,灵活,只要改变输入PLC的控制程序,便可改变竞赛抢答器的抢答方案,从而使得竞赛不断完善其公平、公正性。

 

关键字:PLC;智能抢答器;S7-300型;梯形图。

温馨提示:

1、题目前面的备注【字母数字编号】为本站整理分类的编号,与课题内容无关,请选题时忽视;

2、若题目上备注三维,则表示文件里包含三维源文件,由于三维组成零件数量较多,为保证预览截图的简洁性,本站将三维文件夹进行了打包。三维及CAD预览截图,均为本站电脑打开软件进行截图的,保证能够打开,下载原件超高清,下载后解压即可;

3、本站所有资源如无特殊说明,都需要本地电脑安装Office2007。图纸软件为AutoCAD,PROE,UG,SolidWorks,CATIA等;

4、本站所有图文资料仅供用户学习参考,不作为任何商用或其他用途;
5、本站不保证下载资源的准确性、安全性和完整性, 不包修改,不支持退换,同时也不承担用户因使用这些下载资源对自己和他人造成任何形式的伤害或损失;

6、 下载文件中如有侵权或不适当内容,请与我们联系,我们立即纠正。


线